ZHANG Wengang , YE Wenyu , SUN Weixin , LIU Zhicheng , LI Zhengchuan
2026, 48(1):1-13. DOI: 10.11835/j.issn.2096-6717.2024.024
Abstract:The uplift resistance of the soil overlying shield tunnels significantly impacts their anti-floating stability. However, research on uplift resistance concerning special-shaped shield tunnels is limited. This study combines numerical simulation with machine learning techniques to explore this issue. It presents a summary of special-shaped tunnel geometries and introduces a shape coefficient. Through the finite element software, Plaxis3D, the study simulates six key parameters—shape coefficient, burial depth ratio, tunnel’s longest horizontal length, internal friction angle, cohesion, and soil submerged bulk density—that impact uplift resistance across different conditions. Employing XGBoost and ANN methods, the feature importance of each parameter was analyzed based on the numerical simulation results. The findings demonstrate that a tunnel shape more closely resembling a circle leads to reduced uplift resistance in the overlying soil, whereas other parameters exhibit the contrary effects. Furthermore, the study reveals a diminishing trend in the feature importance of buried depth ratio, internal friction angle, tunnel longest horizontal length, cohesion, soil submerged bulk density, and shape coefficient in influencing uplift resistance.
WANG Lehua , XU Jianwen , CHEN Can , GUO Jinfan , XU Xiaoliang
2026, 48(1):14-23. DOI: 10.11835/j.issn.2096-6717.2023.146
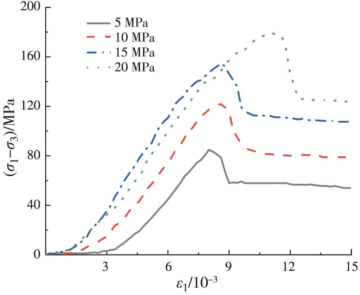
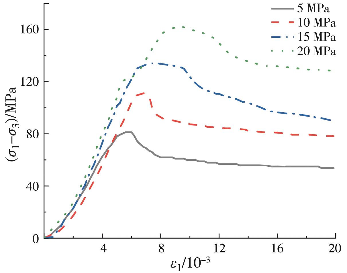
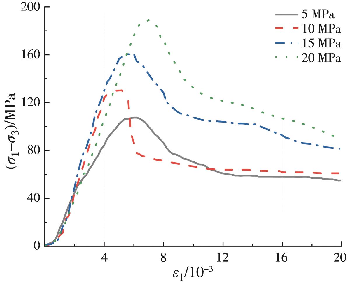
Abstract:During excavation and unloading of underground chambers, the mechanical characteristics and crack propagation behavior of jointed rock formations are vital for project safety and stability. This study focuses on the jointed sandy slate in the underground powerhouse of the Kala Hydropower Station in Sichuan, and conducts series of tests on non-penetrating jointed sandy slate under triaxial loading and unloading conditions. We analyzed the mechanical properties and deformation characteristics under different stress paths, explored the applicability of various strength criteria, and investigated crack propagation mechanisms using fracture mechanics. It is found that: (1) As initial confining pressure increases, axial stress and strain at failure show an upward trend under different stress paths. (2) Compared to triaxial loading, unloading paths and jointed samples decrease load-bearing capacity. Unloading from axial stress to confining pressure increases cohesion by 4.1% and unloading from confining pressure to axial stress decreases it by 30.4%. The internal friction angle increases by 3.5% and 7.3% during axial compression, while jointed samples, compared with intact samples, show a decrease of 32.9% and 53% in cohesion and a decrease of 2.2% and 10% in internal friction angle respectively. (3) In terms of characterizing the strength properties of sandy slate throughout the loading and unloading processes, the Mogi-Coulomb strength criterion outperforms both the Mohr-Coulomb and Drucker-Prager criteria. (4) The theoretical critical angle increases with confining pressure, and biconjoint samples exhibit higher values than intact ones. The theoretical critical angles range from 55° to 60° under different loading paths.
LI Guangyao , ZHAN Liangtong , JIAO Weiguo , FENG Song , CHEN Yunmin
2026, 48(1):24-35. DOI: 10.11835/j.issn.2096-6717.2023.135
Abstract:Currently, the thickness design method for ecological soil covers used in northwest China is based on the practice of non-humid regions in north America, which is complicated, involves various parameters, and fails to consider the different meteorological conditions between northwest China and north America. To solve this issue, on the basis of the monsoon climate of northwest China, the feature that the precipitation during the non-growing period of vegetation should not exceed 20% of the total annual precipitation, as well as the water retention characteristics of ideal cover soils that the ratio of the field capacity to the wilting point K ≥ 1.44, the thickness design method for ecological soil covers used in northwest China is simplified. The numerical program Vadose/W is utilized to analyze the hydraulic responses of the loess monolithic cover and the loess-gravel capillary barrier cover designed with the proposed simplified method in the year of maximum precipitation. The results indicate that the capillary barrier effect significantly prevents the migration of water from the loess layer to the gravel layer, resulting in the capillary barrier cover having better anti-seepage performance than the monolithic cover. The anti-seepage performance of the two covers decreases with the decrease in the ratio of the field capacity to the wilting point of the loess (i.e., K). When K ≥ 1.35, the two covers can meet the local anti-seepage requirements, thus preliminarily verifying the reliability of the proposed simplified method.
WANG Yankun , WEN Tao , WANG Luqi , HU Mingyi , WEI Mengxue
2026, 48(1):36-43. DOI: 10.11835/j.issn.2096-6717.2023.145
Abstract:Accurately obtaining multiple-field information on the reservoir landslide subjected to dynamic water action is an important basis for reliably evaluating landslide stability. To overcome the limitations of GeoStudio and FLAC3D numerical software in simulating multiple-field information of reservoir landslides, this paper proposes a method for simulating multiple-field information of reservoir landslides with mutual feedback between GeoStudio and FLAC3D. This method first simulates the time-varying seepage field of landslides under dynamic water action using GeoStudio and then achieves fast conversion of the GeoStudio model and seepage field to FLAC3D by developing an interface program. Based on the hydrological characteristics of the rock-soil mass and the principle of effective stress, the soil parameters and initial stress in the FLAC3D model are modified to calculate the stress and strain of the landslide. The effectiveness of this method is verified by a large-scale physical model test of a reservoir landslide under a sudden drop in reservoir water level. It can be observed that the simulated evolution trend of multiple-field information of landslides using this method is consistent with the physical model test results. The maximum average simulation error of pore water pressure at monitoring points is less than 10%, and the maximum average simulation error of total stress is within 33%. The simulation results accurately reproduce the traction multiple slip surface failure mode and final slip surface location of the reservoir landslide physical model test.
WANG Guanxiong , HU Ran , LAN Tian , CHEN Yifeng
2026, 48(1):44-53. DOI: 10.11835/j.issn.2096-6717.2023.108
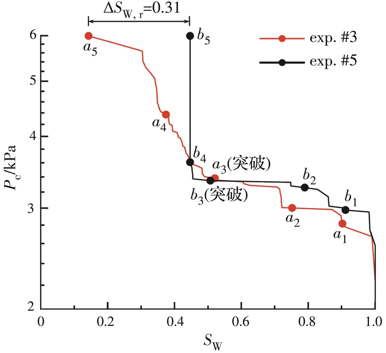
Abstract:The capillary pressure curve is a fundamental constitutive relationship for simulating unsaturated flow and water-gas multiphase flow in porous media. As the wetting-phase saturation approaches the residual saturation, corner films and liquid bridges formed between solid grains become the dominant pathways governing fluid displacement processes. At present, the mechanisms by which corner films and liquid bridges influence capillary pressure curves remain insufficiently understood. In this study, a microfluidic visualization experimental platform was developed, and quasi-static drainage experiments were conducted in six sets of microfluidic models with different pore structures and surface roughness. The corner film-liquid bridge flow was directly observed, and its influence on capillary pressure curves was quantitatively evaluated. The results indicate that corner film-liquid bridge flow mainly occurs at low wetting-phase saturations and leads to a reduction in the residual wetting-phase saturation by 0.21-0.32. The occurrence of corner film-liquid bridge flow is closely related to the wettability of the porous medium; rough solid surfaces reduce the contact angle of the wetting phase, thereby facilitating the formation of corner films and liquid bridges. Moreover, the impact of corner film-liquid bridges is positively correlated with the number of liquid bridges, and their effect becomes more pronounced with decreasing porosity and heterogeneity of the porous medium.
WANG Hong , DING Xuanming , FANG Xiangwei , FANG Huaqiang , LI Yifu , XIN Yiwen
2026, 48(1):54-62. DOI: 10.11835/j.issn.2096-6717.2024.062
Abstract:For effective use of island reef coral mud, the performance of island reef coral mud was investigated to examine the cracking phenomenon when this coral mud was utilised as engineering material, and it is of practical significance to carry out the research on the cracking and modification of coral mud. Firstly, hydroxypropyl methyl cellulose (HPMC) and coral mud were used to prepare an indoor surface model for the cracking test. Images were captured at different time periods and then the changes in coral mud-related parameters were obtained by image processing techniques; Secondly, the changing patterns of coral mud cracking parameters such as crack development rate and the dynamic evolution patterns of cracks in coral mud after HPMC modification were investigated; Finally, the inhibitory effect of HPMC on the cracking behaviour of coral mud was analysed and the cracking inhibition mechanisms were described. The results of the study show that the addition of HPMC can significantly improve the anti-cracking properties of coral mud soil samples, and HPMC can prevent the contraction of the soil body and inhibit the generation of cracks by reducing the content of free water in the soil samples and adsorbing the coral mud particles inside the soil samples to form agglomerates. This can significantly optimise the overall performance of the coral mud surface layer and its anti-cracking performance.
CHENG Xuri , TONG Chenxi , WANG Xiaotao , FENG Yushun , ZHANG Sheng
2026, 48(1):63-70. DOI: 10.11835/j.issn.2096-6717.2024.001
Abstract:Dynamic compaction is a widely employed foundation treatment method, but the surface vibrations it incurs can potentially lead to damage in nearby constructions. Therefore, it is crucial to determine appropriate safety distances and implement effective vibration absorption methods based on specific site conditions and vibration attenuation laws. Drawing from the dynamic compaction process at Fuzhou Changle International Airport, we conducted on-site tests to acquire essential data and subsequently performed simulations using the discrete element method. Our findings revealed that, under identical energy levels, lighter hammers result in higher soil velocities. Moreover, heavier hammers exhibit a broader influence and lead to a slower attenuation process. Simulation results demonstrated that the attenuation process can be accurately modeled using hyperbolic functions, a conclusion substantiated by the results of our field experiments. Damping ditch calculations indicated that the vibration velocities of soil increase before the ditch and decrease behind it. Based on relevant standards, the installation of a damping ditch in this area allows for a substantial reduction in the required safety distance.
LIU Deren , FEI Yan , AN Zhengshan , ZHANG Yanjie , NIU Yaqiang , ZHU Zhechao , GUO Yafang
2026, 48(1):71-79. DOI: 10.11835/j.issn.2096-6717.2023.133
Abstract:In order to explore the horizontal bearing characteristics of pile foundations in large‐thickness artificial fill foundation and the applicability of the m‐method in engineering practice, the field tests of horizontal bearing capacity of single piles and the theoretical calculations of the m‐method are carried out. The variation patterns of displacement and bending moment under horizontal loads are obtained, and the deformation characteristics of pile-soil under horizontal loads are presented. The variation of the proportional coefficient m of the horizontal resistance coefficient of the foundation soil with the load and displacement is further obtained. The results show that with the increase of loading, the horizontal displacement increases continuously, and after reaching the critical value of 480 kN, the horizontal displacement and displacement gradient of pile foundations change drastically. Under the same loading, the bending moment of pile foundations increases first and then decreases with the increase of depth. The bending moment diagram shows the distribution pattern of “small at both ends and large in the middle”. At the same depth, the bending moment increases with the increase of load, and negative bending moment appears at a certain depth. The influence range of bending moment along the depth is about 10 m. The proportional coefficient m of the horizontal resistance coefficient decreases exponentially with the increase of load and displacement. When the load and displacement are small, the m values of the two piles are quite different. When the load and displacement increase to a certain value, the m values of the two piles are close and finally stabilized near a specific value. The calculation results of the m‐method are verified and improved by experimental data. It is found that the maximum displacement calculated by the m‐method is close to the measured results. When the load is small, the calculated maximum bending moment is close to the measured results. After exceeding the critical load, the difference is large, indicating that when the load exceeds the critical value, the maximum bending moment does not show a linear elastic increase. It is necessary to correct the bending moment calculation result by the correction coefficient function β. The corrected bending moment is more consistent with the measured value, indicating that the m‐method works well in engineering practice.
ZHAO Zhipeng , WANG Zhipeng , WU Di , CHEN Rong , KONG Gangqiang
2026, 48(1):80-88. DOI: 10.11835/j.issn.2096-6717.2023.132
Abstract:This study focuses on investigating the heat transfer characteristics of large-diameter bridge energy piles through field tests, aiming to examine the heat exchange rate and temperature distribution of a full-scale large-diameter bridge energy pile and its surrounding soil. Additionally, a three-dimensional numerical model of this energy pile is developed and validated by comparing field measurements with simulation results. With the validated model, a parameter sensitivity analysis is conducted to explore the influence mechanism of convective heat exchange between the bridge piers on top of the pile and the surrounding air on the heat transfer characteristics of the large-diameter bridge energy pile. The results indicate that the heat exchange rate of this energy pile can reach -222.28 W/m, which is approximately 1.5 to 3.9 times that of conventional types. However, the larger diameter of the pile leads to uneven temperature distribution across the cross section. Specifically, the temperature near the heat exchange tubes is significantly higher (by around 3 ℃) than that at the central axis. Furthermore, it is observed that convective heat exchange between the bridge piers and surrounding air causes a decrease in the temperature of the piers, thereby increasing the heat exchange rate of the bridge energy pile in summer operation mode. When the heat transfer mode on the pier surface transitions from natural convection (air flow rate of 0 m/s) to forced convection (air flow rate of 5 m/s), the heat exchange rate of the bridge energy pile increases by approximately 22 W/m.
CHEN Nanqiao , WANG Xuepeng , LIN Gang , XU Changjie , XIONG Yi , CAO Huajin
2026, 48(1):89-99. DOI: 10.11835/j.issn.2096-6717.2024.076
Abstract:In this study, the deep foundation pit project of No.4 Wangjiang New City of Hangzhou New World is taken as a case study, and the zonal excavation process of the foundation pit is comprehensively monitored. Through the in-depth analysis of the monitoring data of the diaphragm wall deformation, soil inclinometer measurements,wall top settlement, and ground settlement outside the pit, and combined with the numerical model of the foundation pit zonal excavation established by PLAXIS 3D, we compare the numerical simulation results with the actual monitoring data to validate the accuracy of the model and to supplement the insufficiency of the monitoring data. The results show that the deformation of the diaphragm wall during the excavation of the foundation pit presents a typical parabolic variation pattern, and a push-back displacement toward the pit occurs during the post-excavation construction stage. The deformation characteristics of the soil outside the pit are similar to those of the diaphragm wall, but its deformation magnitude is relatively small. With the progress of foundation pit excavation, the ground settlement outside the pit increases gradually, and its displacement curve deviates from the traditional parabolic variation pattern due to the influence of environmental factors. In addition, the wall top settlement shows a clear trend of “first heave and then settle” during the foundation pit excavation and the construction of the main structure inside the pit.
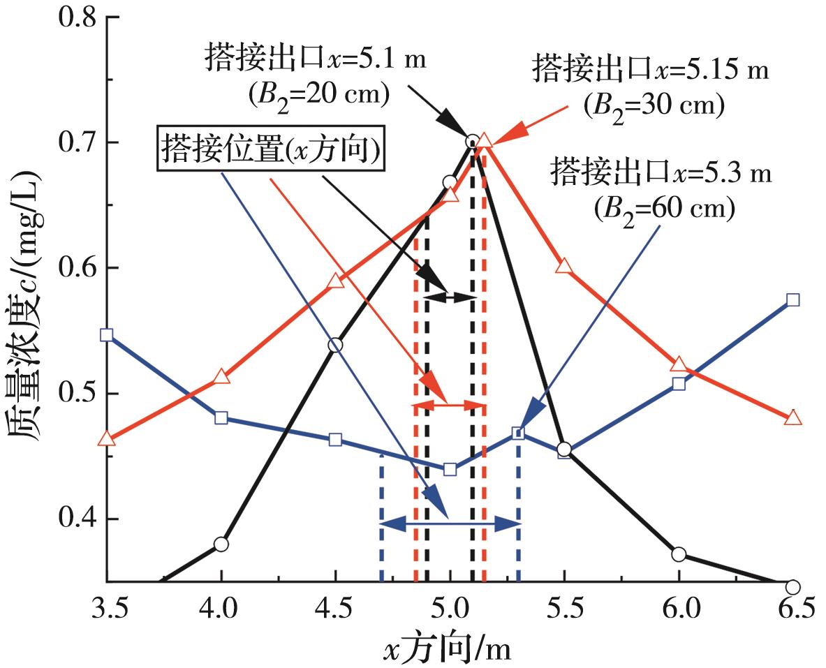
YANG Shizhao , XIAO Chengzhi , ZANG Nianyong , XIE Shiping , HE Shunhui
2026, 48(1):100-109. DOI: 10.11835/j.issn.2096-6717.2023.139
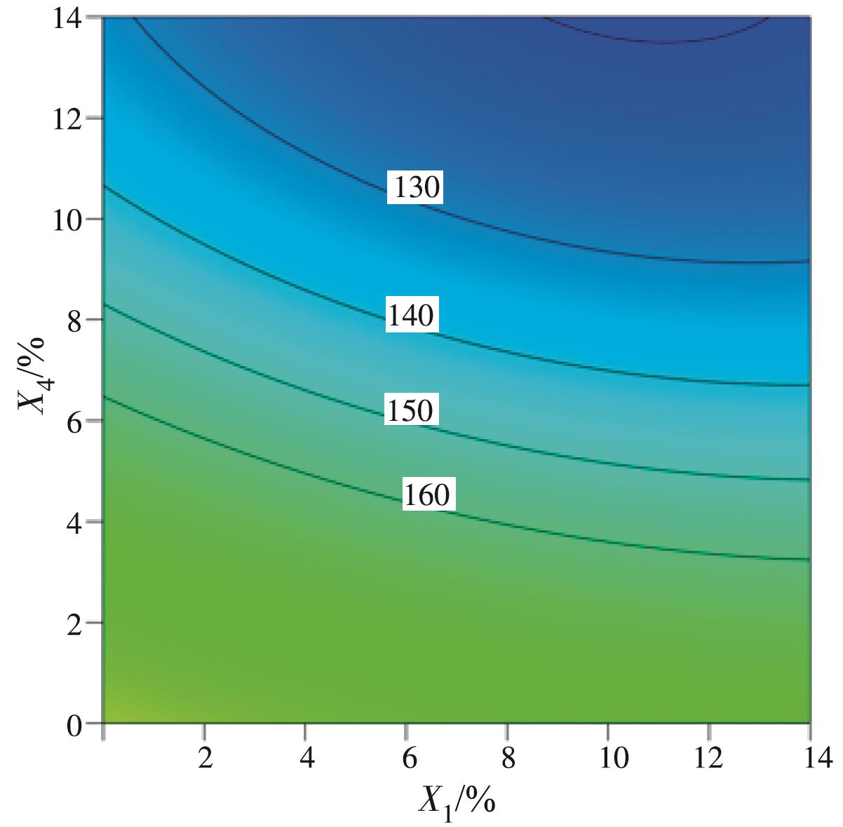
Abstract:Geosynthetic clay liners (GCL) composite vertical anti-seepage wall, which consists of a cement-bentonite slurry wall and geosynthetic clay liners, is a new type of vertical anti-seepage wall. GCL overlap width and the treatment effect of the overlap area are the important factors that influence the impervious performance of a GCL composite vertical barrier wall. A two-dimensional model for pollutant migration was presented in this study. The study conducted a comprehensive analysis of the impact of various factors, including the width of GCL overlap (B2), the permeability coefficient of the GCL overlap area (kp), the thickness of the cement-bentonite wall (Lw) and the permeability coefficient of the cement-bentonite wall (kw), on the transversal distribution of pollutants and the critical GCL overlap width. This analysis was based on a numerical simulation method. The calculation results showed that the bypass effect induced by the GCL overlap area has a significant influence on the anti-seepage performance. Keeping the other parameters identical, when the kp of the GCL overlap area is reduced from 1.0×10-6 m/s to 1.0×10-10 m/s, the critical GCL overlap width decreases considerably from 68.9 cm to 21.1 cm. Increasing Lw leads to a decrease in pollutant concentration at the exit of the overlap area and a reduction in the critical overlap width of the GCL. For example, when Lw is increased from 0.4 to 0.8 m, the breakthrough time is extended by approximately 2.5 times and the critical GCL overlap width is reduced by about 38.5%. Furthermore, when the kw of the cement-bentonite wall is reduced from 1.0×10-8 m/s to 5.0×10-10 m/s, the concentration of pollutant at the exit of the overlap area is decreased by 73.1 % and the critical width of the GCL overlap is reduced by about 33.3%.
LI Zheng , LI Wanglin , WANG Wansheng , YU Hairui , XUE Xia
2026, 48(1):110-117. DOI: 10.11835/j.issn.2096-6717.2023.121
Abstract:In order to find out whether the loading medium has an effect on the mechanical properties of geomembrane bulging deformation, HDPE geomembranes with three thicknesses of 0.2 mm, 0.3 mm and 0.6 mm were selected as the research objects. Using the special test equipment for bulging deformation, we used air and liquid as the loading media respectively. At the injection rate of 1 kPa/s, the spherical bulging deformation test under annular constraints was carried out, and the microscopic morphology changes and differential failure mechanisms of geomembrane bulging failure were emphatically analyzed by means of a polarizing microscope. The results show that under the same environmental conditions, the bursting pressure under liquid bulging is about 34% higher than that under air bulging, and the bulging height under liquid bulging is about 22% higher than that under air bulging. The bulging deformation of geomembranes under air and liquid bulging shows different stages of elastic, yield, strengthening and failure deformation. The geomembrane presents a linear failure surface during air bulging, which is manifested as uniform tensile deformation and fracture of the polymer chain segments at the micro level. The geomembrane presents a banded failure surface during liquid bulging, which is manifested as uneven tensile deformation and fracture of the polymer chain segments at the micro level. The influence of the loading medium on the mechanical properties and failure characteristics of the spherical bulging deformation of the geomembrane is mainly related to the properties of the medium itself, the distribution of pressure load under the membrane and the reorientation and recrystallization of polymer chains. According to the research results, it is recommended to use liquid medium to carry out the strength test for the bulging failure of the geomembrane.
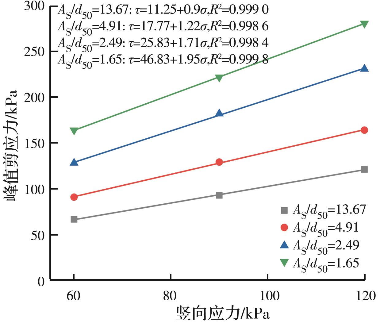
WU Jianqi , LUO Xiang , WANG Jun , LI Min , CHEN Teng
2026, 48(1):118-126. DOI: 10.11835/j.issn.2096-6717.2023.099
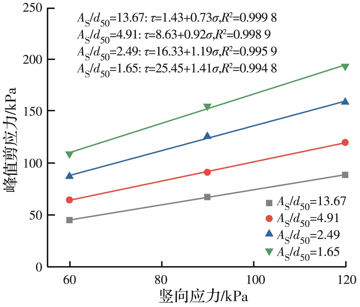
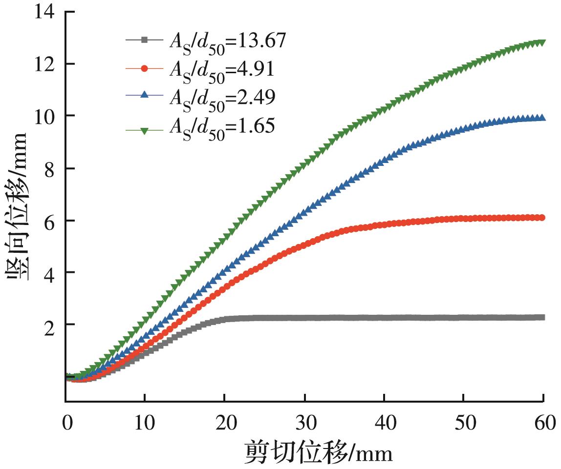
Abstract:In the context of ongoing economic development and urban expansion, there is an urgent need to promote the resource utilization and recycling of construction waste. As a crushed material obtained from the screening of construction waste, recycled concrete aggregate has broad application prospects. This study focuses on four distinct particle size ranges of recycled concrete aggregate. By introducing the concept of aperture ratio, the shear characteristics of the interface between the recycled concrete aggregate and biaxial polypropylene geogrids are investigated through large-scale direct shear tests under three different vertical stresses and four different shear rates. The findings demonstrate that as the aperture ratio diminishes, the peak shear stress and residual shear stress at the shear interface increased, and the peak shear stress occurred at a later stage. Conversely,as the aperture ratio decreases, the peak apparent cohesion and residual apparent cohesion undergo a gradual increase, and the peak internal friction angle and residual internal friction angle also increase. The addition of geogrids effectively reduces the occurrence of shear dilation at the interface. By introducing the Kalhaway constitutive equation, the expression for shear stiffness is derived through linear and logarithmic fitting, and the shear stiffness corresponding to the stress state (σn,τ) is thereby obtained.
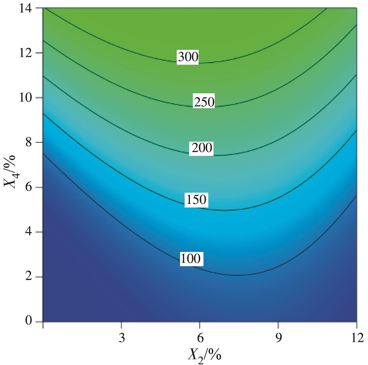
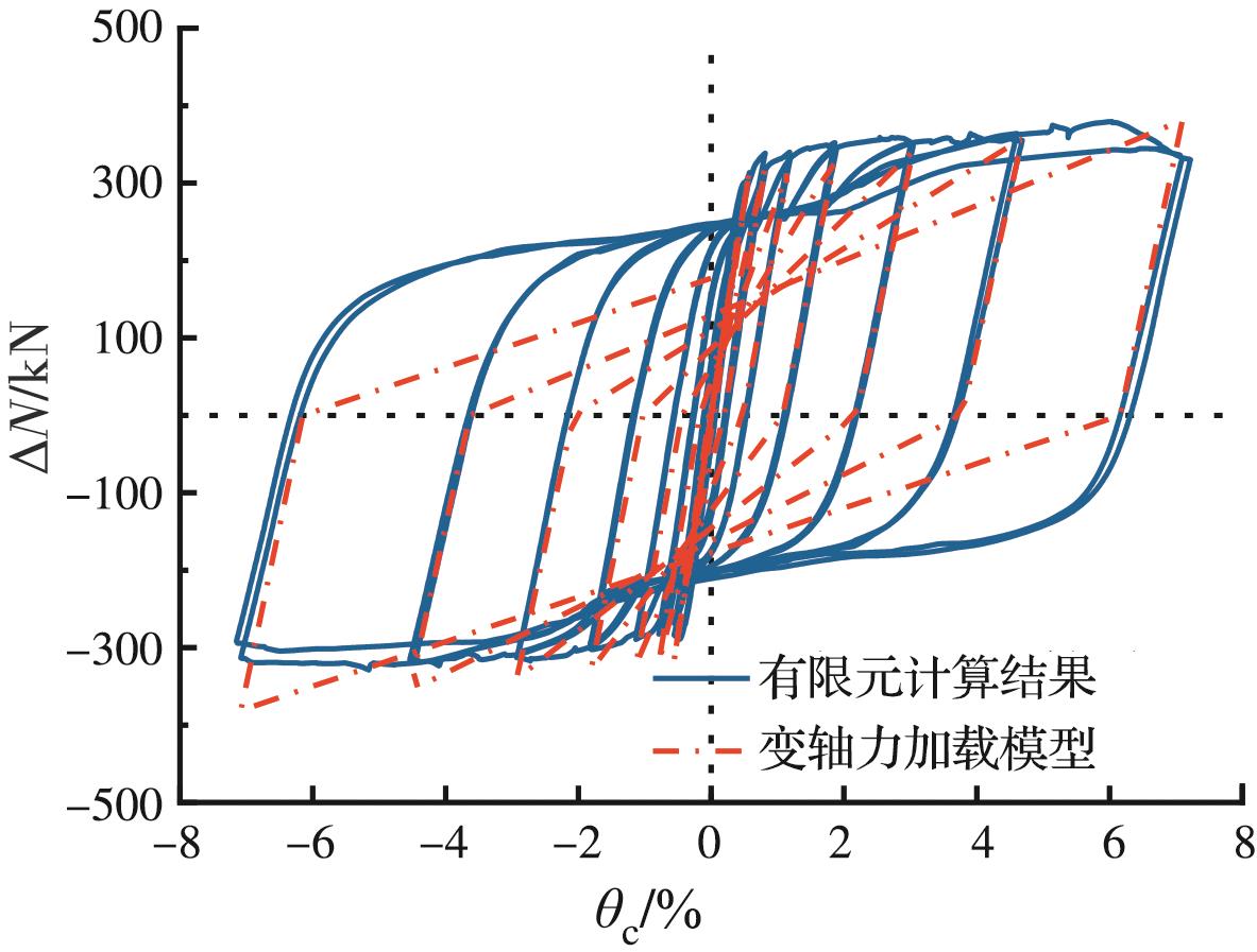
YANG Hong , WANG Ziyan , JIANG Hiu
2026, 48(1):127-141. DOI: 10.11835/j.issn.2096-6717.2024.080
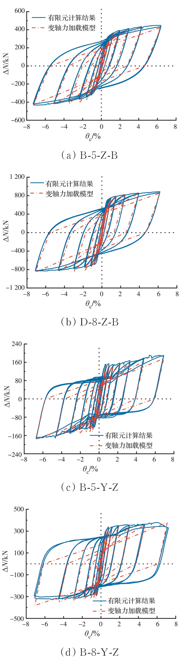
Abstract:The seismic performance of reinforced concrete (RC) beam-column joints is typically determined through constant axial loading experiments. The paucity of research in this field is evidenced by the absence of a reliable variable axial force loading protocol, thus resulting in only a small number of experimental studies on the seismic performance of RC joints considering the influence of variable axial force. Furthermore, all such studies assume that the axial force changes in accordance with a simplified linear method, which is an inadequate reflection of the real mechanical characteristics of beam-column joints in RC frame structures under horizontal earthquake excitations. The present study employs finite element simulation of six plane RC frames of seismic intensity 8 (0.2g) with different layers and spans under monotonic and cyclic loading to investigate the change mechanism of joint axial force under horizontal load, and to identify the influencing factors of the change in joint axial force. On the basis of theoretical analysis and statistical regression, a joint variable axial force loading protocol that is consistent with the characteristics of axial force changes and capable of accounting for the nonlinear behavior of materials has been proposed. The results show that the nonlinear behavior of concrete and reinforcement is the primary cause contributing to the nonlinear changes in joint axial force. Additionally, the tensile yield of longitudinal bars at beam end is identified as the principal factor influencing the regularity of the joint axial force changes. The present formula for calculating the change amplitude of joint axial force is proposed, with consideration given to the effects of the following factors: joint type, total number of structural floors, beam span, beam reinforcement area, and beam sectional dimensions. The skeleton curve of the proposed joint variable axial force loading protocol is capable of more accurately reproducing the characteristics of the gradual slowing down of the joint axial force change rate following the tensile yield of longitudinal reinforcement at the beam end of each floor above the joint. Furthermore, the hysteresis rule is able to account for the influence of the nonlinear behaviour of materials on the degradation of unloading stiffness in a reasonable manner.
WANG Peng , YOU Xuehui , SHI Qingxuan , TAO Yi
2026, 48(1):142-152. DOI: 10.11835/j.issn.2096-6717.2023.134
Abstract:The present study investigates the interfacial shear performance between ultra-high performance concrete (UHPC) and normal concrete (NC). To this end, 13 UHPC-NC direct shear specimens were designed and fabricated. Through push-out tests, the influence of UHPC rib width, height, and spacing on the interfacial failure mode and shear bearing capacity was discussed. Furthermore, a finite element model of the UHPC-NC specimens was established using the software ABAQUS, and a parameter analysis was conducted. The results indicate that the failure modes of the ribbed UHPC-NC interface mainly include: complete interface failure and UHPC ribs sheared off; partial interface failure and partial failure of NC embedded between UHPC ribs; and partial interface failure and complete failure of NC embedded between UHPC ribs. The specimens with rib widths of 10 mm primarily exhibit the first failure mode, while specimens with rib widths of 15 and 20 mm correspond to the latter two failure modes. It has been demonstrated that the shear capacity and slip of the interface increase with an increase in rib width and spacing, thereby demonstrating enhanced ductility. When the rib width is 10 mm, increasing the rib height has little effect on the shear bearing capacity, while when the rib width is 15 and 20 mm, increasing the rib height can improve the shear bearing capacity. In addition, increasing the number of ribs can improve the shear bearing capacity, but with the increase of the number of ribs, the effectiveness of bearing capacity enhancement significantly decreases.
TIAN Penggang , CAO Chenyang , LU Junlong , BIAN Zhaowei , WANG Zhenshan , YUAN Zuoyi
2026, 48(1):153-163. DOI: 10.11835/j.issn.2096-6717.2024.060
Abstract:Surveys of village buildings frequently reveal a paucity of essential seismic measures, resulting in a deficiency in seismic capacity. In order to enhance the seismic capacity of these buildings, it was necessary to reinforce the walls using polypropylene mesh and composite cement mortar. In order to investigate the seismic performance of reinforced masonry walls with openings, three wall models with openings were designed and subjected to quasi-static tests. The hysteresis and skeleton curves of the model specimens were obtained from these tests. Numerical models were then established using ABAQUS finite element software for the purpose of computational analysis. A comparison was then made between the results obtained from this analysis and the experimental findings, which revealed a high degree of consistency. The unreinforced specimens exhibited initial cracking at the corners of the openings under load, which gradually extended to the wall ends, forming “X” or “/\” shaped continuous cracks indicative of shear failure. Reinforcement with polypropylene mesh and composite cement mortar effectively delayed and mitigated wall damage. The ultimate bearing capacity of walls reinforced on one side and both sides increased by 68.75% and 107.05%, respectively, compared to unreinforced walls. Additionally, the initial stiffness of the walls improved by 11.68% and 46.55%, respectively, while the ductility performance increased by 6.34% and 14.63%. The analysis results indicate that both single-side and double-side reinforcement of masonry walls with openings significantly enhance their seismic capacity. The openings tend to form continuous cracks after initial cracking, and the failure mode differs from that of walls without openings.
LUO Ziqing , LUO Junhui , NING Jiejun , YIN Shiping , LIU Zirui
2026, 48(1):164-173. DOI: 10.11835/j.issn.2096-6717.2023.141
Abstract:The present study investigates the flexural performance of reinforced concrete beams reinforced with TRC composite embedded prestressed CFRP bars.To this end, a four-point flexural load test was carried out on one ordinary reinforced concrete beam and five beams reinfored with TRC composite embedded prestressed CFRP bars. The effects of slot size and diameter of CFRP bars on the flexural performance of the composite reinforced beams, including bearing capacity, failure mode and crack distribution, were analyzed. The test results show that the load increase of the composite reinforced beam is more obvious in each stage than that of the unreinforced beam. The ultimate load of the reinforced beam increases slightly with an increase of slot size and greatly with the increase of CFRP bar diameter. The flexural stiffness of the composite reinforced beam is obviously higher than that of the unreinforced beam. The increase of slot size and diameter of CFRP bars is not proportional to the increase of beam stiffness. The number of cracks in composite reinforced beams is obviously more than that of ordinary reinforced concrete beams, and the cracks show a fine and dense distribution characteristic, and it increases with the increase of slot size, but the diameter of CFRP bars has little effect. The ductility of the unreinforced beam is obviously higher than that of the reinforced beam on it. The ductility of the composite reinforced beam decreases with the increase of the diameter of the CFRP bar, and the increase of the slot size has no obvious effect on the ductility of the beam. Based on the calculation model of the cracking load of a single reinforced concrete beam proposed in the literature, a formula for calculating the cracking load of a composite reinforced concrete beam is proposed. The discrepancy between the calculated value and the test value is less than 6.5%, which indicates that the formula has adequate applicability.
LIAO Yue , LI Hantao , LIU Jiepeng , ZENG Yan , LI Laian , MA Xiaoxiao , CUI Na
2026, 48(1):174-183. DOI: 10.11835/j.issn.2096-6717.2023.147
Abstract:In the construction of large and intricate frame-panel structures, the curvature and twists of the backbone present a challenge in the assessment of the installation quality and the attachment of the panels.The classic method for panel detail design is associated with several drawbacks, such as low efficiency and the need for greater automation. In the context of the Nansha International Finance Forum project, we investigated intelligent construction techniques for large and intricate frame-panel structures, based on point cloud data (PCD) and heuristic algorithms. A backward modelling method applicable to the frame was proposed to meet the demand for the detailed design of the daylighting roof, and to build the reconstruction model for detailed design. An algorithm for extracting the axes of a polygon’s curved and twisted components was developed to assist in the geometric description. An intelligent cell extraction method was introduced to address the low efficiency of manual panel segmentation. Different strategies were used to generate and evaluate panel layout plans, based on the Guillotine algorithm. The results show that the proposed inverse modeling approach allows for the acquisition of profile geometry information with a defined sampling interval. Furthermore, the established frame model exhibits an accuracy better than 6 mm, making it suitable for panel deepening design applications. Panel cell partitioning methods could automatically extract information about various panel sizes, reducing manual point selection efforts. The material waste rate of the panel layout plan generated by the Guillotine algorithm could be limited to 15%.
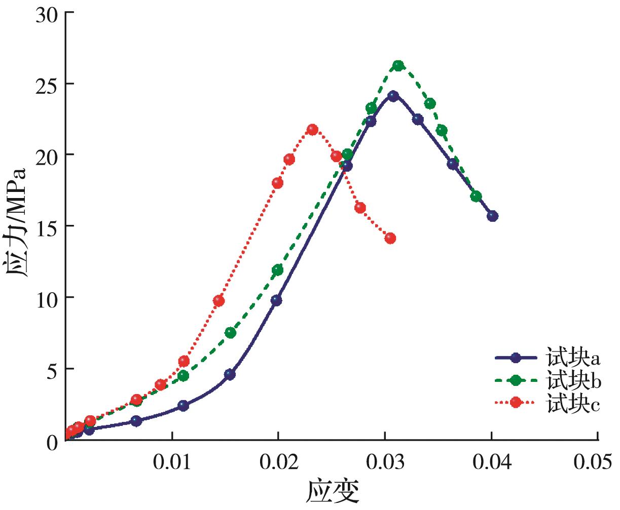
XIA Jiahui , JIANG Youbao , ZHANG Mingliang , WEN Jun , SHEN Tong
2026, 48(1):184-193. DOI: 10.11835/j.issn.2096-6717.2023.137
Abstract:In order to enhance the mechanical properties of 3D-printed concrete arc arch structures, this paper uses the methods of adding steel fibre and configuring steel reinforcement to investigate the effect of circumferential reinforcement on the mechanical properties of 3D-printed steel fibre concrete arch structures. The appropriate steel fiber content was determined by mechanical property tests under different steel fiber contents. On this basis, two groups of 3D-printed concrete arc arch structures were designed. By applying a uniform load to the arch roof, the load-displacement curves, strain changes with load, cracking load, and ultimate load of the arch structures were measured, and their deformation and failure laws were analyzed. Considering the influence of symmetric and asymmetric loading, as well as the position of sectional reinforcement, on the arch structure, finite element calculations were carried out to further study its bearing performance. The results show that: (1) When the steel fiber content changes in the range of 0-3%, the compressive strength of 3D-printed concrete in X, Y, and Z directions first increases and then decreases, and the compressive strength in the X, Y, and Z directions corresponding to 2% steel fiber content is the highest; (2) The loading failure process of the two groups of arch structures is basically the same, and the ultimate bearing capacity of the arch structure with circumferential reinforcement is about 37.5% higher than that of the plain concrete arch structure; (3) The adopted finite element modeling method is relatively accurate, with the error between the simulation results and the test results less than 4%. The loading method and the position of section reinforcement have certain effects on the ultimate bearing capacity of the arch structure.
FU Weiqing , DI Huilin , ZHAO Liang , WANG Jian
2026, 48(1):194-201. DOI: 10.11835/j.issn.2096-6717.2023.106
Abstract:In the structural context of urban rail transit systems, spring isolators are susceptible to stiffness reduction, damage, and sagging due to fatigue effects. The presence of concealed components can render their detection challenging during routine inspections. A vehicle-track coupled model was established using the finite element software ABAQUS. The model was validated using actual vibration data from a specific section of the Shenzhen Metro’s floating slab. A uniform design approach was adopted for the execution of parameter experiments on spring isolators under various conditions, including different levels of damage in terms of quantity, severity, and location. Through model simulation, the quantitative impact of these damage parameters on the vibration response of the floating slab was determined. The calculation results indicate that the location of damage to the spring isolators exerts the greatest influence on the acceleration and displacement of the floating slab, with respective impact weights of 50% and 49.3%. The impact of the number of damaged isolators is 28.4% and 27.9%, while the impact of damage severity accounts for 21.6% and 22.8%.It can be seen that the damage location of the floating slab has the greatest influence on its vibration response, followed by the number of damaged steel springs, and finally the damage degree of steel springs.
LI Min , YU Hemiao , LI Hui , ZHAO Moyan
2026, 48(1):202-209. DOI: 10.11835/j.issn.2096-6717.2023.128
Abstract:Understanding the mechanical properties of solidified oil-contaminated soil and the evolution of contaminant migration and diffusion under environmental effects is a key prerequisite for promoting the reuse of contaminated soil projects. Lime and fly ash with a low-carbon concept were selected as solidification materials. Combined with a leaching test and COMSOL Multiphysics software, the control of the solidification effect on oil migration under leaching environment was evaluated macroscopically by the oil content after leaching, and the mechanical stability under leaching was evaluated by soil strength and deformation. The results indicate that the solidification of lime-fly ash has the potential to address the issue of contaminant migration and diffusion, particularly in cases where a significant number of contaminants are migrating under the leaching effect of contaminated soil, and to achieve effective control of the migration of oil contaminants in soil. The oil content at each interface of solidified contaminated soil under the action of leaching is always close to the initial oil content setting state, and the migration rate is only 1.35%-2.76%. The variation range of the mechanical parameters of the solidified contaminated soil under leaching is positively correlated with confining pressure and contaminant concentration, but only fluctuates within 10 s of the initial stress and then the strength value is stable at 5.77×104-6.07×104 N/m2, and the maximum fluctuation value of displacement is 1.73×10-3-6.46×10-2 mm. The mechanical stability of solidified contaminated soil is good, and the safety factor Fs is more than 10. Lime-fly ash solidified oil-contaminated soil can take into account both environmental and engineering requirements, and exhibits the potential for engineering reuse.
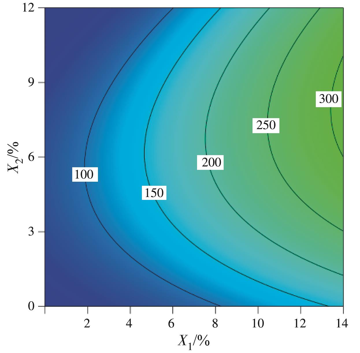
GUO Xiaojing , HUANG Zhiliang , CHEN Hui , HE Xiao , PU Hefu , YUAN Man , CAO Jianfeng
2026, 48(1):210-220. DOI: 10.11835/j.issn.2096-6717.2023.140
Abstract:In order to address the issues of elevated water content and diminished strength of municipal sludge in the landfills, a synergistic method using ferrous sulfate and cementitious materials (such as lime, fly ash, and cement) was proposed for the in-situ solidification of landfilled sludge, with its reagent dosage further optimized by the response surface method (RSM). In this study, the water content and unconfined compressive strength (UCS) of the solidified sludge after 28 days of curing were selected as evaluation indexes. Initially, a single factor test was conducted to explore the roles of ferrous sulfate and cementitious materials in the sludge solidification process, followed by the analysis of interactions between ferrous sulfate and cementitious materials using RSM to optimize the material dosages. The results showed that both ferrous sulfate and cementitious materials could reduce the water content of the solidified sludge, with lime and cement exhibiting more significant reduction effects; the UCS of the solidified sludge increased with increasing ferrous sulfate and cement dosages, first increased and then decreased with lime dosage, and remained essentially unchanged with fly ash dosage; the quadratic polynomial model derived from RSM could accurately predict the water content and UCS of the solidified sludge, and verification indicated that the relative error between the predicted and experimental values was less than 20%; under the constraints set in this study, the water content of the solidified sludge in the recommended solution R7 (ferrous sulfate 8%, lime 6%, fly ash 10%, and cement 11%) decreased from 360.3% to 131.5%, while the UCS increased from 0 to 317.0 kPa. The aforementioned results met the requirements for landfill disposal and mechanical access.
JIANG Siwei , YANG Hao , HE Qiang , FENG Xuemei , WANG Wei , ZHAO Gang , GUO Jinsong
2026, 48(1):221-230. DOI: 10.11835/j.issn.2096-6717.2025.097
Abstract:The Dazu Thousand-handed and Thousand-eyed Avalokitesvara is regarded as the largest and most completely preserved cliff carving of its kind in China. It is a remarkable integration of rock carving, polychromy, and gold foil application, and is regarded as the largest and most completely preserved Thousand-handed Avalokitesvara cliff carving extant in China. Recent continuous monitoring has revealed evident deterioration of the gold foil surface, primarily manifested as discolouration, cracking, and loss of the foil. A plethora of studies have examined the influence of environmental physicochemical factors and material characteristics on the corrosion of gold foil, however, the influence of microorganisms has received limited attention. The present study was conducted for the purpose of systematic characterisation of the microbial communities colonizing the gold foil surface using sterile swab sampling followed by high-throughput sequencing technology of the 16S rRNA gene and the Internal Transcribed Spacer (ITS). The results showed that bacterial communities were dominated by Firmicutes, Actinobacteriota and Proteobacteria at the phylum level, with Salinisphaera and Pseudonocardia identified as the core dominant genera. Fungal communities were primarily composed of Ascomycota and Mucoromycota, exhibiting dominance of Aspergillus, Filobasidium, and Mucor. Two dominant fungal strains (Aspergillus versicolor and Mucor fragilis) were successfully identified through selective media isolation, combined with colonial morphology observation and ITS sequence analysis. Based on the existing literature on microbial metabolism, these strains are hypothesized to facilitate gold foil corrosion via synergistic physical, chemical, and bioelectrochemical mechanisms.
WU Erhan , MAO Yufeng , HE Qiang , KONG Ciming
2026, 48(1):231-242. DOI: 10.11835/j.issn.2096-6717.2024.113
Abstract:Methane (CH4), an important greenhouse gas, exerts a substantial influence on global climate change. Rivers are crucial sites for methane production, but the complexity of environmental conditionsin rivers makes it difficult to conduct in-depth research on methane generation by river microorganisms with traditional methods. This article first outlines the basic classification of methanogenic microbes, their distribution and the pathways of methane formation such as the hydrogen nutrition metabolism pathway, the formic acid fermentation pathway, the acetic acid fermentation pathway, the methyl nutrition pathway, and the non-enzymatic reaction pathway. Then, it explores the eight environmental factors affecting the methane production process of river microorganisms: temperature, pH value, redox potential, flow rate and water level, water flow shear force, meteorological conditions, and vegetation type. Subsequently, an overview is provided of the application of molecular biology techniques including PCR technology and high-throughput sequencing, in the study of river microbial methane production. Finally, it points out the problems in current research on methane production by river microorganisms, which are the insufficiency in characterizing river environments, limitations in the application of PCR and sequencing technology, as well as the complexity of data interpretation and analysis. Moreover, it discusses future research on river methane emissions from three directions: the construction and application of river environmental models, the deeper application of molecular biology technology, and knowledge sharing and intelligent analysis, providing new ideas and methods for the exploration on river microbial methane production.
You are the visitor 
ContactAddress:重庆市沙坪坝区沙正街174号,重庆大学A区
Postcode:400045 Fax:
ServiceTel:023-65111322 E-mail:xuebao@cqu.edu.cn
Copyright: ® 2026 All Rights Reserved