土木建筑与环境工程  2015, Vol. 37 Issue (6): 39-46   PDF    
内框架箱型混凝土结构施工活荷载实测分析
郭艳1, 胡长明1, 汪杰2, 张延杰1    
1. 西安建筑科技大学 土木工程学院,西安 710055;
2. 成都市CCDI悉地国际设计有限公司,成都 610041
收稿日期:2015-07-27
基金项目:陕西省教育厅专项科研计划项目(12JK0898);陕西省社会发展科技攻关项目(2015SF290)
作者简介:郭艳(1989-),女,博士生,主要从事土木工程施工与管理研究,(E-mail)newmanguoyan@126.com
摘要:施工期早龄期钢筋混凝土结构与模板支撑系统组成临时承载体系为时变结构,其承担的荷载主要有新浇筑混凝土自重与包括施工人员和设备荷载以及混凝土浇筑时产生的冲击和振捣荷载在内的施工活荷载。将多层连续施工时变结构体系模拟成一组弹性支撑连续板,根据该模型分析了施工期现浇钢筋混凝土结构的受力特性。根据现场实测数据,以构件有效承载面积为统计对象,计算了混凝土施工荷载的统计参量,并参考相关研究成果,以95%的置信度对施工期活荷载标准值进行反演,建议施工活荷载标准值取2.5 kN/m2
关键词临时承载体系    时变结构    弹性支撑连续板    施工活荷载    反演    
Live construction load of a bus station based on the mathematical statistics
Guo Yan1, Hu Changming1, Wang Jie2, Zhang Yanjie1    
1. School of Civil Engineering, Xi'an University of Architecture and Technology, Xi'an 710055, P.R. China;
2. Construction International (Chengdu) Design Consultant Co., Ltd, Chengdu 610041, P.R. China
Received: 2015-07-27
Foundation item: Education Department of Shaanxi Provincial Government (No.12Jk0898); Social Development by Department of Science and Technology of Shaanxi Provincial (No.2015SF290)
Author brief: Guo Yan (1989-), PhD candidate, main research interests: civil engineering construction and management, (E-mail)newmanguoyan@126.com.
Abstract: The temporary supporting system also referred as time-dependent structural system during construction, consist of early-age reinforced concrete structures and formwork supporting system. It bears the load including the new concrete weight and the live construction load. A model of continuous beam with spring supports is put forward to analyze the mechanical characteristics of the reinforced concrete structures during construction. Based on-site measuring data, effective bearing area of members were used as statistical objects to calculate statistical parameters of live construction load of concrete buildings. By referring todomestic and foreign achievements, the the standard value of the live construction load was inverted with 95% reliability and standard value of live construction load of 2.5 kN/m2. is recommended.
Key Words: temporary supporting system    time-dependent structure    continuous beam with spring supports    live construction load    vibration    

钢筋混凝土结构施工过程中,由模板及支撑承担新浇筑混凝土的自重及施工活荷载,随后该层混凝土具有一定的承载能力,故施工期临时支撑系统由早龄期钢筋混凝土及模板支撑两部分组成[1-2], 它是一个时变结构体系[3],随着龄期的增长,新浇筑混凝土的强度不断提高。近年来各国学者不断对该类型时变结构体系进行研究,广泛运用弹性连续支撑板模型[4-7],该模型认为在现浇钢筋混凝土结构施工期间,承担荷载传递的模板支撑系统是连续均匀分布的弹性支撑,支撑楼板是弹性板。对凝土结构新浇筑楼板施工活荷载进行了研究,指出以有效承载面积计算等效均布荷载、建立概率模型拟合施工活载荷载的方法,并在施工现场进行了调查验证;谢楠等[10-11]将二维结构影响线的概念推广到三维模板支撑体系,采用机动法给出了模板支架立杆轴力影响面的表达式,给出了荷载作用效应正负区域的等效影响面高度,并提出了混凝土荷载、施工活荷载和大型布料设备荷载的标准值。赵挺生等[12-13]以构件有效承载面积为统计对象,建议了不同设计有效承载面积时施工活荷载的取值范围;并指出分析梁板柱混凝土结构施工阶段承担的施工荷载时,应按梁、板两个时变结构分别计算作用于梁、板以及梁与板上支架的施工荷载。苗吉军等[14]研究了高层建筑混凝土结构施工过程中的施工活荷载,通过对国内外施工活荷载统计结果比较,给出了各阶段施工活荷载的数学模型和建议标准值。

目前,对房屋建筑领域内多层连续混凝土模板支架的研究较多,对混凝土结构施工期活荷载的计算及实测也为类似工程的设计施工提供了一定的指导,但市政工程项目因其特殊性(层高、跨度大,结构板较厚,承担荷载较大等)成为近年来施工安全事故的高发区,针对其施工活荷载的研究也逐渐增多。

本文以内框架箱型结构岛式地铁车站两层连续模板支撑的现场实测为基础,运用弹性连续支撑板模型,以构件有效承载面积为统计对象进行施工期活荷载反演,运用预警监测技术对施工阶段地铁车站进行安全控制研究,可为类似工程提供指导。

1 弹性支撑连续板简化模型

在对多层混凝土结构进行分析时,楼板之间的模板支撑可以看作是一种弹性支撑,这种弹性支撑连续均匀的分布于楼板之间。在外荷载F的作用下,可以根据变形协调及力的平衡条件对其进行求解,如图 1所示,本文测试的两层连续支撑架可简化为三层楼板两层弹性支承,其力的平衡及变形协调方程为

$ F = {F_1} + {F_2} + {F_3} $ (1)
$ {\mathit{\Delta }_2} = {\mathit{\Delta }_1} + {\mathit{\Delta }_{{\rm{支}}1}} $ (2)
$ {\mathit{\Delta }_3}{\rm{ = }}{\mathit{\Delta }_1} + {\mathit{\Delta }_{{\rm{支}}1}} + {\mathit{\Delta }_{{\rm{支}}2}} $ (3)
$ {F_1} = {k_1}{\mathit{\Delta }_1} $ (4)
$ {F_2} = {k_2}{\mathit{\Delta }_2} = {k_2}({\mathit{\Delta }_1} + {\mathit{\Delta }_{{\rm{支}}1}}) $ (5)
$ {F_3} = {k_3}{\mathit{\Delta }_3} = {k_3}({\mathit{\Delta }_1} + {\mathit{\Delta }_{{\rm{支}}1}} + {\mathit{\Delta }_{{\rm{支2}}}}) $ (6)
图 1 弹性支撑模型 Fig. 1 The model of continuous beam with spring supports

式中:F为结构承担的外荷载;F1F2F3为底层、二层及顶层楼板承担的荷载;Δ1Δ2Δ3Δ支1Δ支2为底层、二层、顶层楼板的挠度及一层、二层模板支撑的轴向变形;k1k2k3k支1k支2为底层、二层、顶层楼板及一层、二层模板支撑的刚度。

2 现场测试

对某地铁换乘站梁板结构施工进行了两层连续模板支架测试,依据弹性连续支撑板模型进行了结构板与支撑架共同承力分析,讨论了荷载传递规律,并为反演施工期活荷载取值提供数据基础。

2.1 工程概况

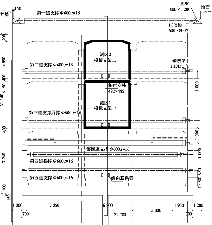
某地铁车站为一号线与中远期三号线的换乘站,两部分车站一次建成,分期运营,整个车站呈“T”型布置,车站结构形式为内框架箱型结构岛式车站。车站主体结构顶层混凝土板厚900 mm (局部厚度为800 mm),底层混凝土板、二层混凝土板厚度500 mm (局部厚400 mm),底层结构层高6.05 m (局部6.15 m),二层结构层高4.95 m。基坑剖面见图 2,图中虚线为混凝土梁板柱结构,加粗区域为连续测试的两层模板支撑架位置,称为测区1和测区2。

图 2 基坑剖面图 Fig. 2 Cross-section of the foundation pit

施工时采用Ф48 mm×3.5 mm碗扣式钢管满堂支架作为临时支撑结构,架体立杆横距la=900 mm、纵距lb=900 mm、步距h=1 200 mm,为满足侧墙模板支撑的承力需求,运用扣件式钢管将步距调整为600 mm,组成混合模板支架;混凝土浇筑采用泵送形式、泵管末端为软导管。

2.2 测试系统设置

现场测试采用DH3816静态应变测试系统进行模板支架立杆应变采集。该工程的模板支架在应用过程中各杆件均处于弹性阶段,故数据处理过程中假定钢管材料强度设计值205 N/mm2,钢管为弹塑性材料,弹性模量为2.06×105 N/mm2,由σ=N=σA可得到模板支架中各测试立杆的轴力。

测区1和测区2的模板支架搭设参数及位置均相同,故选取上下层位置对应的立杆进行应变测试,立杆位置如图 3所示,立杆1L10和立杆2L10四周的加粗区域为单根立杆等效承载面积的平面示意;各测杆上的应变测点布置如图 4所示,每根立杆布置4个应变测点,图中Li为立杆编号,i=1,2,…,17。

图 3 测试立杆位置平面图 Fig. 3 Plan view of the measuring poles

图 4 立杆应变布置图 Fig. 4 Arrangement of the strain in poles

模板支架一第一次受力时应变数据采集时间间隔为:混凝土浇筑前每5 min进行一次采样,且在混凝土浇筑前两天开始进行采样;混凝土浇筑过程中,每2 min进行一次采样;混凝土浇筑完成后,每5 min采样一次。模板支架二及模板支架一第二次受力时应变数据采集时间间隔为:混凝土浇筑前每10 min进行一次采样,且在混凝土浇筑前两天开始进行采样;混凝土浇筑过程中,每5 min进行一次采样;混凝土浇筑完成后,每10 min采样一次。

2.3 测试结果分析

为方便区分不同施工阶段两层模板支架的受力情况,现规定如下:将模板支架一的立杆在测区1顶板混凝土浇筑期间的轴力变化过程记为阶段一;将模板支架一的立杆在测区1顶板混凝土开始养护至测区2顶板混凝土浇筑期间的轴力变化过程记为阶段二;将模板支架二的立杆在测区2顶板混凝土浇筑期间的轴力变化过程记为阶段三;模板支架一、模板支架二、测区一及测区二的位置示意见图 2

施工中立杆轴力因混凝土的倾倒急剧增大,振捣使得立杆轴力出现波动现象,阶段一立杆轴力时程如图 5所示;阶段二立杆轴力时程如图 6所示;阶段三立杆轴力时程如图 7所示。图 5~图 7中横坐标为表示时间点的采集次数(图 5~图 7仅为示意,各阶段不同立杆轴力变化趋势一致。图 5为立杆1 L10在二层混凝土板开始浇筑至完成浇筑过程中的轴力变化,图 6为立杆1 L10在二层混凝土板浇筑完成至顶层混凝土板浇筑完成期间的轴力变化,图 7为立杆2 L10在顶层混凝土板开始浇筑至完成浇筑过程中的轴力变化。)。

图 5 阶段一立杆1 L10轴力变化趋势 Fig. 5 Axial force of pole 1 L10 in stage 1

图 6 阶段二立杆1 L10轴力变化趋势 Fig. 6 Axial force of pole 1 L10 in stage 2

图 7 阶段三立杆2 L10轴力变化趋势 Fig. 7 Axial force of pole 2 L10 in stage 3

阶段一数据采集较为密集,不方便整理分析,故阶段二和阶段三将数据的采集频率降低。

测区1顶板混凝土一次浇筑成型,故模板支架的内力有一次突变过程,如图 5所示,OA段为混凝土浇筑至测试立杆附近时,测试立杆已开始缓慢受力;AB段为模板支架内力的瞬时突增过程,增幅约为10 kN (此值与单根立杆有效承载面积内新浇混凝土的重量相近),且立杆轴力随着BC段混凝土的振捣不断波动,波动频率较快、幅值在5~9 kN范围内。

测区1顶板混凝土浇筑完成后,模板支架一承担全部混凝土重量,即阶段二初期立杆轴力仍缓慢增长,见图 6OA段;随着混凝土养护过程的推进,测区1顶板混凝土强度不断增长、逐渐承担自身重量,立杆轴力也随之减小,如AB段所示;测区2顶板混凝土分两次浇筑,故模板支架一第二次承载时立杆的轴力有BC段和DE段两次明显的突增过程。

图 7所示,模板支架二与模板支架一第二次受力时变化趋势相近,立杆轴力也出现了AB段和CD段两次波动,但其增长速度比模板支架一快、突增幅值也比模板支架一大,主要原因为测区1顶板混凝土已具有一定的强度、可承担部分上层荷载,经过内力重分配后将部分荷载传递给模板支架一。

3 施工期活荷载反演

施工活荷载反演的步骤为

1)以现场测试的立杆轴力为基础,反演单根立杆有效承载面积上的等效荷载值;

2)分析该等效荷载值的组成部分,从中提取施工活荷载测试值;

3)运用数理统计中区间估计的方法求得施工活荷载所在的区间范围,确定施工活荷载标准值。

3.1 计算施工期活荷载等效值

每个阶段测试了17根立杆的应变,但因施工现场环境的复杂性使立杆16和立杆17的测点遭到破坏,故将各阶段测试所得的15根立杆应变数据转换为其轴力,见表 1(压力以负值表示,拉力以正值表示)。表中每根立杆的轴力由图 4所示的4个测点应变计算得到,当4个测点应变同号(可能出现立杆弯曲导致拉压应变同时出现在一根立杆上)时以其平均值进行计算;当4个测点应变异号时以绝对值较大的同号应变测点的平均值进行计算。因测试为长期连续过程,无法将全部数据给出,故表中仅罗列各阶段立杆轴力的最大值、最小值和全段均值,作为反演施工活荷载的测试数据基础。

表 1 测试所得立杆轴力 Table 1 Axial force of each poles in test

采用有效影响面积的方法对施工活荷载进行推导,推导中认为每根立杆承担的荷载包含以其为角点的4个矩形面单元荷载的1/4,反之每个矩形单元的荷载可由其角部4根立杆测试得到的轴力共同组成。以单根立杆承担的荷载为研究对象,将其等效为有效影响面积内的均布面荷载值,设计中考虑荷载的最不利影响,故以实测轴力的最大值进行反演,等效面荷载见表 2

表 2 等效面荷载值q Table 2 Equivalent surface load q

表 2中等效面荷载值q=Pmax/Aequ,其中,Pmax表 1中各阶段立杆的最大轴力值,Aequ=la×lb为单根立杆的有效承载面积,如图 3中立杆1L10和立杆2 L10周围的加粗区域所示。

混凝土结构施工期间,荷载是随机的(表现为模板支架立杆轴力的波动性),实测的任一支架立杆轴力时程s(t)均为荷载随机过程S(t)的子样。施工期间的荷载随机过程可表示为:

$ S(t) = G(t) + L(t) $ (7)

G(t)、L(t)分别为恒荷载随机变量和活荷载随机变量。对每层楼板浇注后的施工荷载进行统计,则可获得每个施工循环中施工荷载在模板支架和混凝土楼板中的分布规律。

本次支架立杆应变测试开始采集数据时模板及钢筋分部工程已完成,故表 2中得到的等效面荷载仅包含施工活荷载和新浇混凝土重量,由式(7)知施工活荷载随机过程可表示为:

$ L(t) = S(t)-G(t) $ (8)

因此,将混凝土重量扣除则得到施工活荷载值,见表 3表 3中施工活荷载值qequ=q-γh′,其中,γ为新浇筑混凝土的重度、h′为立杆顶部混凝土板的厚度。阶段二为模板支架一的第二次受力过程,该阶段模板支架承力复杂,且不直接承担施工荷载,故仅对阶段一和阶段三进行施工活荷载反演。

表 3 立杆对应影响面上施工活荷载值qequ Table 3 Construction live load qequ of the influence surface

表 3中的施工活荷载具有较强的离散性,出现正值的主要原因在于:参考规范对立杆轴力设计值进行计算时,选取的荷载设计值以等值集中力的形式作用于每根立杆端部,但实际工程中由于施工现场模板支架的搭设必然存在缺陷,使得立杆不可能均匀受力,因此,由测量所得的立杆轴力对板面施工活荷载进行反演必然导致部分为正值(拉力)、部分为负值(压力)。

3.2 确定施工活荷载标准值

数理统计学中引入了置信度的概念来分析不确定问题,本文将采用此方法对反演的施工活荷载进行分析,此处选定的未知参数就是施工活荷载X。假设未知参数X所对应的母体(X1X2……Xn,即Xi为随机变量,且各随机变量之间相互独立同分布)服从正态分布N(μσ),反演出的施工活荷载值组成母体的一个子样,统计结果见表 4

表 4 施工活荷载统计参数 Table 4 Statistical parameters of construction live load

由检验公式${U_{\rm{a}}}{\rm{=}}\frac{{\left| {{g_1}} \right|}}{\sigma }$${U_{\rm{b}}}=\frac{{\left| {{g_2}} \right|}}{\sigma }$[15],式中g1g2分别为偏度和峰度,σ为标准差。

表 4中数据代入上式得:

阶段一:Ua=0.128,Ub=0.186,小于U0.05=1.96;阶段二:Ua=0.094,Ub=0.275,小于U0.05=1.96

因此,假设正确,测试所得施工活荷载服从正态分布N(μσ)。

由统计学知,式(9)服从自由度为n-1的t分布,且其概率满足式(10)所示的关系式,其中1-α为其置信度。将式(10)移项通分为式(11),即可得到置信度为1-α时位置参数的置信区间,取置信区间的置信限为界即可保证母体中任意元素的值均在置信度1-α对应的置信区间内。

$ T = \frac{{\bar T-\mu }}{{{s^*}/\sqrt n }} $ (9)
$ P\left\{ {-{t_{\frac{\alpha }{2}}}(n-1) < \frac{{\bar T-\mu }}{{{s^*}/\sqrt n }} < {t_{\frac{\alpha }{2}}}(n - 1)} \right\} = 1 - \alpha $ (10)
$ \begin{array}{l} P\{ \bar X-{t_{\frac{\alpha }{2}}}(n-1)\frac{{{s^*}}}{{\sqrt n }} < \mu < \\ \bar X + {t_{\frac{\alpha }{2}}}(n-1)\frac{{{s^*}}}{{\sqrt n }}\} = 1 - \alpha \end{array} $ (11)

对于测试阶段一和阶段三,当以95%置信度进行施工活荷载计算时,置信区间分别为(-2.376,1.627)和(-1.583,0.683);当以90%置信度进行施工活荷载计算时,置信区间分别为(-2.007,1.211)和(-1.371,0.472)。

基于上述计算,建议施工活荷载标准值取2.5 kN/m2,该值包括施工期人员和设备荷载以及混凝土浇筑时产生的冲击与振捣荷载。

3.3 施工活荷载实测反演的特点

《建筑施工模板安全技术规范》(JGJ162-2008)及《建筑施工碗扣式钢管脚手架安全技术规范》(JGJ166-2008)都对混凝土施工期荷载的取值进行了规定,对人员设备及混凝土浇筑振捣荷载标准值的取值分别规定为(1 kN/m2,2 kN/m2)和(1 kN/m2,1 kN/m2);而《混凝土结构工程施工规范》(GB 506666-2011)规定混凝土结构施工期人员及设备荷载取3 kN/m2,对浇筑及振捣荷载的取值没有做出明确规定。

可见,不同规范对混凝土结构施工期活荷载的规定并不一致,涉及到具体工程时因条件的复杂性,可能会遵循不同的规范,从而造成设计上的偏差。经过统计分析,本文反演的施工活荷载值为2.5 kN/m2,该值更接近于《建筑施工模板安全技术规范》(JGJ162-2008)的规定。

施工中除按照各规范规程对模板支架进行设计外,也常采用数值模拟的形式对施工方案进行预分析,但现场施工条件复杂无法在模拟时将各因素全部考虑在内,经条件假设后的简化分析模型存在一定的误差,故数值分析方法精度较小。从而对特殊工程混凝土施工期活荷载进行实测分析具有一定的必要性,可为同类工程施工提供参考;实测反演计算的施工活荷载与规程规范相比具有较高的可信度。

3.4 连续模板支架承担荷载规律性探讨

假设单根立杆对应等效影响面积内楼板混凝土的质量为D,以连续两层模板支架立杆的轴力与楼板质量D之间的关系确定模板支架承担荷载的规律性。即D=la×lb×d×y,其中,d为顶层楼板厚度,支架上方浇筑区域楼板厚800 mm;y为混凝土密度,取为24 kN/m3;则D=la×lb×d×y=0.9×0.9×0.8×24=15.55 kN。

表 1中测试所得的阶段二和阶段三的立杆最大轴力与上述楼板质量D相比较,且以质量D来表示立杆轴力,所得各立杆的轴力与对应楼板质量的关系见表 5

表 5 立杆轴力与等效面上楼板质量的关系 Table 5 Relationship between the axial force and the weight of the floor slab

表 5统计数据知,顶层混凝土浇筑时模板支架一的立杆约承担其相应影响面上楼板质量的120%,模板支架二的立杆约承担115%;二层混凝土楼板尚未达到其设计承载力,在上部结构施工中起传力作用;赵挺生等[16]研究了施工周期分别为5 d、7 d和10 d条件下施工时变结构体系弹性特征值的变化规律,但本文的测试数据与之有较大差异,建议在公共项目混凝土厚板施工时进行施工预警监测及必要的荷载分布情况研究。

4 结论

通过现场连续模板支架应变测试、进行施工活荷载反演、分析连续模板支架承担施工荷载规律性等,以95%的置信度建议包括施工期人员和设备荷载以及混凝土浇筑时产生的冲击与振捣荷载等在内的施工活荷载标准值取为2.5 kN/m2,该工程实际的荷载参数接近于《建筑施工模板安全技术规范》(JGJ162-2008)对施工活荷载的规定,且实测反演的施工活荷载值可信度高,比数值分析方法更加合理;连续楼板施工中新浇层模板支架立杆承担约1.15倍相应影响面上楼板的质量,下层模板支架则承担约1.2倍,该比值与施工周期及楼板厚度有关,同时,可说明先浇筑的混凝土楼板能在短时间内发展强度并承担一定的荷载;建议根据不同施工工况进行连续模板支架性能研究,将弹性连续支撑板模型更广泛的应用于模板支撑工程的设计和实用中。

参考文献
[1] 赵挺生, 方东平, 顾祥林, 等. 施工期现浇钢筋混凝土结构的受力特性[J]. 工程力学, 2004, 21(2) : 62–68.
Zhao T S, Fang D P, Gu X L, et al. Performance of casting in-site concrete buildings during construction[J]. Engineering Mechanics, 2004, 21(2) : 62–68. (in Chinese)
[2] 赵挺生, 张传敏, 方东平. 模板支撑薄弱层对现浇钢筋混凝土建筑结构施工荷载分布的影响[J]. 工程力学, 2004, 21(2) : 62–68.
Zhao T S, Zhang C M, Fang D P. Effect of weakened shoring layer on load distribution of reinforced concrete structures during construction[J]. Engineering Mechanics, 2004, 21(2) : 62–68. (in Chinese)
[3] 王光远. 论时变结构力学[J]. 土木工程学报, 2000, 33(6) : 105–108.
Wang G Y. On mechanics of time-varying structures[J]. China Civil Engineering Journal, 2000, 33(6) : 105–108. (in Chinese)
[4] Grundy P, Kabaila A. Construction loads on slabs with shored formwork in multistory buildings[J]. ACI Journal, 1963, 60(12) : 1729–1738.
[5] 赵挺生, 方东平, 张传敏. 施工阶段多(高)层建筑钢筋混凝土结构统一模型[J]. 清华大学学报:自然科学版, 2004, 44(12) : 1680–1683.
Zhao T S, Fang D P, Zhang C M. Unified model of reinforced concrete structures of multi-story or high-rise building during construction[J]. Journal of Tsinghua University: Science and Technology, 2004, 44(12) : 1680–1683. (in Chinese)
[6] 方东平, 耿川东, 祝宏毅, 等. 施工期钢筋混凝土结构特性的计算研究[J]. 土木工程学报, 2000, 33(6) : 57–62.
Fang D P, Geng C D, Zhu H Y, et al. Analysis of reinforced concrete structures during construction[J]. China Civil Engineering Journal, 2000, 33(6) : 57–62. (in Chinese)
[7] 方东平, 祝宏毅, 耿川东, 等. 施工期钢筋混凝土结构特性的实测研究[J]. 土木工程学报, 2001, 34(2) : 7–10.
Fang D P, Zhu H Y, Geng C D, et al. Generalized inverse method for underground structure load[J]. China Civil Engineering Journal, 2001, 34(2) : 7–10. (in Chinese)
[8] Saeed K, Haitham A. Analysis of concrete construction live loads on newly poured slabs[J]. Journal of structure engineering, 1994(120) : 1525–1542.
[9] Haitham A, Saeed K. Survey results for concrete construction live loads on newly poured slabs[J]. Journal of Structure Engineering, 1994(120) : 1543–1562.
[10] 谢楠, 梁仁钟, 胡杭. 基于影响面的混凝土浇筑期施工荷载研究[J]. 工程力学, 2011, 28(10) : 173–178.
Xie N, Liang R Z, Hu H. Analysis of construction loads on formwork during concrete placement based on influence surface[J]. Engineering Mechanics, 2011, 28(10) : 173–178. (in Chinese)
[11] 谢楠, 张坚, 张丽, 等. 基于影响面的混凝土浇筑期施工荷载调查和统计分析[J]. 工程力学, 2015, 32(2) : 90–96.
Xie N, Zhang J, Zhang L, et al. Surveys and statistical analyses of construction loads during concrete placement based on influence surface[J]. Engineering Mechanics, 2015, 32(2) : 90–96. (in Chinese)
[12] 赵挺生, 李树逊, 顾祥林. 混凝土房屋建筑施工活荷载的实测统计[J]. 施工技术, 2005, 34(7) : 63–65.
Zhao T S, Li S X, Gu X L. On-site measure and statistic of live construction load of concrete buildings[J]. Construction Technology, 2005, 34(7) : 63–65. (in Chinese)
[13] 赵挺生, 顾祥林, 张誉. 梁板柱体系混凝土浇筑施工时变结构简化计算[J]. 建筑结构, 2003, 33(8) : 25–27.
Zhao T S, Gu X L, Zhang Y. Simplified calculation of time-varying structure in beam slab-column system during concrete pouring[J]. Building Structure, 2003, 33(8) : 25–27. (in Chinese)
[14] 苗吉军, 顾祥林, 方晓铭. 高层建筑混凝土结构施工活荷载的统计分析[J]. 建筑结构, 2002, 32(3) : 7–9.
Miao J J, Gu X L, Fang X M. On-site measure and statistic of live construction load of high-rise concrete buildings[J]. Building Structure, 2002, 32(3) : 7–9. (in Chinese)
[15] 付红艳.关于变异系数、偏度系数和峰度系数的U统计量检验法[D].吉林四平:吉林师范大学, 2014: 18-36.
Fu H Y. The U-statistics testing methods about coefficient of variation, coefficient of skewness and coefficient of kurtosis[D]. Jilin Siping: Jinlin Normal University, 2014:18-36.(in Chinese)
[16] 赵挺生, 李小瑞, 邓明. 建筑工程安全管理[M]. 北京: 中国建筑工业出版社, 2007 .
Zhao T S, Li X R, Deng M. Construction engineering safety management[M]. Beijing: Press of China Building Industry, 2007 . (in Chinese)