全国大学生结构设计竞赛由教育部和中国土木工程学会联合主办,是教育部确定的大学生九项科技竞赛之一。从2005年浙江大学承办的第一届,到2013年湖南大学承办的第七届,赛事日趋规范,为土木相关专业的大学生提供了锻炼综合素质、思维能力、动手能力,培养团队意识和专业素养的平台。
随着大赛的开展,一些不足之外也日渐显现。参赛学生只重视模型的制作,不重视理论分析,模型的设计过程具有一定的盲目性,不能将所学的专业知识很好地运用到模型设计与计算中,最终导致参赛队伍的计算书质量较差。这一点也引起了主办单位的重视,承办单位在制定竞赛规则和评分标准时,逐年加大了计算书和现场自述答辩环节的分值,旨在引起参赛选手和指导教师的注意,重视对参赛选手专业素养的考察。
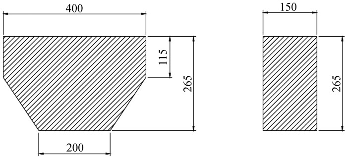
一、第七届全国大学生结构设计竞赛赛题竞赛赛题要求参赛队设计并制作一双竹结构高跷模型,并进行加载测试。
模型采用大赛组委会提供的竹材料、胶水及工具现场制作,具体结构形式不限。制作完成后的高跷结构模型外围长度为400 mm±5 mm,宽度为150 mm±5 mm,高度为265 mm±5 mm;模型结构物应在图 1所示的阴影部分之内。模型底面尺寸不得超过200 mm×150 mm的矩形平面。
|
图 1 模型结构区域图 |
根据竞赛赛题及制作模型所用材料的特点,拟选用三种结构体系方案:桁架结构、刚架结构和组合结构。每一种结构体系都有各自的特点,方案比选表如表 1所示。
| 表 1 结构方案比选表 |
根据上述分析,综合考虑,选用1号方案,即桁架体系方案,设计图纸如图 2。
|
图 2 模型设计图纸 |
此次比赛赛题的荷载并非事先确定的固定值或指定的荷载形式,而是在模型制作完成后各参赛队推选一名选手穿着本队制作的竹高跷进行加载测试。
模型的加载分为静加载和动加载两部分:静加载的荷载值为参赛选手的总重量,以模型荷重比来体现模型结构的合理性和材料利用效率;动加载通过参赛选手绕标竞速来判断模型的承载能力,因此模型所受到的冲击荷载的大小、方向甚至荷载作用点都取决于参赛选手的质量、运动方式和模型的结构形式,对参赛队员的力学分析能力、结构设计、计算能力和现场制作能力等提出了更高的挑战。综上,此次赛题的荷载分析十分复杂,需要制定多种荷载工况,以满足计算与荷载组合的需要。
总的来说,需要设定五种荷载工况,即静载、奔跑时的动载(如图 3.3.1中A点所示)、转弯时的扭转荷载(如图 3.3.1中C点所示)、跨栏落地时的冲击荷载(如图 3.3.1中B点所示)和奔跑时产生的反复加载所造成的疲劳荷载。
|
图 3 绕标竞速及荷载工况位置示意图 |
参赛选手穿着本队制作的竹高跷双脚静止站立于地磅秤重台上,测量选手的总重量,这个过程即是静载加载的过程。
参赛队员穿着竹高跷及轮滑鞋后,称得的重量为75 kg,相当于750 kN。由于静载加载过程中始终为双脚站立,因此每只模型上承受的静荷载为750 kN的一半,即375kN。
参赛队员在进行静载加载时,脚掌完全作用在踏板上,相当于参赛鞋全面积范围内都在加载,因此可以简化为轮滑鞋外围面积300 mm×100 mm内的均布荷载,因此,均布荷载大小q1可按3750 kN/m计算。
(二) 工况二:动载(奔跑时)绕标竞速要求参赛选手穿着本队制作的竹高跷进行绕标跑或走,从而对模型产生动力荷载作用。值得注意的是,动力荷载的大小与作用面积与静荷载完全不同,且差别较大,需要仔细分析。
首先,参赛队员在奔跑过程中,只有一只脚着地,即身体的全部重量均由一只模型承担。因此,此时作用在模型踏板上的作用力不是前面静载作用的大小375 kN,而是选手总重量,即750 kN。
其次,在奔跑过程中,参赛选手的脚掌不是全部着落在踏板上,而是后脚掌悬空,前脚掌着地并施加作用力。因此,奔跑时的动荷载作用在踏板上的作用面积与静载作用面积并不一致,如图 4。经过测量参赛队员前脚掌的尺寸,再加上扩散到轮滑鞋底的距离,最后计算出参赛队员奔跑时踏板上的作用面积为100 mm×100 mm。将动荷载作用简化为作用面积上的均布荷载,荷载集度q2可按7 500 kN/m计算。
|
图 4 奔跑时脚掌受力面示意图 |
在绕标竞速过程中,要求参赛选手必须绕过直径为30 cm的绕标。选手在绕标转弯过程中,脚掌会施加给踏板及模型一个扭转的作用,这对模型结构极其不利。尤其是对于桁架结构而言,节点抵抗扭转的能力比较薄弱,往往会造成结构的损伤,甚至破坏。因此,在荷载工况中考虑扭转情况是十分必要的。作用在模型上的扭转作用可以简化为力偶的形式进行计算。
(四) 工况四:冲击荷载(跨栏落地时)在距离起点10 m处,设高度为35 cm的木结构障碍板,要求参赛选手在绕标往返过程中越过障碍板。从力学角度分析,在此项比赛环节中,选手跨越障碍板后落地时,会对模型结构造成一定的冲击作用。尤其是选手在奔跑过程中,为追求速度,模型每次落地时都会承受一定的冲击作用。
冲击荷载的大小是很难计算的。本队采用桥梁工程中的算法,将静力荷载乘以冲击系数来估算冲击荷载的大小。冲击系数按照桥梁工程中的规定,取一般值,即μ=1.15~1.2。
(五) 工况五:疲劳荷载在绕标竞速过程中,施加在模型结构上的荷载也是不断变化的,在动荷载反复的加载卸载的过程中,对于模型结构而言,也会产生一定的疲劳作用。
引起疲劳破坏的交变荷载有两种类型:一种为常幅交变荷载,也叫循环应力;另一种为变幅交变荷载。转动的机械零件常发生常幅疲劳破坏,吊车桥、钢桥等结构则主要是变幅疲劳破坏。竹高跷模型在奔跑中的疲劳损伤即为变幅疲劳。
四、荷载组合与有限元计算考虑以下五种荷载组合:静载加载组合;动载加载组合;动载+扭转荷载组合;动载+冲击荷载组合;动载+扭转荷载+冲击荷载组合。
利用大型通用有限元软件Ansys对前述几种荷载工况进行组合,经过建模、调试,得到计算结果,选取部分云图如图 5。
|
图 5 有限元软件分析结果 |
从计算结果看,在荷载工况2作用下,前斜撑受力明显大于后斜撑,可以考虑将前斜撑做得强一些,后斜撑做得弱一些。但是在扭转工况下,后斜撑与前斜撑受力相当,可见前后斜撑的刚度不宜相差过大。另外,底座为应力集中处,各种工况下的受力均接近最大值,因此底座的刚度应加强处理。
五、模型加载试验结构模型试验是一门以结构模型为对象,根据相关规范标准,采用现代化测试分析技术,对结构性能进行综合评价,理论与工程实践紧密结合的技术操作。通过模型试验,工程技术人员能够更加全面准确地了解模型的各项力学性能。模型试验是理论分析的有益补充和验证。由于有限元分析的准确度有限,要想获知参赛结构的承载能力和动载成绩,必须借助于模型加载试验来完成。图 6为模型加载试验现场。
|
图 6 模型加载试验现场 |
参赛小组前后共制作了12组模型,每组模型完成后均进行了模型加载试验,并将破坏形态和位置逐一记录,查找破坏原因,提出改进措施,优化模型设计。模型加载试验的破坏形态统计及原因措施见表 2。
| 表 2 破坏形态统计表 |
从模型加载试验的结果及破坏形态统计看,模型的薄弱部位与理论计算的结果基本吻合。模型能够承受静载作用,从未发生破坏。在动载加载过程中,随着奔跑速度的提高,模型的破坏基本集中在两个部位,即斜撑和底座。在模型制作过程中应特别注意工艺设计,力求底座底部各杆件平直,以减少装配应力的产生。
六、参赛模型计算书的撰写根据上述分析可以形成参赛模型的计算书,计算书目录见表 3。
| 表 3 参赛模型结构计算书目录 |
| [1] | 徐龙军, 李洋, 许昊. 全国大学生结构设计竞赛赛题分析及建议[J]. 高等建筑教育, 2012, 21(3): 148–150. |
| [2] | 吴樟荣, 章明卓, 章旭健. 以结构设计竞赛为载体培养大学生创新能力[J]. 实验室科学, 2010, 13(2): 6–8. |
| [3] | 傅军. 大学生结构设计竞赛活动的调查研究[J]. 实践实验教学, 2009(12): 1124–126. |
| [4] | 顾凌赟, 殷怡, 徐燕, 刘宝兵. 全国大学生结构设计大赛研究与竞赛指导初探[J]. 中国电力教育, 2011(23): 131–132. |
| [5] | 于洋. 关于结构设计竞赛中模型的设计与制作方法[J]. 科技资讯, 2007(18): 201–202. DOI:10.3969/j.issn.1672-3791.2007.18.168 |
2014, Vol. 23




