2. 山东建筑大学 建筑城规学院, 山东 济南 250101
2. School of Architecture and Urban Planning, Shandong Jianzhu University, Jinan 250101, P. R. China
随着中国经济建设的深入,支撑城镇化加速推进的建筑行业正经历着前所未有的高速发展;科技的更新与时代的进步使人们视野更加开阔,信息传播更为自由便捷。在这样的背景下,建筑学专业学生的就业观相比以往有了较大转变,本科毕业生去向的多元化趋势日益凸显。近年来,读研、出国深造、进入外资事务所工作的毕业生比例大幅提升,而这些有别于传统设计单位的毕业去向决定了学生对知识体系的不同需求。同时,对于毕业生设计能力之外综合素质的要求逐渐增加,例如学生的研究能力、学科前沿信息的捕捉能力、多专业间的协作能力等。这要求建筑院校应从学生需求出发,对教学内容进行调改,以适应不断变化的社会要求。
毕业设计是建筑学本科专业教育的一次综合性总结。建筑学专业指导委员会指出,毕业设计主旨是通过这一相对集中、时间跨度较大的专门环节,培养毕业生分析解决工程实际问题所需要的创新能力与综合能力,为将来走向社会打下良好基础。可见,毕业设计是全面提升学生综合素质的重要环节,对这一环节进行教改是做到“因需施教”、培养合格毕业生的重要途径之一。
一、毕业设计现状分析 (一) 选题难以兼顾学生所需当前建筑教育的培养目标可以概括为:以建筑学为核心的“厚基础、宽口径、高素质、强能力”的人才培养模式,以增强学生的竞争能力与发展潜力[1]。从近几年毕业设计题目分布来看,多数选题仍因循传统的“类型式”模式,以建筑与规划设计为主,只是在项目的规模、复杂程度上区别于平时的课程设计,缺乏对毕业生去向多元化趋势的关注,难以进一步拓宽学科口径[2]。
(二) 缺乏学科间的交融多学科交叉与融合是当今科学发展的必然趋势,这在讲求专业配合与协调的土木建筑类专业中体现尤为明显。但由于题目设定、教学管理等原因,当前建筑院校毕业设计大多限定于特定专业内选题,指导教师也多囿于本专业进行指导,少有“跨界”的情况出现。这使得毕业设计这一重要教学环节面向偏窄,与相关专业配合不足,学生知识结构不够全面,毕业以后社会适应性有所欠缺。
(三) 设计与调研、实习环节脱节许多建筑院校在毕业设计开始前设置有毕业实习、调研等实践环节。由于这些环节与毕业设计间缺乏联系,容易出现学生缺席实习或者毕业实习沦为毕业旅游的尴尬境况。这不但达不到教学设定的目标要求,还浪费了时间,无法对毕业设计起到应有的支撑作用。
(四) 学生投入精力不足毕业设计所处的时间段易与部分学生求职、研究生复试、出国考试等事件相冲突,甚至个别同学已经提前去用人单位工作,临近毕业答辩才真正回归学校投入设计。这导致用于毕业设计的有效时间减少,投入精力普遍不足。因此毕业设计的成效难以达到预期目标,质量参差不齐。
(五) 评价标准不够全面均衡毕业设计成绩评定通常沿袭课程设计的评定标准,多依赖于设计的最后成果及答辩效果,缺乏对平时成绩的把控,难以均衡客观地反映实际情况。部分学生怀有只要最后能够交上一套完整图纸就能通过答辩的心理,在一定程度上助长了以实习、复试等作为理由缺席毕业设计的风气。
二、多学科联合的研究性毕业设计思路 (一) 多专业参与和协作针对当前毕业设计局限于本专业的现状,选取适当课题使建筑、规划、景观等多个学科的学生均能参与其中,以形成共同的成果。毕业设计小组由多个专业教师联合指导,发挥不同专业的优势,促进学科间的交流与协作,为学生将来多专业协作打好基础。
(二) 研究与设计互为依托有别于传统毕业设计“类型式”、设计为主的教学模式,笔者希望将毕业设计与教师的科研方向相关联,吸引思维活跃、具有研究潜质或未来继续攻读研究生的学生加入团队,满足这一部分学生对于研究性设计的需求,拓宽毕业设计课题的选择范围。
研究性毕业设计题目将同时关注设计与研究,且二者互为依托、互相促进。教学中每位同学将承担一项与本课程相关的调研与研究专题,并将研究成果运用到设计中。作为毕业设计的成果之一,个人的调研与研究专题最后应整理为论文形式,在强化设计能力的同时,培养学生一定的研究能力。
(三) 构建多层次的交流平台对传统毕业设计授课方式进行调整,构建从本科生、研究生到课题组教师、外请专家的多层次交流平台。本科生是毕业设计的创作主体,对题目进行深入的分析、设计与研究,并提出问题、解决问题;研究方向相近的研究生介绍相关知识,参与部分环节的研究与指导;课题组教师负责研究方向的把控与主题授课,对设计中遇到的疑难问题给予解答,提供参考意见和建议;外请专家则就具体设计中的专业问题与课题组进行商讨,并予以专业的建议与帮助。
(四) 整合调研与实习环节鉴于研究性毕业设计工作量较大,动员、分组、选题、实习安排等前期准备工作应提前一学期展开。其中,毕业实习与调研作为毕业设计的重要支撑,可以安排在寒假后半段开始。教师应在毕业实习开始前分配个人的研究专题,制定与毕业设计密切相关的实习计划,充分利用毕业实习的时间组织学生有目的地进行参观、调研及案例分析,形成相关数据。通过实习为毕业设计积累素材、熟悉背景知识,让学生在设计开始后能够较快进入角色。
三、教学实践与成果 (一) 选题毕业设计题目的规模与难易直接影响到课题的时间安排和工作量。此次选择的题目需要有一定的难度和深度,能够结合教师科研方向、紧跟学科最新动态,具有研究性和学科交融的特点。
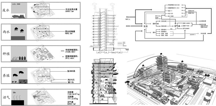
都市农业研究是当前人居环境学科研究的热点和前沿领域,农业作为生产性要素融入社区空间可为城市带来多重效益[3]。因此,课题组拟定了“生产性要素融入的绿色社区研究与设计”这一题目,拟利用山东建筑大学校园内火车餐厅与运动场之间的地块,建设学生宿舍、青年教师公寓、食堂、农业生产和循环空间,以及相关附属建筑。目标是通过研究性设计的方法构建一个人与自然和谐共生,融生产、生活、生态为一体的创新绿色校园“有农社区”。毕业设计采用各专业学生共同选报课题的方式,由来自建筑、规划、景观的3名教师共同指导。
(二) 教学组织 1. 多学科联合的设计分组经过学生自主选题,共有10名建筑学和3名风景园林专业的同学参与到课题组当中。通过深入了解每位学生的专业能力与研究兴趣点,并结合专业间相互配合的需求,将学生分为4个小组,每人负责与自己专业相近的设计和研究任务,方便开展下一步的工作。
2. 设计、研究双线并行的过程控制为强调设计的研究特质,课题组将毕业设计梳理为研究与设计两条主线,分别制定了分阶段控制的进度表。
设计主线依次划分为方案构思、方案发展、方案深化、细部设计、数据计算、方案表达阶段;研究主线则分为数据调研、案例分析、专题研究、技术应用、数据比较、论文撰写阶段。制定进度表时着重考虑了两条主线在不同阶段的相互配合,使之虽并行却不孤立,研究与设计互为依托、互相支撑。比如在“专题研究”阶段,时间段对应的是设计部分的“方案发展”与“方案深化”阶段,研究的开展对方案展开起到有效的启发作用。而随着研究的深入,设计也随之深化,“方案深化”阶段的末端对应专题研究的成果汇报阶段,为技术应用和细部设计的进一步深化打下良好基础(图 1)。
|
图 1 双线并行的过程控制体系 |
此次选题融合多个学科领域,涉及知识面较广,采取传统教师授课、学生被动接受的教学方式显然难以满足课程要求。因此,毕业设计采用了全方位、多渠道的授课模式,授课主体不再局限于课题组教师,其他相关领域专家、研究方向相近的研究生、负责专题研究的本科生,都可以将个人掌握的知识与集体分享,进而引发共同讨论,形成开放的交流平台。授课也并不拘泥于预先设定好的题目,在设计过程中发现问题或需要补充相关知识时可以随时组织专题讲座和讲课,因而针对性更强。
例如,在设计生态社区水循环系统时,由课题组教师开展“城市生态基础设施”讲座,负责相关研究专题的两位同学进行了“中水循环利用”和“景观生态水处理系统”汇报。但由于专业跨度较大,学生仍存在较多疑问,课题组根据需要邀请市政学院相关专家进行专题授课和答疑,使设计得以顺利推进。
4. 递进承接、理论与实践结合的研究模式设计的研究性和研究能力的培养是此次毕业设计不可或缺的重要内容。课题的研究主线按照上述6个阶段展开,每一阶段之间并非孤立存在,而是根据内容具有递进承接关系,使得课题研究由浅入深,具有一定的延续性,有利于学生对相关方向保持长期而深入的关注。根据毕业设计涉及领域和研究需要,课题组有针对性地选择了雨水收集、生态卫生系统、生产性景观等13个方向,根据不同专业与个人兴趣点分给每位同学作为其负责研究的专题。随后,要求学生将研究成果付诸实施,运用到本组的设计方案中,并通过论文的方式加以总结,使理论与实际相结合。
如第四组的同学充分利用毕业实习的机会,根据预定目标奔赴上海参观了“天空菜园系列”及“申都大厦”等案例,对都市农业与建筑的结合有了直观的印象;调研阶段调查了校园食堂的食物、水分、能量等物质循环状况,为后续设计取得第一手数据;随后,对荷兰阿尔梅勒生态社区进行了案例研究,对生产性要素融入的社区设计有了进一步的认识;在专题研究阶段,小组成员分别对建筑垂直绿化的技术模式、景观生态水处理系统等专题进行深入探究,并应用到小组的方案设计中,显现了研究的递进性及实践性特点。
5. 团队工作与个人工作相结合的设计模式由于选题、成绩评定等原因,毕业设计通常以个人为单位进行。但建筑设计在实际工作中是一项团队工作, 只有发挥集体的智慧,才有可能创作出优秀的作品[4],因而团队合作、与其它专业沟通的能力是建筑学毕业生必须具备的优秀素质之一。为培养学生协作能力,改变以往设计作业闷头单干、缺乏交流的习惯,此次设计采用团队与个人工作相结合的模式,要求学生经常进行组内协作与讨论,促进交流互动和深入思考,营造更活泼热烈的课堂气氛。由于互相影响及工作模式的原因,团队工作的方式还在一定程度弥补了个别学生短期缺席对设计进度的影响。在团队工作之外,每位同学也有独立的个人工作,两者相辅相成、密不可分,提高了课堂教学的效率,激发了学生的主观能动性[5]。
6. 全面均衡的控制与评价标准本次设计采用小组与个人工作相结合的方式,成绩评定也顺理成章地分为小组工作与个人工作两部分。小组工作部分包括答辩成果、小组调研、案例分析三个方面,占总成绩75%;个人工作部分包括个人研究专题和个人考勤两个方面,共计25%,每项成绩均在该阶段结束时进行评定。其中最后答辩成果占个人总成绩的60%,邀请相近研究方向的专家、教师共同答辩,现场评定分数。通过对评价标准进行调整,着力体现了全面与均衡的原则,部分修正了毕业设计成绩只看最后成果的偏颇。
(三) 教学成果此次毕业设计历时三个半月,设计内容较为复杂、涵盖面广,且兼有研究要求,学生普遍反映时间紧张、任务量大,对教师来讲也是很大的挑战。经过师生共同努力,各设计小组配合良好,按照既定时间和要求顺利完成设计,对生产性要素融入的绿色社区进行了设计与实践,形成了4份风格各异、内容充实的毕业设计,得到学院老师的普遍好评。其中,题为“有机植入”的方案设计深入完整,研究具有创新性,表达充分,获评山东建筑大学优秀学士学位论文,并最终获得省级优秀学士学位论文推荐资格,充分体现了此次研究性毕业设计的教学成果(图 2、图 3)。
|
图 2 部分设计成果展示 |
|
图 3 部分研究成果展示 |
毕业设计是对建筑学专业五年本科教学的综合性检阅,也是提升学生综合能力的重要教学环节。此次教学以学院新实行的开放设计工作室制度为契机,通过对毕业设计教学环节的思考与优化,关注学生的发展需求,培养学生的综合素质,力求探索一种结合教师科研方向,多学科协作、研究和教学互为促进的毕业设计教学模式,以满足当前毕业生去向多元化和提升学生综合素质的需求。
通过教学实践,课题组认为:
(1) 在合理选题、有序组织的前提下,多专业联合的毕业设计是可行的,可以有效增进专业间的交流,培养学生协作能力,开阔学生视野。
(2) 研究性毕业设计可以拓宽毕业设计面向,更好地满足毕业生去向多元化的需求,可以在达到常规设计训练要求的前提下,有效地提升学生综合素质。
(3) 在毕业设计中加入研究性内容,需要密切关注学科最新动态,结合教师科研方向,合理选择适当课题。
由于是初次尝试,此次实践也不可避免地存在遗憾之处,比如由于时间关系,学生在后期将绝大部分精力投入在设计上,导致论文成果深度不够等,希望可以在今后的教学中加以改善。
| [1] | 建筑学专业指导委员会. 全国高等学校土建类专业本科教育培养目标和培养方案及其主干课程教学基本要求——建筑学专业[M]. 北京: 中国建工出版社, 2003. |
| [2] | 王薇, 吴运法, 胡春. 建筑学专业毕业设计教学模式的创新与实践[J]. 廊坊师范学院学报:自然科学版, 2013, 13(2): 121–123. |
| [3] | 刘长安, 赵继龙. 基于都市农业的低碳城市发展策略研究[J]. 山东社会科学, 2013(7): 140–144. |
| [4] | 曹亮功. 从建筑职业看建筑教育[J]. 建筑学报, 2005(2): 76–77. |
| [5] | 刘长安, 仝晖, 周琮. 以生态建筑学为导向的建筑教育模式研究——山东建筑大学生态建筑学教学实践[J]. 山东建筑大学学报, 2012, 27(5): 539–542. |
2014, Vol. 23

