毕业设计是土木工程专业整个本科教学过程中最后一个综合性的教学实践环节,是学生综合运用土木工程专业基本理论和专业技能分析和解决工程实际问题、实施独力工作和创新研究的演练过程,也是对学生学习能力和专业素质的全面检查[1]。毕业设计的质量就是土木工程专业教育质量的体现,因此,加强对毕业设计过程的质量控制有着非常重要的意义。毕业设计的具体过程是培养学生建立正确的设计理念,掌握一般工程设计的程序和方法。杨光等(2010)结合地方高校土木工程专业毕业设计的质量现状,对黑龙江八一农垦大学土木工程专业近3年的毕业设计质量进行了分析,提出网络资源、毕业设计文件电子化、指导教师水平和责任,以及学生就业问题等对毕业设计质量的影响[2]。童友枝(2009)指出目前毕业设计中存在选题类型有限,学生主动性不强以及学生对毕业设计过程不清楚等问题[3]。戴素娟等(2009)从重视毕业设计动员、加强师资队伍建设、合理选择毕业设计题目、适当提前毕业设计时间、加强过程指导、完善评价体系等方面,提出了提高土木工程专业本科生毕业设计质量的一些建议[4]。吴晓枫等(2008)提出将PDCA质量控制循环原理运用到土木工程专业毕业设计质量控制过程[5]。谢咸颂(2011)根据土木工程毕业设计的教学实践,从选题、教师安排、成绩评定等几方面总结了毕业设计教学的一些做法和思考[6]。
毕业设计质量的高低直接影响学生毕业后在工作岗位上能力的发挥,也是一所高校教育质量的直接反映。因此,为适应厚基础、宽口径的专业培养要求,落实质量工程改革,如何有效地指导学生毕业设计,培养学生实践能力,提高毕业设计质量是一个重要的课题。
一、毕业设计的基本情况统计 (一) 毕业选题情况毕业设计的题目是否恰当,是毕业设计工作成功的基本保证。毕业设计选题应遵循一人一题原则,学生按教师命题或自主选择感兴趣的具有实际背景的工程项目作为毕业设计题目。通过查阅学院土木工程专业房建方向近5年的毕业设计资料,对学生的选题情况、指导教师的安排情况进行了统计(表 1—表 3)。
| 表1 土木工程专业房建方向毕业选题情况统计表 |
| 表2 土木工程专业房建方向毕业选题结构形式情况统计表 |
| 表3 毕业设计指导教师人数统计表 |
以建筑工程方向的毕业设计资料为主要研究对象。毕业设计的全过程包括建筑方案设计(初步设计)、建筑设计和结构设计三个主要阶段。方案设计(初步设计)包括基本单元空间设计、空间组合设计及立面、体型设计。建筑设计根据所批准的方案设计进行编制,内容以说明和图纸为主。结构设计包括结构布置、初估截面尺寸、荷载计算、内力分析、配筋计算和结构施工图设计。通过查阅相关的资料,整理了学生在毕业设计各阶段存在的问题(表 4)。
| 表4 各阶段毕业设计中存在的问题 |
表 1—表 4统计了近5年学院毕业设计选题范围、结构形式,指导教师安排情况,以及毕业设计各阶段中学生在设计过程出现的问题,通过对这些问题的分析,可以看出土木工程专业毕业设计教学中存在以下的实际情况。
(1) 题目类型主要以设计类题目为主,尽管选题范围的广度有所增加,但主要结构形式趋于简单。由表 1和表 2可以看出,相比2011届和2012届学生的毕业设计,2013届本科毕业生所选结构形式最为多元,基本包含了任务书中所列出的所有形式,包括砌体结构、框架结构、剪力墙结构、框剪结构和钢结构等。而2014届与2015届毕业设计所选的结构形式主要为框架结构。分析其原因,一方面是指导教师在学生毕业选题中缺乏引导,学生在选题时指导教师主要对学生选题的范围进行控制,而不太关注学生所选题目的结构形式。另一方面是学生主动学习能力不强,存在避难就易的倾向,因为以难易程度而言,框架结构和砌体结构设计相对简单。
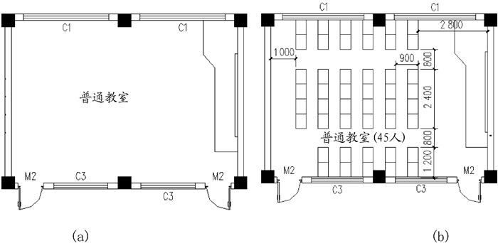
(2) 学生查阅资料、利用规范的能力较弱。以某中学教学楼施工图设计为例,在学生初步设计时,没有查阅相关规范。上交的方案设计中,只根据柱网尺寸确定了教室的总尺寸和门窗洞口的位置,没有进行教室的平面布置,图 1(a)。按GB 50099—2011《中小学校设计规范》要求,普通教室设计(基本单元设计)除了满足主要教学用房的使用指标面积外,还应根据教室内单人课桌的平面尺寸、普通教室课桌椅的排距、最前排课桌的前沿与前方黑板的水平距离、最后排课桌的后沿与前方黑板的水平距离、最后排课桌沿至后墙面或固定家具的净距、纵向走道宽度、前排边座座椅与黑板远端的水平视角及沿墙布置的课桌端部与墙面或壁柱、管道等墙面突出物的净距等方面进行计算。图 1(b)是参考《规范》后所设计的普通教室的平面布置图。
|
图1 普通教室平面布置 Figure 1 |
(3) 指导教师的平均指导人数过多,教师精力投入不足。由表 3可以看出,近5届土木工程专业毕业生人数持续增加,由2011届99人增加到2015届的250人,指导教师人数尽管也有增加,但增幅不大,从2011届的9人增加到2015届的16人。由于毕业设计学生人数持续增加,指导教师指导学生的平均人数增加,同时其他年级学生的人数也在增加,教师理论授课压力增大,毕业设计的精力投入相对不足,导致指导教师对毕业设计过程管理不到位。
(4) 毕业设计硬件资源不够,指导教师对学生的指导难度增加。由于学生人数持续增加,现有的教学资源无法满足学生的使用要求。例如,毕业设计过程中无对应的设计教室,在手工图绘制过程中,无必要的制图教室。学生利用电脑绘图,教室里电源有限,大部分学生在宿舍进行设计,教师对毕业设计的过程管理达不到预期的效果。
(5) 由于部分毕业生因就业及参加考试等客观原因,学生用在毕业设计的有效时间不够。在毕业设计周期内,由于部分学生找工作、参加面试、参加公务员考试、进村进社或三支一扶安置考试等,需花去大量的时间,无法将更多的精力投入到毕业设计中。
三、毕业设计质量控制的改进措施毕业设计过程中存在的问题既有主观方面的,如学生不善于查阅规范,指导教师指导水平不高等,也存在客观原因,如图书馆资料不全和过于陈旧,毕业设计有效时间不够等。所以,要解决毕业设计中存在的问题,提高毕业设计质量,需同时从主观和客观两个方面入手。
(一) 主观方面(1) 提高学生自主学习的能力,加强学生对毕业设计的重视程度。毕业设计是学生对大学四年所学理论知识的一次综合应用,一般安排在最后一个学期进行。而毕业生因忙于找工作或参加各种考试,很多学生无法安心完成毕业设计。此外,学生到大四时,学习态度由于外在因素影响变得散漫,对毕业设计的重视程度不够。这些原因使毕业设计质量很难达到预期效果,而为改变这种现状,必须要从端正学生对毕业设计的态度开始。
(2) 提高指导教师的主观能动性。指导教师由于指导学生数量较多,同时又有理论课程的压力,部分教师在主观上会产生一些消极的态度。为了提高指导教师的主观能动性,一方面,学校应加大投入,适当增加教师数量。另一方面,学院要制定毕业设计过程管理制度,对毕业设计的指导教师进行约束。
(二) 客观方面(1) 针对毕业设计选题形式单一,结构形式简单的问题,在毕业设计选题及开题过程中,指导教师应根据学生的情况适当引导,在强调符合土木工程专业培养目标且题目难度和工作量适当的原则下,除了设计类题目外,应根据学生的就业方向,加入施工组织、工程预算、招投标等类的题目,丰富选题,达到百花齐放的目的。
(2) 在毕业设计过程中,指导教师应加强毕业设计过程管理。过程管理是毕业设计质量控制的关键步骤和基础工作。毕业设计的目的是培养学生综合应用所学基础理论、专业知识和基本技能解决一般工程技术问题的能力,培养学生勇于探索的创新精神、严肃认真的科学态度和严谨求实的工作作风。毕业设计作为土木工程专业最后的实践教学环节,具有综合性、实践性、独立性、规范性和系统性的特点。毕业设计的各个组成部分都是相互关联的,阶段性成果质量的高低直接影响毕业设计的最终成果质量。为了提高毕业设计质量,应建立过程测量指标和过程控制方法,对学生的毕业设计进行监控,发现问题及时反馈,过程管理应体现在毕业设计的每一个环节。
(3) 由于指导教师研究方向的原因,可能对大部分教师来说,并不能熟练掌握毕业设计所涉及的全部内容,比如有些教师专精于建筑方面,而有些教师专精于结构方面。为了让教师在指导过程中体现自己的真实水平,建议参考一些院校的做法,建筑部分、结构部分由不同的指导教师指导,使教师的指导和自己的专业方向密切结合,避免粗枝大叶。此外,由于部分指导教师比较年轻,没参加过具体的实践工作,理论与实践脱节。在指导学生毕业设计前,学院可利用校企合作基地,对指导教师进行培训。
(4) 学校图书馆和学院资料室应及时更新和增加相关的资料。在毕业设计中,学生选择的题目各不相同,包括办公楼、住宅楼、教学楼、商业建筑等,而且学生数量较多。在土木工程专业毕业设计中,不管是在建筑设计阶段还是在结构设计阶段都涉及大量的规范,而在整个本科教学中,教材更新速度滞后于规范更新速度。因此,加强学生阅读和使用规范的能力是毕业设计质量控制的重要举措,更新和增加相关资料是毕业设计环节不可或缺的一个环节。
(5) 改善教室条件,增加机房建设,购买相应的绘图、结构计算软件,尤其是设计所需的建筑结构设计软件和路桥设计软件。
(6) 针对毕业生因找工作或参加考试,无法保证毕业设计时间的问题,除了加强过程管理外,还应在保证总的设计时间不变的情况下,考虑准备1~2周的机动时间,而这段时间就需要从教学计划入手,提前毕业设计的时间。
四、结语毕业设计质量的高低直接影响学生毕业后在工作岗位上能力的发挥,也是一所高校教育质量的直接反映,因此,为适应厚基础、宽口径的专业培养要求,落实质量工程改革,有效指导学生毕业设计,培养学生实践能力,提高毕业设计质量是一个重要的课题。文章对土木工程专业建筑工程方向毕业设计进行了全面分析,提出加强过程管理是毕业设计质量控制的关键步骤,而加强学生阅读和使用规范的能力是提高毕业设计质量的重要举措。
| [1] | 唐红元,刘保县.土木工程专业毕业设计教学存在的问题及对策[J].高等教育研究,2011,28(4):114-117. |
| [2] | 杨光,张兆强,李文涛.地方高校土木工程专业毕业设计质量改善措施探讨[J].高等建筑教育,2010,19(1):114-117. |
| [3] | 童友枝. 基于质量工程的土木工程专业毕业设计模式的改革研究[J]. 中国西部科技,2009,24(8):1-3. |
| [4] | 戴素娟,卢玉华,高秋梅,等. 提高土木工程专业毕业设计质量的几点建议[J]. 中国电力教育,2009(8):134-135. |
| [5] | 吴晓枫,刘爱华,鲁业鸿.PDCA在土木工程毕业设计中的应用[J]. 高等建筑教育,2008,17(2):135- 138. |
| [6] | 谢咸颂. 基于创新能力培养的土木工程专业毕业设计教学改革探讨[J]. 价值工程,2011,30(5):13 -14. |
2016, Vol. 25

