在大数据时代背景下,人们日益增长的物质文化需求在建筑领域上有所体现,特别是对于互动性、参与感的需求。然而,国内建筑市场产品的定型化从根源上泯灭了未来建筑使用者精神上的需求。自从“互联网+”这个热词正式出现在2015年政府工作报告之后,“互联网+”正式被纳入顶层设计。如今,随着P2P①理念的兴起,互联网的崛起在颠覆传统行业的同时,也为大众提供了更多的便利和机会。
① P2P电子商务又称对等电子商务,P2P网络彻底消除了对中央服务器的需求,它可以让用户彼此之间直 接共享、搜索和交换数据,被认为是给电子商务的发展带来革命性影响的技术。
二、 不同时期房地产开发模式的比较 (一) 传统房地产开发模式的问题传统项目开发模式要经历如下环节:获取土地→规划设计→报规报建→开工建设→项目销售(图 1)。从传统开发流程中不难发现一个非常普遍的现象,就是建筑师无法和建筑使用者进行一对一的交流,这也造成了中国的建筑师所服务的业主并不是建筑真正的使用者,而是持有土地开发权的政府和开发商。政府优先重视的往往是建筑形象而非使用本身,而开发商对建筑使用的理解往往来自市场调查,并不代表将来建筑使用者的心声。这些原因导致我国当代的建筑缺少对人自身需求的切实关怀。
|
图 1 房地产传统开发流程图 |
“互联网+”时代具有互动性的特点,大众因此获得了前所未有的参与感。首先,用户在网络上获取信息时可以自由控制“何时”、“何地”、“用何种方式”获取“何种”信息。其次,在云端以及线上平台大众可把自己的意见和建议及时反馈,还可以和其他“受众”进行交流和沟通。在此提到的建筑互动性并非诸如数码建筑、虚拟建筑、互动建筑之类的专业概念,而是强调建筑设计整个过程中大众参与的程度[1]。建筑设计已不再只是政府、开发商、建筑师三者的事情,大众渐渐开始参与其中,其在整个建筑设计过程所占分量也越来越重(“互联网+”环境下房地产的开发模式见图 2)。
|
图 2 “互联网+”环境下房地产开发流程图 |
“互联网+”建筑设计模式比之传统设计建造模式来说,相同点在于都要经历项目拿地、设计、报规报建、开工建设及销售等环节,这些环节的参与者主要是政府、开发商和设计师三者。而新模式下体现出来的不同点是让项目的使用者参与项目的开发环节,在项目拿地之前就获取购买者的需求数据,后续的设计直接针对这些需求进行。新模式的销售环节也不再像传统模式那样一次缴清,而是分批进行且贯穿整个项目周期,即在项目初始阶段表达购买意向后交付一定的定金,后面随着设计的深入再分节点支付该阶段的金额。另外,由于使用者的参与,开发商对于项目的话语权有所降低,其职能不再是针对产品本身而更集中在协调政府与产品使用者双方的关系。互联网平台提供了人人都可以成为开发商的机会,即一个人或几个人合伙把整栋大楼盖起来,在这个过程中不用承担地价,只需支付可控的投资额(用于设计、工程管理、平台服务等),最后和土地所有者分摊利润。
传统房地产企业一直思考在新常态下如何借助互联网平台继续保持创新发展[2]。如今的房地产“众筹”就是想要打造这么一个平台,从项目开发时即开始众筹,投资者可参与项目设计、社区配套等过程,一定程度上实现产品的“定制化”[3],最终实现“从消费者来,到消费者去”。
三、 基于互联网线上平台的建筑设计实践——以北京建筑大学城市住宅专题实验教学为例随着“互联网+”思维的广泛传播,各大高校在建筑学教学上也有着不一样的尝试。北京建筑大学城市住宅专题研究小组对“互联网+”环境下建筑师该如何借助互联网平台这一课题进行了研究。研究的内容面向社会大众,以全程线上的方式为目标客户进行空间的私人定制。
(一) 课题研究的背景研究侧重点是建筑师在互联网平台下新的工作模式。参与人员是在校学生,整个课题依托校内课程进行实践。
在这种情况下,研究没有选择现有居住户型平面,而是选择了一框架结构作为实践对象,弱化了居住建筑设计的一些具体规范,从而保证了学生实践的自由度,重点放在线上平台的设计流程体验上。课程这样安排的目的也是不想把课程变成一个单纯的住宅改造,而是空间的定制。在现有的建筑框架下进行空间的重塑,体现了“互联网+”背景下设计的灵活性,即建造前灵活安排空间布局,使空间得到最优利用。
(二) 课题研究的特点(1) 在现有框架结构的基础上,为客户的需求进行个性化定制。
(2) 数据处理依托互联网平台,以客户的需求为起点,通过对客户需求的收集整理和反复沟通,确定最终设计方案。
(3) 此次课题研究是以购房者和设计师共同合作为前提,从咨询、设计、施工等多个领域为客户层层把控,提供专项服务。
(三) 课题研究的流程征集参与者→收集客户需求→拟写设计任务书→在线抢购楼层位置→深化设计方案→客户反馈与评价。
征集参与者。通过手机APP“互动吧”线上发起此次活动,在7天的活动报名时间段内,不同年龄段、不同行业从业者自愿报名,共有11人报名参加(表 1)。其中,年轻人是参与的主体(图 3)。
| 表 1 参与活动志愿者信息汇总表 |
|
图 3 参与者年龄构成图 |
收集客户需求。通过在线交流的方式收集了参与客户的基本需求,并挑选了其中一名近期有买房需求的客户,为其提供进一步的定制设计服务,形成设计任务书(表 2)。
| 表 2 拟定设计任务书 |
在线抢购产品位置。同样采用“互动吧”的线上方式,具体形式是发起一个活动,课题组成员以报名参加活动的先后顺序为各自客户选择楼层位置,顺序出来后课题组成员依次按照该顺序在云端公布各自需要的房间位置。以上工作完成后,课题组成员针对各自的客户进行深化设计。
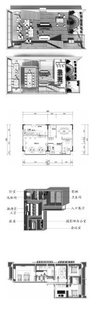
深化设计方案。根据目标客户所提要求,挑选合适的楼层位置。 例如:由于目标客户需要100~200 m2的顶层空间,课题组选择了该框架楼顶层的四个单元体,将其合为一个大空间单元(图 4)。此空间入口位于西侧,开间8 700 mm,进深19 400 mm。由于进深较长,出于采光的考虑,设计结合顶层的天窗及东面墙进行开窗处理。最后空间的划分与设计以客户功能使用要求为出发点,把最佳的采光面留给主要使用房间,节约交通面积增加每层使用面积,尽量避免暗房间,并力争建立一个以会客交流为中心的开敞空间。
|
图 4 为目标客户选择楼层位置图 |
具体设计策略。保留原有外墙及剪力墙,在不破坏主体结构的基础上将所有内部隔墙拆除,还原一个大型开敞空间,功能上以动静、私密进行垂直分区,偏私密型的空间放在跃层空间上(图 5—图 7)。
|
图 5 原始平面 |
|
图 6 首层平面功能分区 |
|
图 7 跃层平面功能分区 |
首层平面(图 8)。会客区域与休闲区域结合,起居室与开放式厨房布置在南向,以家具代替实墙进行界限的分区。泳池布置在最北侧,考虑采光及客户的观景特殊需求,在北侧墙设置大面积采光窗。首层开放式厨房旁设置了一小型封闭的红酒屋,不开窗也满足了储存红酒的空间要求。入口处设置一玄关,可用于存放部分户外用品、鞋具、雨具,在狭长的户内中部空间布置此无采光要求的辅助空间也有效避免了空间的闲置(首层剖透视见图 10)。
|
图 8 首层平面图 |
跃层平面(图 9)。休憩区域与露台区域结合,卧室布置在南向,在合适的屋顶部位开天窗,满足客户夜观天象,欣赏每天日出日落的需求。跃层西侧由于大面积山墙显得很单调,在布置一些艺术品的基础上,将中间部分做了一个书架墙,结合家具的摆放营造出一个迷你的办公学习空间。跃层西北角将屋顶部分打通,创造出一处露台空间,由于层高的限制,将此区域对应的坡屋顶改为具有一定高度的平屋顶。最终的设计保证了每个房间,卫生间浴室都有外窗,在“窄面宽、长进深”下实现所有功能房间全明,每层拥有变化的室内外空间和景致(跃层剖透视见图 11)。
|
图 9 跃层平面图 |
|
图 10 首层剖透视图 |
|
图 11 跃层剖透视图 |
客户反馈与评价。客户对于此次空间定制的效果还是很满意的,互联网平台提供的线上沟通反馈让设计变得更有连续性,客户可随时随地观看设计进度,将意见及时反馈给设计师,大大提高了沟通效率,更准确地达到客户预期效果(图 12)。课题组其他成员成果汇总见表 3。
|
图 12 效果图 |
| 表 3 课题组组员空间定制案例汇总表 |
在整个服务过程中,客户对这种在线式设计服务满意度是很高的。客户认为,在线沟通便捷,省去约见的麻烦与路上时间的浪费;沟通随时随地,打破了时间和地点的限制[4];定制化服务设计使专属感、互动性极大提升。产品定制化,从源头上避免了产品化房源的弊端,设计师从客户的角度出发,关注每个细节和日后生活的真实需求。对现有房型直接改造也避免了资源浪费和环境污染。但是,定制化产品成本高,使一些装修费用提升,实施存在一定的困难。
在本次课题实践中,由于参与学生数量有限及个人设计倾向的不同,最终各方案未能综合为一栋完整的建筑,框架结构平面中没有被选中的空间单元没有考虑其如何使用。这侧面反映出此次教学仍存在漏洞。在今后的教学实践中,可考虑制定一个前提标准,并扩大课程实践规模,使学生选定的空间单元最终足以组成一栋完整的建筑。
四、 “互联网+”建筑设计存在的问题首先,采用线上平台一对一服务过程的信息不准确性。众所周知,网络信息化虽然方便,但也有其弊端,文字的表述通过第三方平台展现会带来理解上的歧义。在设计师与客户交流的过程中,难免遇到由于客户要求提的不够具体而导致设计结果的偏离。
其次,设计过程中人力的耗费问题。做出一个成套的设计需要时间也需要人力,如果前期设计要求不准确而造成最后设计方向偏离也是对设计人员精力上的耗费。
最后,在定制空间过程中设计师应该起到一定的控制作用。一般客户对于空间尺度缺乏一个概念性的认识[5],可能认为在限定的空间内可以达到自己想要的效果,但实际不然。所以作为设计师应该在交流的过程中起到一定的控制作用。另外,在结构已经施工完成的楼内进行设计,限制条件很多,与客户需求相违背的地方不可避免。所谓空间的自由定制也只能是相对自由,设计师在满足客户所提要求的同时也应适当坚守自己的想法。
五、 结语纵观当前“互联网+”的狂潮,我们在最初的兴奋之后,也应分析下这一开发形式可能面临的问题和挑战,“互联网+”建筑设计到底应该如何进行?建筑师又该如何运用互联网思维解决问题?这种时代趋势对建筑教育又有怎样的影响?通过这次课题实践,可以从以下几个方向进行思考。
(一) 开发模式与传统地产开发、销售模式流程不同,“互联网+”建筑设计中的互联网理念应延伸到房屋设计建造的各个环节,其核心是先有用户再有设计,先有基础订单再开发,更好地满足用户的需求。另外,以互联网线上平台为依托,让使用者提前参与产品的设计互动和选择,达到一定数量后,则可进行群体性的订单化生产。由于互联网自身的开放性,在目标地块和目标产品相对明确的情况下,可以实现细分客户群,完成更加多样化的群体定制产品。
(二) 设计方法互联网背景下,建筑师直接面对使用者的需求,面临的问题更为具体多样,需要在新常态下重新定位。一方面,建筑师需要更为丰富的专业知识,从宏观概念到实际使用全流程的把控,不再是抽象的图纸到建成,而是从具体问题展开设计。由原先一种自上而下的系统工作流程,转向为一种散点式发散思维模式。另一方面,百分百的定制势必会造成成本的增长,人力物力财力大量投入,导致生产效率降低。对此,建筑师可以在实践过程中,逐渐摸索总结出不同的定制模式,为定制程度分级,从而对资源进行合理配置,在私人定制与产品生产这两种概念中取得平衡。
(三) 定制化服务与传统的房地产开发方式相比,“互联网+”模式先让使用者提前了解即将购买产品的相关信息,先锁定价格,达成订单,然后才开始动工建设,最后履行的不过是一个合约服务。这与传统模式最本质的区别在于主动权掌握在使用者手中。同时,线上平台还能解决一个问题,即传统开发商过去忽视的在建造过程中的客户体验与互动。
(四) 教育导向通过此次课题研究,教师不再只是单方面灌输原理知识,而是引导学生在社会实践中学习建筑设计理论知识,从实际问题出发,关注社会问题,而不是一味的美学追求,这也是与传统教学不同的地方。另外,在实践过程中,学生面对的是真正的甲方,要求学生不只具备美学、建造方法等专业素养,还应培养沟通技巧,解决多方面问题的能力。这种综合能力正是学生的短板,也是在工作后需要花大量时间去学习弥补的。
若想将建筑设计通过互联网做大做广,必须依托于现有的房地产资源来寻求合作,否则所承接项目只能停留在私人客户的装修改造或者独立住宅设计。所以,建筑师可以同房企进行资源整合,房企提供地块和项目运营资金,建筑师针对目标客户群,寻找潜在客户,为其提供方案。“互联网+”建筑设计必须做到资源整合型的服务模式,才能得到发展和推广。虽然现在还没有成熟的案例可以参考,但与互联网结合是大势所趋,因此这种不断尝试的过程是必不可少的。
致谢 本文源于郭晋生教授组织的一次“互联网+建筑设计”实验性教学研究,并使用了该研究过程中的一些资料,特此致谢。| [1] | 叶飞, 井敏飞. 互联网·虚拟现实技术·建筑设计——在线虚拟现实设计平台的研究与实践[J]. 西部人居环境学刊 , 2014, 29 (6) : 22–26. |
| [2] | 梁浩. 互联网+背景下的中国绿色建筑产业发展模式初探[J]. 建设科技 , 2015 (14) : 98–107. |
| [3] | 陈梦妤. "互联网+"顶层设计出炉建筑行业信息化发展落重子[J]. 中华建筑报 , 2015 (5) . |
| [4] | 威廉·J·米切尔. 比特之城:空间·场所·信息高速公路[M]. 范海燕,胡泳,译.北京: 三联书店, 1991 : 1 . |
| [5] | 迈克尔·海姆. 从界面到网络空间——虚拟实在的形而上学[M]. 金吾伦,刘钢,译.上海: 上海科技教育出版社, 2000 : 73 . |
2016, Vol. 25





