钢筋混凝土结构设计是土木工程专业建筑工程方向的核心专业课程,其综合性和实践性都很强,需要学生对土木工程材料、材料力学、结构力学及结构设计原理等专业基础知识能够灵活运用。笔者在授课过程中发现,学生学完上述课程后没有及时温习,待学习钢筋混凝土结构设计时,相当一部分学生对学过的基础课知识印象不深刻。此外,有很多知识点需要查询国家相关规范。调查显示只有5.5%的学生会在课前自主预习[1]。因为学生主动参与的积极性不高,所以在学习过程中的“学习主体”作用得不到体现。为了激发学生的学习热情,提高教学效果,丰富课堂教学形式,已有不少学者对钢筋混凝土结构设计的实践[2]和理论教学方法进行了尝试和改革[3-6]。
研讨式教学法由于在教学过程中赋予学生更多的任务,明确了学生的主体作用,在准备研讨内容的过程中能够强化学生筛选、凝练和综合分析问题的能力[7-8]。研讨式教学法越来越多地被引入课堂教学,在大学课堂内被尝试实践和探索[9-11]。研讨式教学法能够有效改变传统的以教师“讲”和“灌”为主的枯燥、单调的教学模式,活跃课堂氛围。学生喜欢生动有趣、互动性强的学习氛围。为此,如何改变传统的“满堂灌”式的教学方式,激发学生的参与主动性和学习兴趣,研讨式教学法提供了一种可行的教学模式。
由于钢筋混凝土框架结构是学生在日常生活中最常见的结构形式,选取常见的钢筋混凝土框架结构中的框架梁和框架柱的内力计算作为研讨式教学的切入点。学生在结构设计原理课程中已学习过单个构件的截面设计,通过搜集资料,研讨具体设计内容,达到对钢筋混凝土框架结构知识的学习和深入理解。
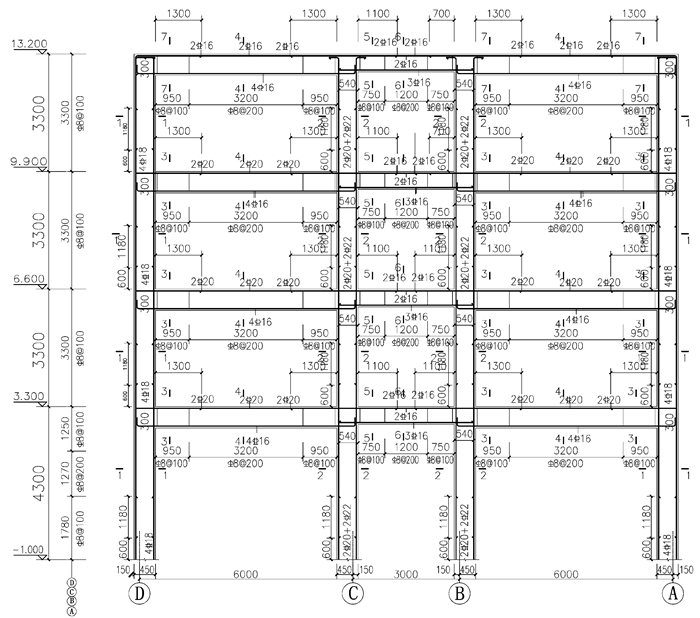
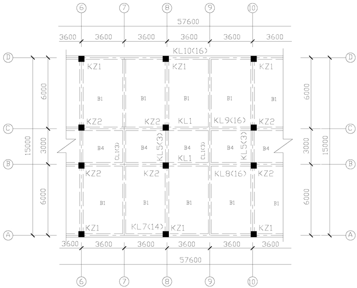
一、研讨式教学法在钢筋混凝土结构设计教学中的探索 (一)课前准备在讲授钢筋混凝土多层框架结构这一章时,以学生上课所在的四层框架结构教学楼为例,选取该建筑结构施工图纸中的结构平面图(如图 1)和框架配筋立面图(如图 2)预先告知学生最终的成果。为了完成教学楼的⑧轴线的框架梁和框架柱的设计,需要学生参与到设计中来。
|
图 1 ⑧ 轴线结构平面布置图 |
|
图 2 ⑧ 轴线框架配筋立面图 |
首先将本章的主要内容全部展现给学生,然后针对单个知识点提出建筑结构设计中需要解决的问题。将要研讨的内容预先告知学生,为学生预留时间去查资料,整理思路。在多层框架结构这一章内容学习时,安排两次研讨教学,以框架结构中的梁和柱的内力计算为例,进行如下教学研讨设计。
(二)研讨式内容的布置教师提出本章节的主要内容:(1)多层框架结构的组成与布置;(2)框架结构的计算简图与内力近似计算;(3)多层框架结构的内力组合;(4)无抗震设防要求时框架结构的构件设计;(5)多层框架结构基础。
除知识点(2)由教师和学生共同完成学习和讨论外,其余四部分由教师讲述。在知识点(2)中框架结构的计算简图由教师讲授,框架结构内力的计算方法及其结果作为研讨内容。任务分解和布置是研讨课的关键,直接关系到学生的工作量和理解的深度。
为了完成多层框架结构中的框架梁和框架柱的截面设计,需要解决的问题及需要完成的任务见表 1。
| 表 1 框架梁和框架柱截面设计学习任务表 |
由此可以看出,如何求出框架结构中框架梁和框架柱的内力,是进行框架梁、框架柱截面设计的关键,但是框架梁和框架柱的内力计算方法不同于结构力学中杆系构件内力计算方法。通过表 1中的任务分解,明确了研讨内容在本章学习中的重要性,提出了需要学生提前做好相关准备的内容要求。
(三)研讨过程实践基于图 1中教学楼的⑧轴线这一榀框架在竖向荷载和水平荷载作用下的内力计算,将班级学生分成四组,每组8人,分别进行研讨内容准备和工作陈述汇报。授课教师建立了包括班级所有学生在内的微信群和QQ群,便于师生在准备研讨过程中及时交流。由于课堂时间有限,教师在在课堂上只布置小组任务,课后对学生研讨内容的准备进行指导,每组学生准备好课件统一汇报。
两组学生搜集并介绍竖向荷载作用下框架结构内力的计算方法:一组介绍分层法计算竖向荷载作用下框架结构内力的过程及其计算结果;另一组讲述弯矩二次分配法计算竖向荷载作用下框架结构内力的过程及其结果。另外两组学生搜集并介绍水平荷载作用下框架结构的内力计算方法:一组介绍反弯点法计算水平荷载作用下框架结构内力的过程及其计算结果;另一组介绍D值法计算水平荷载作用下框架结构内力的过程及其结果。
共开展两次研讨:一次为竖向荷载作用下框架结构的内力计算;另一次为水平荷载作用下框架结构的内力计算。教师组织学生,以教学楼设计背景中的框架结构为例,通过各组学生分别介绍不同荷载形式下结构杆件内力的完整计算步骤,获得初步的计算方法,了解多层框架结构内力的近似计算方法。
学生汇报结束以后,教师引导学生对比两种方法的计算结果,找出差异,分别总结在竖向荷载和水平荷载作用下框架梁、框架柱的弯矩计算过程特征,从最初始的已知条件,到计算过程,再到最后的计算结果对比及分析。
对比、分析、总结的过程是教师引导学生的关键环节,每组学生重点关注了自己所介绍的计算方法,介绍过程中也只是将具体的计算步骤条理性地罗列出来,需要教师对每种计算方法进行提炼、总结,以便于学生清晰地从整体上把握计算步骤。
在总结的过程中,引导学生分别将计算竖向荷载作用下的框架结构内力的分层法和弯矩二次分配法的共同点提炼出来。两种方法在计算过程中都需要求出框架梁端的固端弯矩,然后采用弯矩分配法进行计算柱端的弯矩。二者的区别主要在于:(1)分层法首先要将该框架结构进行分层,而弯矩二次分配法则是对整体框架进行计算;(2)分层法要对底层以外框架柱的线刚度进行调整,并且将柱的传递系数进行调整;而弯矩二次分配法不需要作相应的调整。
引导学生对水平荷载作用下框架结构内力的计算方法进行类似总结,找出其共同点和区别,便于对比两种方法的优缺点。
在对比、分析的过程中,教师要引导学生,区别竖向荷载作用下和水平荷载作用下框架结构中构件内力的入手点。在计算竖向荷载作用下结构构件的内力时,着手点在于先求出框架梁的固端弯矩,进而根据节点的弯矩分配求出柱端弯矩。而在计算水平荷载作用下结构的内力时,其着手点在于先求出柱端弯矩,进而根据节点弯矩平衡求出梁端弯矩。
二、研讨式教学法的收获在采用研讨式教学法的过程中,教师需要以课本内容为主线,引导学生找到解决实际工程问题思路,发挥学生的主动性,做好新课内容的预习和基础课程知识的复习。需要教师和学生积极配合,教师设计好教学流程、控制好教学进度、利用好微信群和QQ群等交流平台,及时与学生交流并解决在准备讨论过程中遇到的问题,以学生为主体进行相关内容的学习和准备。
(一)教师指导实施 1. 教师凝练题目、布置研讨任务在进行钢筋混凝土结构设计教学时, 教师首先要做好学生角色转化动员,将设计任务交给“设计人员”(即学生),然后再讲解解决该类问题的一般步骤, 布置具有可操作性的研讨任务。在研讨之前,教师用几节课的时间讲授基本的内容和知识点,然后公布研讨教学计划和方案,将学生按所设计结构的复杂程度分组,布置每组需要准备研讨汇报的内容。
2. 引导学生讨论、师生共同评议教师引导学生对宣讲成果进行提问讨论。教师作为组织者,既要积极鼓励学生发言,同时作为引导者又要启发学生,适当进行评价总结,还要提出进一步引申探讨的内容或方向。因此,教师要有热情,有丰富的知识储备,充分调动和激发学生的主动性,一起参与讨论。讨论的主要目的是拓宽专业知识面,发现学生思考中的潜在创新点,并加以明确和鼓励。同时对每组汇报内容进行评分考核,报告内容丰富、正确(60分),PPT制作美观、易懂(30分),正确回答提问(10分)。此外,积极参与提问交流的学生可获5分加分。
3. 教师归纳总结学生根据师生共同讨论建议,指出具体的问题,进一步改进和完善初期成果,不仅要求理论更加深入、分析更加全面,而且文稿结构要符合专业规范要求。师生对初次讨论成果进行归纳和综合研究,以挖掘更深层次的理论或在实践方面的应用,进一步拓宽知识面,从而培养学生运用理论分析问题、解决工程问题的能力和思维,让学生理解将知识转化为工程应用的重要性。
(二)学生的收获 1. 锻炼了学生分析问题、查找资料的能力在教学中加强理论联系实际,可以将设计院的图纸作为模板发给学生,让学生通过查阅资料学习如何分析内力、如何确定构件截面尺寸。通过理论与实际工程的有机结合,增强建筑结构整体概念,促进综合知识的运用,激发学生的学习热情,提高学生的参与激情。学生在搜集资料、小组讨论、制作课件的过程中,既充分理解了每个问题的解决方法,又充分发挥了主观能动性和创造力。
该课程采用研讨式教学法以来,学生的课堂接受能力和学习效果显著提升。主动性、自习能力得到了有效激发。此外,学生分析问题和解决问题的能力有了明显提升,通过将一个大的设计项目分解为若干小问题,降低了难度,提高了可操作性。同时,还增强了学生在实际设计过程中对理论知识的应用能力。
2. 汇报表达能力的锻炼每组选一位代表上讲台宣讲小组成果。这个过程最能体现学生的独立思考能力,以及小组成员间协作解决问题的能力。最后对各组学生的汇报内容的正确性、全面性、PPT制作的质量、学生的问答表现进行综合评分。调研发现大多数学生都希望自己小组的汇报能够得到大家的认可和掌声。
三、研讨式教学法的经验总结为了提高学生的参与度,激发学生的兴趣,笔者总结出如下几个关键点需要教师恰当处理。
(1) 在选择研讨问题时,不易太大,以鼓励学生参与到问题的解决过程中为好。给学生安排的内容不宜太多,否则学生无法把握住重点,容易偏离主题。
(2) 需要合理安排以教师为主讲的教学内容和师生研讨内容的衔接点,设计好教师主讲的理论知识点,为学生搜集研讨内容预留相应的准备和消化吸收时间。
(3) 根据教学内容提出适当的问题让学生分析,问题需要学生经过查阅课本、资料和规范以后,找到其解决方法,在教师的启发下总结得出不同解决方法的优缺点,从而增强学生分析问题和解决问题的能力。
(4) 研讨问题的设置,最好能够从解决现实工程中的实际问题出发,在讲解实际工程问题解决的过程中学习理论知识,让学生体会到所学知识的实用性。
四、结语运用研讨式教学法调动学生的主动性和参与度,增加了教师和学生的在教学过程中的互动,培养了学生系统运用现有知识分析和解决问题的能力,根据自己的特点初步形成自己的科学思维方式。研讨前的任务细分和研讨后的总结、分析都是研讨式教学的关键。
| [1] |
高亚兵. 90后大学生学习状况的调查与分析[J]. 浙江外国语学院学报, 2015(3): 84-89. DOI:10.3969/j.issn.2095-2074.2015.03.015 |
| [2] |
谢舒潇, 杨七平, 陈毓超, 等. 多校区同步翻转课堂教学模式构建与应用[J]. 高教探索, 2018(9): 37-43. DOI:10.3969/j.issn.1673-9760.2018.09.007 |
| [3] |
江巍, 王先军, 吴小勇, 等. 微博在混凝土结构课程教学中的应用探讨[J]. 高等建筑教育, 2015, 24(6): 170-173. |
| [4] |
周翠玲, 冯竟竟, 张耀军. 工程教育专业认证背景下钢筋混凝土结构课程教学改革[J]. 山东农业工程学院学报, 2018(11): 28-31. DOI:10.3969/j.issn.1008-7540.2018.11.007 |
| [5] |
高丽, 王勇, 何明胜. 多样化教学在"水工钢筋混凝土结构"中的应用[J]. 黑龙江教育:高教研究与评估, 2017(11): 30-31. |
| [6] |
董伟, 徐博瀚, 王立成. 工程事故案例分析在钢筋混凝土结构课程中的引入与运用[J]. 高等建筑教育, 2017, 26(3): 47-50. |
| [7] |
李启才, 毛小勇, 于安林. 从"给学生讲课"到"让学生讲课"——高校毕业设计指导方法的创新[J]. 高等建筑教育, 2017, 26(2): 106-109. |
| [8] |
高燕梅, 刘东. 桥梁工程课程讨论式教学实践方法研究[J]. 高等建筑教育, 2015, 24(2): 86-88. |
| [9] |
刘海燕. 小班研讨课:一流本科教育的核心要素[J]. 江苏高教, 2018(7): 60-65. |
| [10] |
邱文教, 赵光, 郑家茂, 等. 高校学生对研讨课认知与满意度的实证研究——基于江苏高校13356份问卷调查[J]. 高等工程教育研究, 2018(1): 139-145. |
| [11] |
李瑾, 张宁, 云霄. 新工科背景下工科生自主学习力的深度构建-以X大学"现代密码学"SPOC翻转课堂为例[J]. 高等工程教育研究, 2018(5): 71-77. |
2019, Vol. 28

