2025, 47(1):1-10. DOI: 10.11835/j.issn.2096-6717.2023.090
摘要:近年来,极端天气事件呈现趋多趋强态势,变化环境下洪涝灾害频发给社会经济发展带来严峻挑战。重庆是中国西部超大城市和成渝城市群“双核”之一,主城区地貌以山地、丘陵为主,受上游江河来水和三峡库区回水的双重影响,洪涝灾害风险突出。以重庆市历年洪涝灾害事件为基础,梳理重庆市防涝减灾现状,分析水文、地理、地形、城市化、气象等因素对重庆市洪涝灾害发生频率和强度的影响,结合这些洪涝灾害致灾因子进一步对重庆市的孕灾环境和承灾体进行分析,提出针对重庆中心城区洪涝治理的对策建议。分析发现:重庆市洪涝灾害受多种因素综合影响,特殊的地理位置和山地城市的地形条件决定了重庆防洪治涝的艰巨性;重庆市河流纵横,山高谷深,完全具备发生洪涝灾害的孕灾条件;应充分考虑气象水文和经济社会发展的新情况,根据三峡水库等建成后的洪涝灾害特征和城区防洪防涝能力现状,及时优化城市洪涝灾害防御体系。
2025, 47(1):11-17. DOI: 10.11835/j.issn.2096-6717.2022.133
摘要:泥水盾构穿越复合地层时,掘进控制参数和泥水分离系统参数往往出现大幅波动,影响施工安全和掘进效率。为提升施工过程的安全稳定性,实现异常工况预测,依托望京隧道盾构工程,针对地层状况采用筛分、双旋流、离心/压滤固液分离协同控制技术,采集盾构机掘进参数(掘进速度、刀盘转速和总推进力等)和泥水分离系统运行参数(进浆量、进浆密度和进浆黏度等),通过Cook距离离群检测和小波阈值去噪处理提升数据质量;以双旋流分离密度比值、黏度比值等12个参数为输入,排浆量、排浆密度和排浆黏度为输出,建立BP神经网络泥水分离系统参数的预测模型,并选取3个不同地层环段进行预测对比分析。预测结果表明:预测平均绝对误差均在5%以内,该预测模型在复合地层下仍具有较高的准确性。
2025, 47(1):18-26. DOI: 10.11835/j.issn.2096-6717.2022.108
摘要:为解决真空热固结过程中热量与真空负压在土体中衰减而导致土体加固效果不均匀的问题,利用强夯法能改善土体密实度的特性,将真空热固结法与强夯法联合应用于工程废浆的加固处理,通过4组室内模型试验研究不同夯击时机对土体加固效果的影响。结果表明:沉降速率为每3 d沉降4 cm时为最佳夯击时机,土体表面沉降比其他试验组提高26.55%、11.72%和3.74%,对工程废泥浆的处理效果最佳,能有效解决真空热固结下深层土体加固效果差的问题,并提高土体的均匀性。通过微观结构分析发现,合适的夯击时机下,由于土颗粒之间的孔隙重分布,导致土体密实程度更高,十字板剪切强度随之增大。此外,内部孔隙重分布产生微裂缝形成的排水通道对排水有一定的促进作用,进一步提升了固结效果,在合适的夯击时机下,对土体的十字板剪切强度与固结度均有促进作用。
2025, 47(1):27-35. DOI: 10.11835/j.issn.2096-6717.2022.124
摘要:絮凝调理和化学固化改性处理能改善高含水率淤泥初始不良工程特性,将废弃淤泥(浆)资源化利用为路堤填料对淤泥强度有一定要求。已有研究证实了絮凝-固化-真空预压联合法(VP-FSCM)可以有效处理高含水率淤泥浆(含水率>300%),且处理后的淤泥强度满足路堤填料需求。通过室内模型箱试验探索VP-FSCM工艺处理废弃淤泥(含水率约为150%~300%)的可行性和高效性;优化VP-FSCM工艺在处理淤泥中的外加剂配方(类型和掺量等)。试验结果表明:VP-FSCM处理废弃淤泥后土体28 d不排水抗剪强度为絮凝-固化法(FSCM)处理废弃淤泥后的2.76倍,证实了VP-FSCM处理废弃淤泥的高效、可行性。沉降脱水和力学等特性分析结果表明,VP-FSCM工艺处理废弃淤泥的最佳外加剂种类为水泥(OPC)、高炉矿渣(GGBS)、生石灰(CaO)和聚丙烯酰胺(PAM),且最优掺量分别为5.0%、5.0%、1.5%、0.12%;在最佳外加剂类型和掺量条件下,真空压力越高,处理后的废弃淤泥不排水抗剪强度越高,养护后含水率越低。
2025, 47(1):36-45. DOI: 10.11835/j.issn.2096-6717.2023.123
摘要:为探明竖向荷载作用下螺牙高度对螺纹桩承载特性及桩周土体的影响,通过室内半面模型桩试验,结合数字图像相关技术(DIC),研究了不同螺牙高度、不同荷载条件对桩身承载性能、桩周土体破坏特征、桩周土体位移场的影响。采用ABAQUS数值模拟方法对模型试验的结果进行验证,并扩展了螺牙高度的取值范围,分析螺纹桩桩身极限承载力与材料利用率、桩周土体应力场分布随螺牙高度变化的规律。结果表明:增加螺牙高度能提升桩身承载力,增大桩周土体位移影响范围,延缓桩侧土体剪切破坏的发展;随着桩身沉降量增加,桩顶荷载以桩侧阻力承受为主,逐渐演变为以桩端阻力承受为主;螺牙高度的增加虽然能提升桩身极限承载力,但桩身材料利用率存在峰值。
2025, 47(1):46-53. DOI: 10.11835/j.issn.2096-6717.2023.027
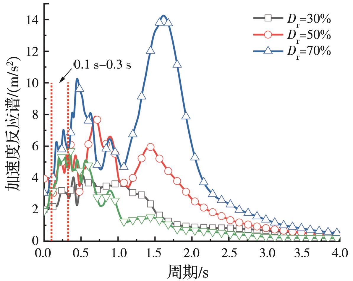
摘要:砂土液化夹层既会造成地基失效破坏,又会对上部建筑起到减震作用,而覆盖层可以减小建筑沉降,却会放大地震作用,因此,有必要探讨结构与土相互作用下液化夹层和覆盖层对建筑的隔震耦合影响。基于Biot两相饱和多孔介质动力耦合理论,采用有限元和有限差分耦合动力分析方法,分析不同地震强度、砂土密实度Dr和液化层厚深比K(考虑液化夹层和覆盖层耦合作用)对上部结构隔震的影响。结果表明:结构加速度反应谱比随震动强度增加先减小后趋于稳定,当震动强度超过某阈值时,液化层隔震效果不再增加;松砂(Dr=30%)的隔震效果优于中密砂(Dr=50%)和密砂(Dr=70%),但会产生不可忽略的沉降危害;密砂虽然能更好地抑制建筑沉降量,但在短周期内会起到加震作用;考虑覆盖层和液化层的耦合作用,发现K值在0.3~0.5区间内时,既能减小建筑沉降,又能起到减隔震作用。
2025, 47(1):54-62. DOI: 10.11835/j.issn.2096-6717.2022.116
摘要:挡墙后铺设柔性垫层或回填轻量土,对其优化设计和降低成本有着重要的工程意义。通过开展不同级别荷载下的挡土墙物理模型试验,分析墙后铺设EPS柔性垫层、回填泡沫轻量土及二者同时施加时的墙后土压力大小及分布特征,并探讨相应的减载效应。结果表明:挡土墙铺设柔性垫层、回填轻量土或二者同时施加时,墙后土压力均随埋深呈先增大后减小的“鼓肚”状非线性特征,土压力最大值多出现在1/2墙高处;同等荷载作用下,仅回填轻量土的减载效果相对较弱,减载率为10%~25%,而铺设柔性垫层的最大减载率较之提高了1.5倍,当二者同时施加时,减载效果最佳,最大减载率相应提高了近3倍;柔性垫层减载效果随着厚度的增加逐渐降低,但泡沫掺量对墙后回填轻量土的减载率影响更为敏感。工程中可考虑采用中等厚度的垫层,若墙后填土附加荷载较大,可适当提高回填泡沫轻量土的掺量。
2025, 47(1):63-70. DOI: 10.11835/j.issn.2096-6717.2023.086
摘要:基于全断面隧道掘进机(Tunnel Boring Machine,TBM)滚刀贯入室内模型试验,研究了3种不同破岩模式(完整岩样破岩、同轨迹破岩和异轨迹破岩)在不同围压条件下高强度花岗岩样贯入荷载演化特征,重点揭示贯入荷载-贯入度特征曲线、峰值荷载、最大跌落幅值变化规律,获取不同破岩模式在不同围压条件下TBM滚刀受力特性。结果表明:1)高围压组贯入荷载-贯入度特征曲线较低围压组先跌落,跌落幅度较小,但其对应的贯入荷载并非峰值荷载,而低围压组初次跌落荷载为峰值荷载,且跌落幅值较大;2)在中高围压10~15 MPa时,峰值荷载及贯入荷载最大跌落幅值均最小,表明此围压范围较利于TBM的掘进;3)低围压条件下选用异轨迹破岩模式较同轨迹破岩模式能更有效地降低TBM滚刀贯入荷载,但同轨迹破岩模式的岩样发生楔裂破坏,其最大跌落幅值最小,更能减少刀具所受冲击荷载,减少刀具磨损。
2025, 47(1):71-79. DOI: 10.11835/j.issn.2096-6717.2022.138
摘要:灌注次数过多制约了微生物诱导碳酸钙沉积(MICP)在实际工程中的应用。为了减少灌注次数、提高胶结效率,提出一种MICP加固强化方法,即在胶结液中添加铝离子絮凝剂,以提高MICP加固速率和增强加固效果。开展MICP砂柱试验,在胶结液中加入不同浓度AlCl3?6H2O进行灌注试验,然后测试加固砂柱碳酸钙含量及无侧限抗压强度(UCS)。在水溶液试验中,观察不同溶液条件下沉积物生成情况及溶液的pH值变化,并通过XRD、SEM试验研究铝离子絮凝剂对沉积碳酸钙的成分及形态的影响。结果表明:与常规方法的对照组比较,胶结液中加入适量铝离子絮凝剂,灌注3次后砂柱即可形成有强度的固结体,灌注5次后砂柱无侧限抗压强度可达到1.7 MPa,而常规对照组达到相同的强度需要灌注9次。铝离子絮凝剂的掺入有效减少了MICP灌注处理次数,对实际应用有重要意义。
2025, 47(1):80-88. DOI: 10.11835/j.issn.2096-6717.2022.119
摘要:为研究非饱和黄土对水蒸气的吸附特性,采用蒸汽平衡法开展不同湿度环境下的等温吸附试验,分析水蒸气在非饱和黄土表面的吸附行为,并探讨温度、矿物成分及含量、干密度对土体吸附性能的影响。结果表明:非饱和黄土水蒸气吸附量随相对湿度的增加而增加,整个过程包含了单层吸附、多层吸附和毛细凝聚3个阶段,且GAB模型可以用来描述非饱和黄土的水蒸气吸附过程;水蒸气吸附量与温度之间存在明显的负相关关系,相对湿度恒定,水蒸气吸附量随温度的升高而降低;非饱和黄土的水蒸气吸附与矿物组成密切相关,黏土矿物含量直接影响其水蒸气吸附能力;此外,干密度对水蒸气吸附量的影响可分为两个阶段,在相对湿度RH<80%时,水蒸气吸附量随干密度的增大而增大,直到进入毛细凝聚阶段,随着干密度的增大,水蒸气吸附量不再增大反而有所降低。
2025, 47(1):89-99. DOI: 10.11835/j.issn.2096-6717.2022.114
摘要:采用工业固体废弃物磷石膏、木质素对人工配制铅污染土进行固化处理,通过无侧限抗压强度(UCS)试验探究固化剂掺量、养护龄期对不同程度铅污染土固化后应力-应变曲线、破坏形态及无侧限抗压强度的影响规律,对比分析两种固化剂的固化效果,并采用扫描电镜(SEM)试验分析土样固化前后的微观特性。试验结果表明,磷石膏、木质素均能增大固化土的无侧限抗压强度,减小破坏应变;固化土的无侧限抗压强度随磷石膏掺量增加呈持续上升趋势,随木质素掺量增加呈先上升后下降趋势;延长养护时间能有效提高固化土无侧限抗压强度。随固化剂掺量和养护龄期的增加,土体内部胶结水平提高,土样破坏形态从局部张裂逐渐转变为剪切破坏,呈现脆性破坏特征。两种固化剂固化土效果各有优劣,木质素对高浓度铅污染土的固化效果优于磷石膏,抵抗变形能力更好,而磷石膏短期内提升强度能力及对铅的固定效果更好。扫描电镜试验表明,固化剂可起到填充孔隙、胶结土颗粒的作用,水化产物在土体内形成致密结构,宏观表现为强度增强。
2025, 47(1):100-109. DOI: 10.11835/j.issn.2096-6717.2022.106
摘要:为了对淤泥和建筑垃圾进行处置,实现二者的共同资源化利用,在室内和现场分别对淤泥进行固化试验。将建筑垃圾作为骨料按淤泥质量比的15%添加到淤泥中,再向淤泥中加入淤泥固化剂,通过机械搅拌的方式将淤泥与建筑垃圾、固化剂混合均匀,然后对固化土进行养护。室内试验结果表明,当固化剂掺量为8%时,固化淤泥土强度较高,养护28 d后,室内无侧限抗压强度可达320 kPa;在现场试验中,静力触探试验和平板荷载试验表明,固化剂对淤泥的固化效果明显。将低剂量固化剂添加到淤泥中,固化淤泥土强度较低,骨料的架构作用不明显;当固化剂掺量为8%时,固化土的强度较高,骨料的架构作用有利于提升固化淤泥土的承载力,土体的承载力特征值可达325 kPa,架构作用对固化淤泥土强度的提升率为71.05%,可实现淤泥和建筑垃圾的同步资源化利用。
2025, 47(1):110-117. DOI: 10.11835/j.issn.2096-6717.2023.136
摘要:现存古建筑大多带伤服役,体内残损状态复杂多样,且对古建筑进行的加固维修与原有残损对结构本体的安全性能影响截然相反。为实现对古建筑的预防性保护,需要量化古建筑纯木结构中的残损状态及修缮措施对其安全状态的影响。基于山西万荣飞云楼各构件残损状态普查统计数据,结合现有规范及工程经验对构件残损状态等级详细划分,建立4级模糊层次分析模型,确定结构体中承重构件及构件残损类型的权重值及判断矩阵,通过模糊层次分析方法对飞云楼进行安全状态评估。结果表明,建立的模糊层次安全评价模型能反映残损状态及修缮措施对飞云楼安全状态的影响,有效将结构评价与构件评价联系起来,验证了修缮措施能有效增强古建筑结构本体的安全性及稳定性,该模型及方法可以应用到多层古建木结构的安全等级评价中。
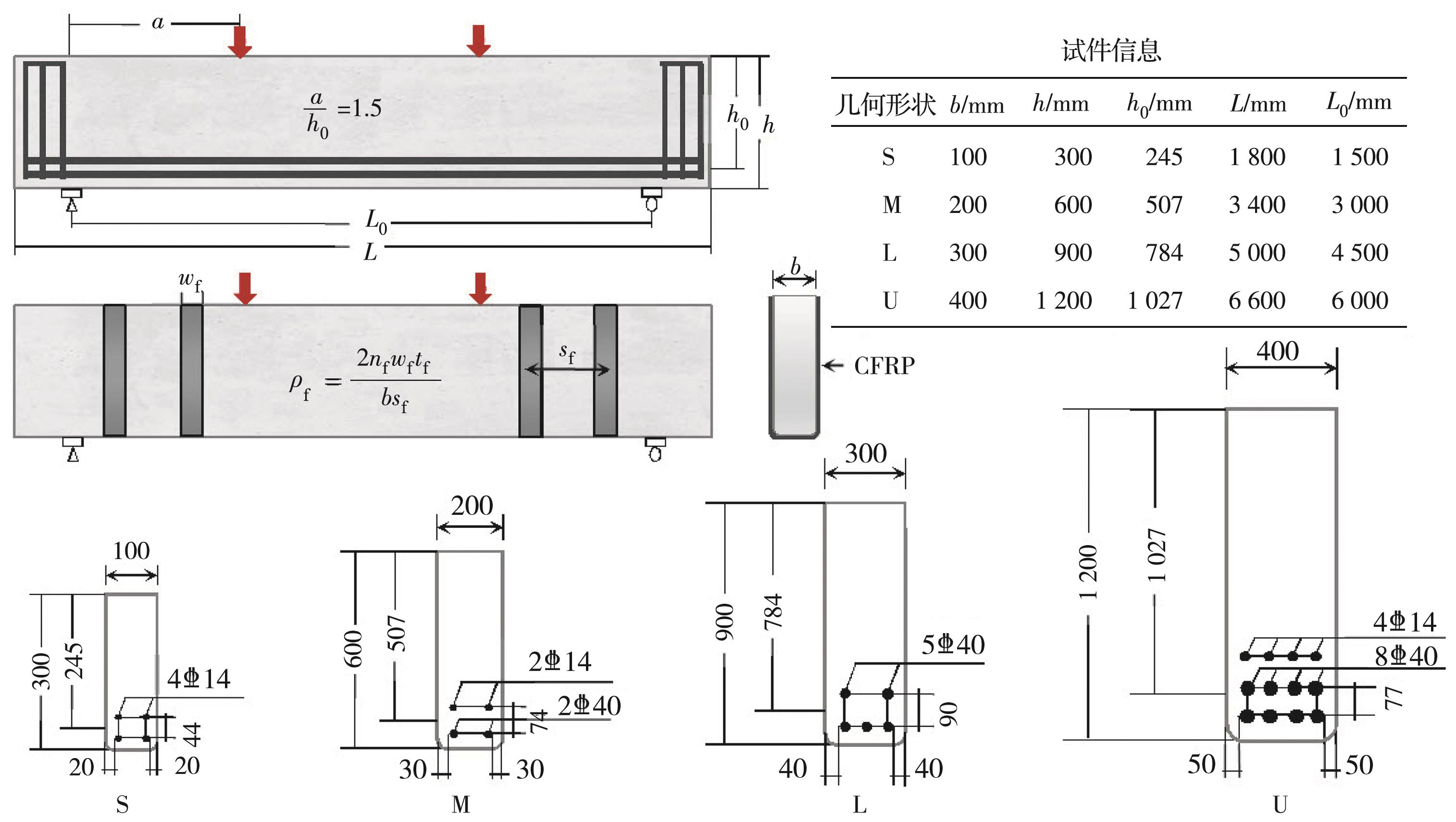
2025, 47(1):118-129. DOI: 10.11835/j.issn.2096-6717.2022.134
摘要:对12根几何相似的CFRP加固无腹筋钢筋混凝土简支梁进行剪切破坏试验,分析梁深、配纤率对梁剪切破坏模式与失效机制的影响,获得了CFRP条带的全过程应变分布情况,讨论梁深和CFRP配纤率对CFRP条带抗剪贡献的定量影响,进而提出CFRP抗剪贡献的计算公式,并与试验结果及规范计算结果等进行对比分析。结果表明,梁深对CFRP布抗剪贡献影响明显,即梁深增大时,CFRP布名义抗剪强度显著降低。梁高由300 mm变化至1 200 mm时,CFRP名义抗剪强度下降约50%,具有明显的尺寸效应;不同尺寸下,CFRP布名义抗剪强度均随着配纤率的增大而增大,但名义抗剪强度增大幅度随着配纤率的增大而减小,呈现出非线性增长趋势;建立的CFRP抗剪承载力计算公式能较准确地预测不同配纤率及截面尺寸下的CFRP抗剪承载能力。
2025, 47(1):130-141. DOI: 10.11835/j.issn.2096-6717.2022.137
摘要:目前有关带肋纤维增强复合材料(FRP)筋粘结性能的研究不足。收集粘结纤维肋FRP筋(简称粘结肋FRP筋)和机械刻槽肋FRP筋(简称刻槽肋FRP筋)的试验数据,探究各参数对粘结性能的影响。结果表明:两种带肋FRP筋的宏观破坏模式都是拔出破坏,在细观上粘结肋FRP筋主要为FRP筋肋的剪切剥落,而混凝土损伤较轻微,大部分刻槽肋FRP筋表现为混凝土肋剪切破坏,二者的粘结强度随混凝土强度的增加而增大;增加保护层厚度可增强混凝土对FRP筋的约束效果,有助于提高粘结肋FRP筋的粘结强度,但对刻槽肋FRP筋几乎没有影响;增加相对肋高hrd和FRP筋肋宽比FR可提高粘结肋FRP筋的粘结强度;而刻槽肋FRP筋几乎不受hrd的影响,主要受混凝土肋宽比CR的影响,其粘结强度随CR的增加而增大;建立的粘结强度公式计算值与试验结果吻合较好,预测精度高于设计规范,主要原因在于该公式准确考虑了FRP筋肋成型工艺和几何特征对粘结强度的影响。
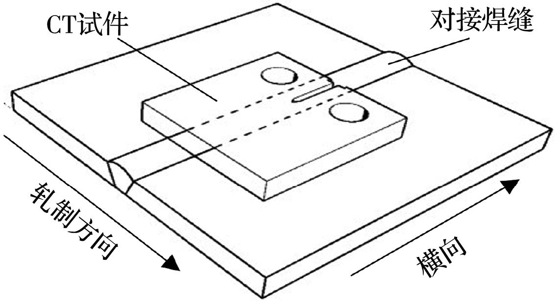
2025, 47(1):142-151. DOI: 10.11835/j.issn.2096-6717.2022.118
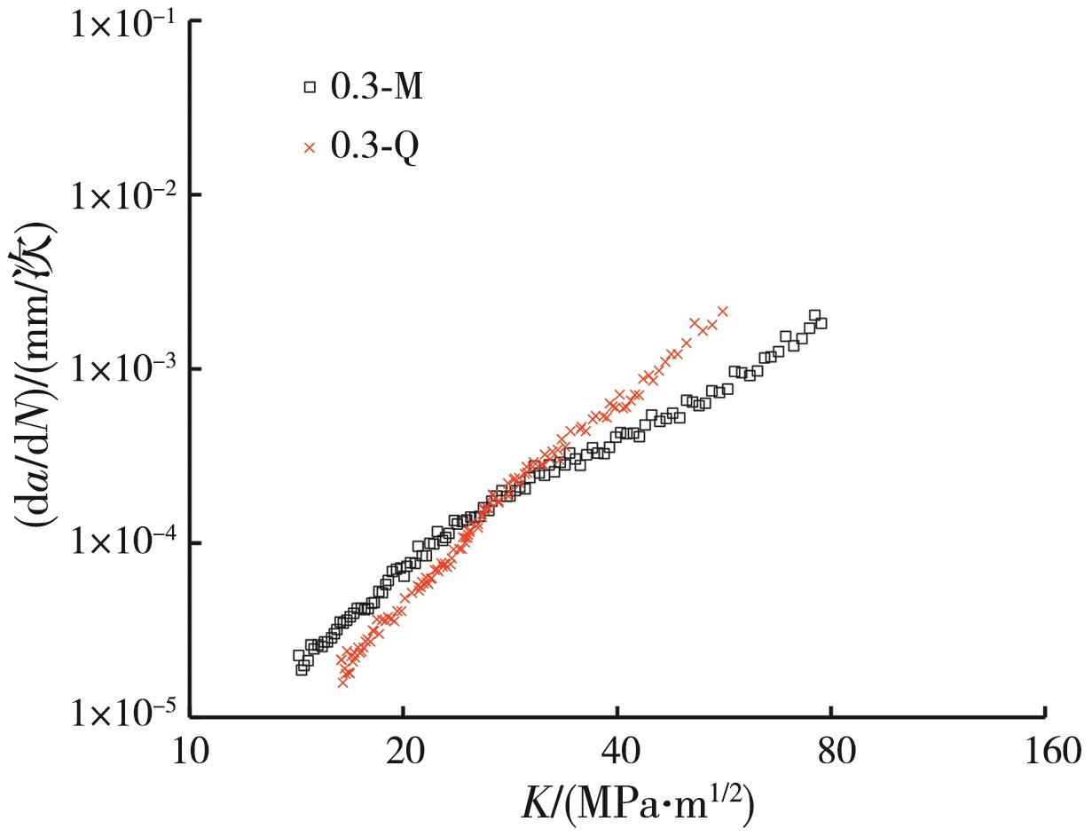
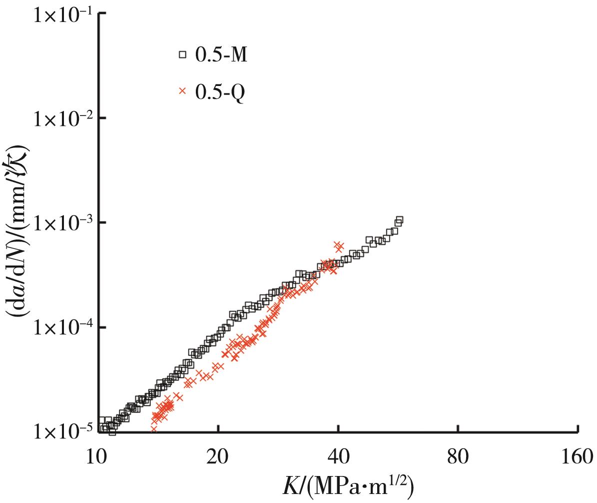
摘要:焊接构造是钢桥的薄弱部位,在反复车辆荷载作用下,疲劳损伤正逐步成为影响桥梁服役安全的关键问题之一。以Q550E高强钢为研究对象,开展母材和对接焊缝接头的静力拉伸和疲劳裂纹扩展试验,建立母材及焊接连接件的疲劳裂纹增长模型,揭示了应力比对高强钢焊接节点疲劳裂纹扩展速率的影响规律;开展基于FRANC3D和ABAQUS的联合仿真模拟分析,通过敏感性分析明确关键影响参数。结果表明:随着应力比的增大,疲劳裂纹扩展速率参数m增大、lg C减小,应力强度因子门槛值减小;对接焊缝m值约为母材的2倍,对接焊缝裂纹门槛值大于母材,且对应力比更敏感;联合仿真方法可准确预测高强钢焊接接头疲劳寿命,高应力比下试件厚度和初始裂纹深度对疲劳扩展影响显著。
2025, 47(1):152-166. DOI: 10.11835/j.issn.2096-6717.2024.002
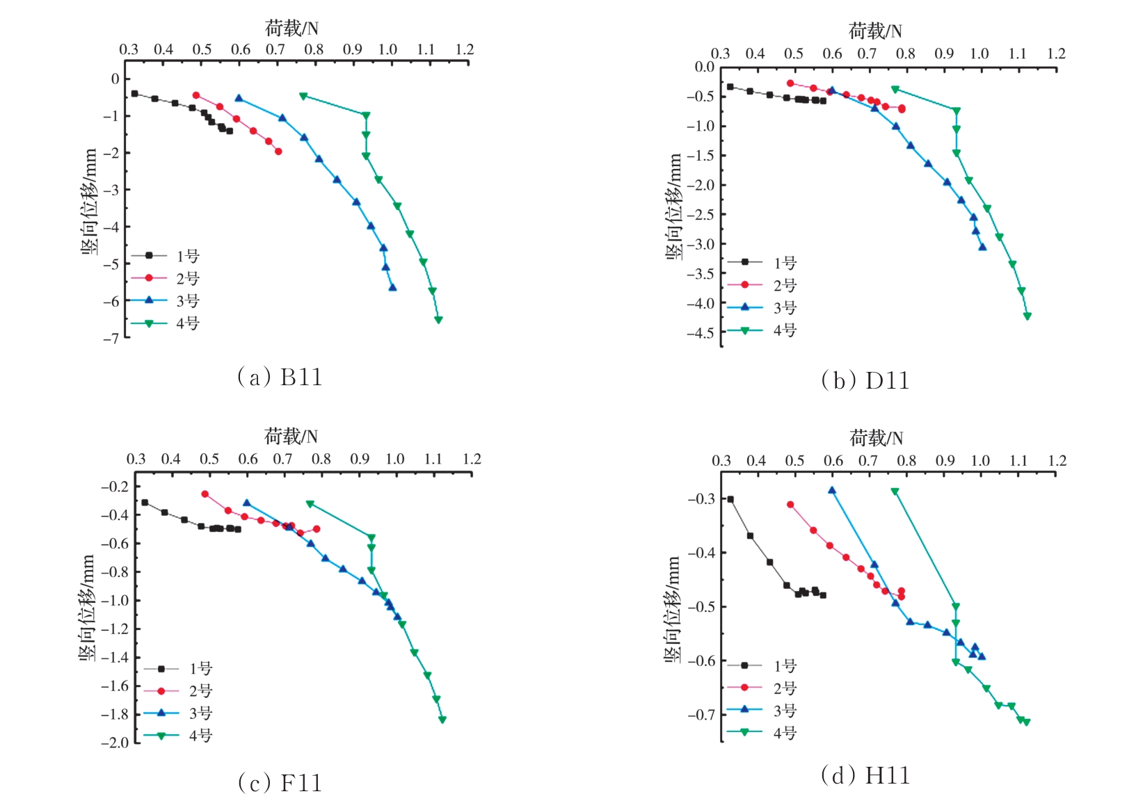
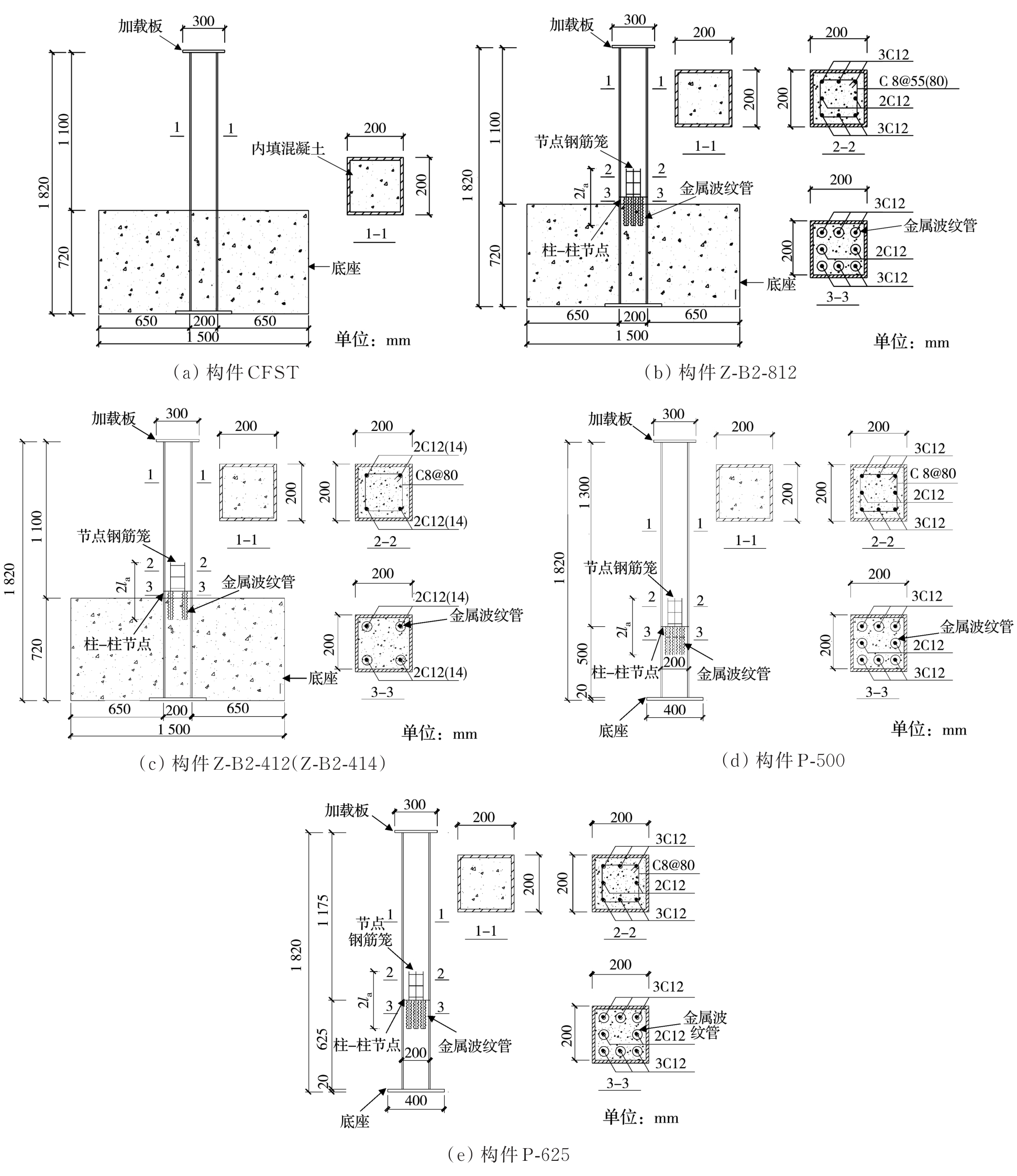
摘要:为进一步提高用于钢-混凝土组合结构的柱构件的装配效率,并改善其抗震性能,降低生产成本,提出一种新型浆锚连接方钢管混凝土拼接柱设计方法。通过对缩尺比例为2的5个拼接柱构件和1个整浇柱构件开展拟静力试验,获得不同配筋率、配筋形式和柱-柱节点拼接部位的新型拼接柱的抗震性能。试验结果表明:新型拼接柱构件在低周期反复荷载下的破坏过程及其形态与整浇柱构件相似,其滞回曲线饱满,耗能能力、抗承载力退化和抵抗变形(刚度)能力均比整浇柱构件更加优良,特别是将柱-柱节点拼接部位设于柱间反弯点区域的P类型构件变形能力最佳,证明了该新型拼接柱设计方法的科学性,并对提高钢-混凝土组合框架结构的整体抗震性能具有应用潜力。
2025, 47(1):167-178. DOI: 10.11835/j.issn.2096-6717.2022.115
摘要:深度神经网络和计算机视觉技术近年来在结构健康监测中发挥了越来越重要的作用。利用无人机航拍采集的桥梁斜拉索损伤图像数据,研究基于深度学习技术的斜拉索PE护套损伤识别方法。为实现在较低运算能力设备上对大跨度桥梁斜拉索表面局部损伤的智能快速识别,解决传统深度卷积神经网络的运算效率相对较低、模型参数规模较大的问题,提出轻量化处理的区域推荐型卷积神经网络模型。介绍区域推荐网络与其轻量化改进方法的理论基础,分析轻量化模型处理的必要性,其能在保证识别精度的前提下降低模型训练与预测的设备性能需求,达到节约计算资源与时间的目的;通过数据增广等多手段解决损伤样本数据量不足的问题,设置对比试验,统计分析结果,验证了轻量化神经网络模型的优越性。结果表明,轻量化网络在牺牲少量识别准确度的前提下,能够在较大程度上实现对模型复杂度与计算量的改进,在工程应用中能有效拓展神经网络的实用性。
2025, 47(1):179-187. DOI: 10.11835/j.issn.2096-6717.2023.143
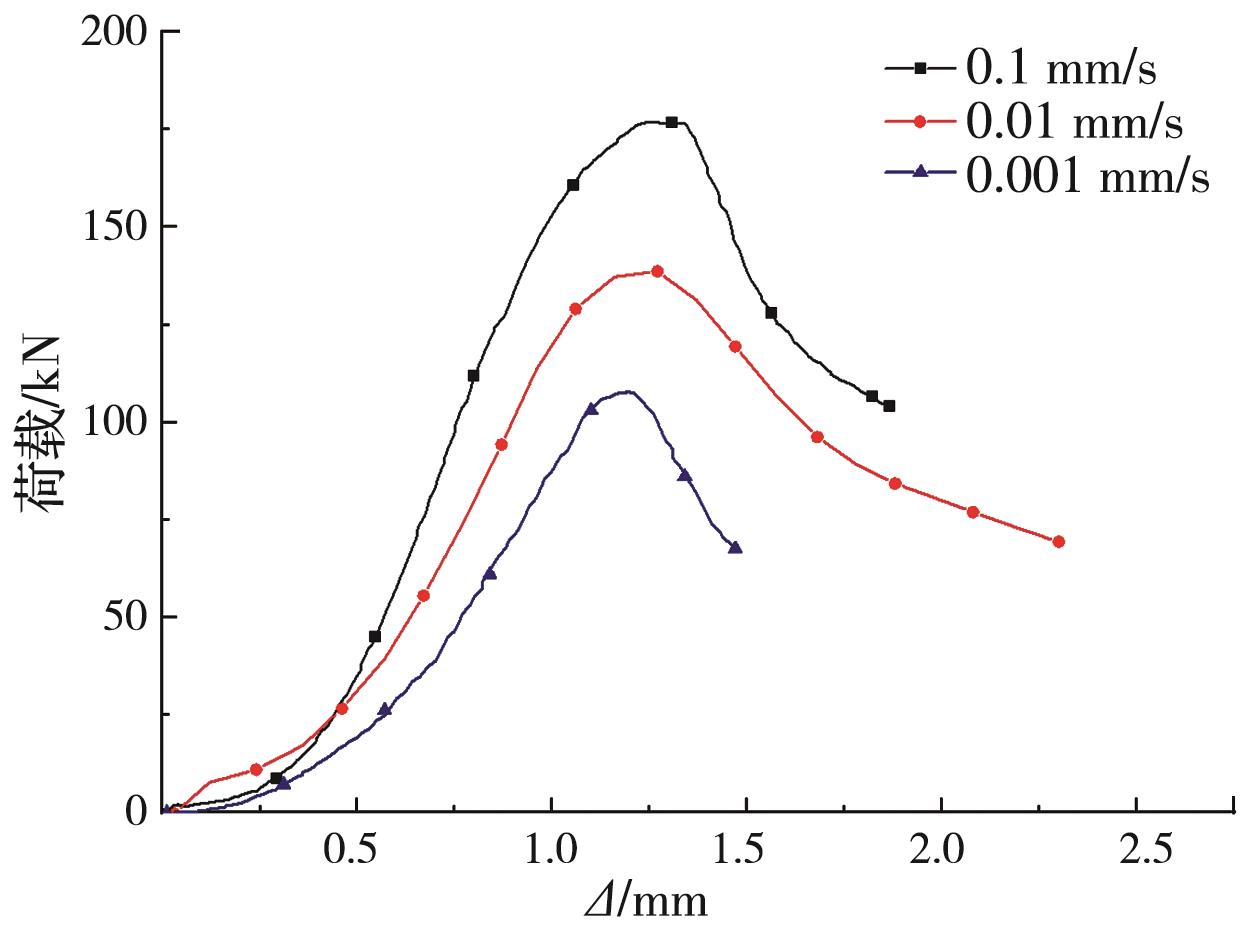
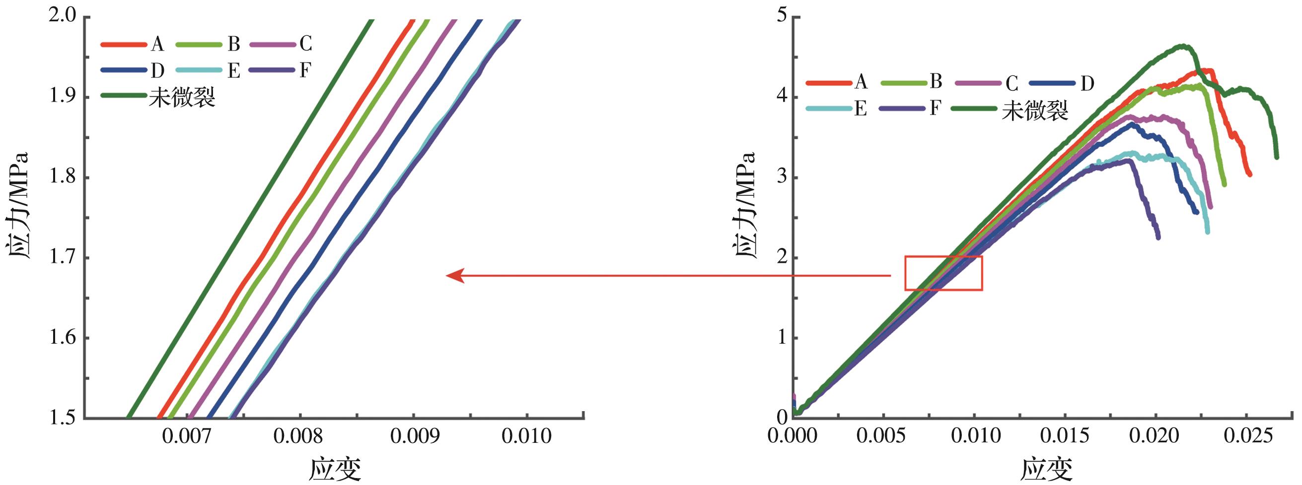
摘要:为研究超高性能混凝土(UHPC)的劈拉破坏特征,采用3种不同的加载速率(0.1、0.01、0.001 mm/s)进行劈拉加载,在加载过程中采用数字图像相关(DIC)方法非接触观测裂缝演化,同时结合声发射(AE)技术对UHPC的破坏全过程进行动态监测,并基于DIC应变云图、AE参量分析试件的破坏特征。结果表明,钢纤维的掺入改善了混凝土的脆性,UHPC峰后荷载-位移曲线下降更平缓,没有出现急剧下降的情况;加载速率越高,UHPC测出劈拉强度越高,符合混凝土速率效应规律,加载速率由0.001 mm/s提升到0.01 mm/s和由0.01 mm/s提升到0.1 mm/s,劈拉峰值荷载分别提高了27.9%和28.5%。采用DIC法进行UHPC劈拉试验的变形测量可获得连续的变形数据,能完整地捕捉裂缝的开展过程,证明DIC能很好地反映试件表面裂缝开展演化过程。基于RA-AF值分析可以快捷、有效地判断混凝土中裂缝的开展类型。根据分析结果,UHPC劈拉试验的裂缝类型绝大多数为拉伸裂缝,且随着加载速率的提高,拉伸裂缝占总裂缝的比例提高。
2025, 47(1):188-195. DOI: 10.11835/j.issn.2096-6717.2022.123
摘要:碱矿渣再生混凝土是以碱激发胶凝材料替代水泥、再生骨料取代天然石子制备而成的新型混凝土,能有效降低波特兰水泥用量,提高废弃混凝土利用率,但尚未见对其力学性能的相关研究。为研究碱矿渣再生混凝土的基本力学性能,以钢纤维取代率和再生骨料取代率为主要试验参数,进行抗压试验、劈裂抗拉试验和抗折试验。研究结果表明:随着再生粗骨料取代率的增加,碱矿渣再生混凝土的抗压强度fcu、劈裂抗拉强度ft和抗折强度fw均降低,再生粗骨料取代率为100%时的降低幅度分别为30%、10%、15%;碱矿渣再生混凝土抗压强度和劈裂抗拉强度随钢纤维体积取代率增加先提高后降低,钢纤维体积取代率为0.6%时,抗压强度和抗折强度达到最大值;碱矿渣再生混凝土抗折强度随钢纤维体积取代率增加而增加。
2025, 47(1):196-204. DOI: 10.11835/j.issn.2096-6717.2022.135
摘要:为探究水泥稳定碎石微裂细观演化机理,构建了细观非均质水泥稳定碎石数值模型,结合室内无侧限抗压强度试验和单轴压缩数值试验反演出模型细观参数,引入微裂隙网络研究不同裂隙参数对微裂程度的影响,分析不同裂隙数目下系统能量演化规律。结果表明:数值模拟与室内试验结果基本吻合,构建的水泥稳定碎石离散元模型可较为准确地表征材料细观破坏特征;微裂损伤是二次振动加载后裂隙宽度增大和裂隙数目增多共同作用的结果,裂隙密度对水泥稳定碎石微裂程度起决定性作用;裂隙密度增加,材料储存弹性应变能的能力减弱,峰值点水泥稳定碎石材料的输入总能量降低。验证了早期微裂对于降低收缩应力的积极作用,揭示了水泥稳定碎石材料微裂力学特征和细观机理。
2025, 47(1):205-212. DOI: 10.11835/j.issn.2096-6717.2024.010
摘要:二次资源的有效利用和环境污染的防治逐渐成为关注焦点。作为一种潜在的二次资源,铝灰具有丰富的储量和利用潜力,其资源化利用备受关注。制备水处理混凝剂,不仅有利于节约资源、降低成本,还能有效解决铝灰无害处理的难题。总结利用铝灰制备铝系混凝剂的重要原料(铝酸钙)以及5种铝灰基混凝剂(硫酸铝、聚硫酸铝、聚硫氯化铝、聚硫酸铝铁和聚氯化铝)的特点、制备方法和研究进展,分析了铝灰基混凝剂生产的经济效益。发现铝灰基混凝剂的规模化应用仍面临一些挑战,需从提高产品核心竞争力和填补相关政策的空白入手,以实现水处理行业和铝工业的高质量、绿色和可持续发展,并带来显著的经济和环境效益。
2025, 47(1):213-220. DOI: 10.11835/j.issn.2096-6717.2023.112
摘要:UV/Fe(Ⅲ)工艺是一种处理络合态重金属的新型组合工艺,该工艺先通过Fe(Ⅲ)的置换作用释放游离重金属离子,然后通过UV辐照对有机配体进行降解,最后通过碱性沉淀去除络合态重金属。以Cu(Ⅱ)-EDTA、Ni(Ⅱ)-EDTA为目标污染物,采用UV/Fe(Ⅲ)工艺对其进行去除,通过去除效果对比和机理分析,对组合工艺去除效果差异的内部机理进行阐述,并提出相应的优化方案。结果表明,UV/Fe(Ⅲ)工艺对Cu(Ⅱ)-EDTA、Ni(Ⅱ)-EDTA的去除效果存在较大差异,对两种络合态重金属中Cu、Ni的去除率分别为70%和41%。通过高效液相色谱(HPLC)、分光光度法、苯甲酸(BA)探针实验,确定Cu(Ⅱ)-EDTA、Ni(Ⅱ)-EDTA去除效果差异的主要原因是Fe(Ⅲ)对Cu(Ⅱ)、Ni(Ⅱ)的置换效果有明显差异,置换率分别是85%、22%。对Ni(Ⅱ)-EDTA置换过程分别进行Fe(Ⅲ)投加量和反应温度优化,结果表明,反应温度优化可以显著提升Fe(Ⅲ)对Ni(Ⅱ)-EDTA的置换效率。将反应温度提升至35 ℃,Ni去除率从41%提升至60%。反应温度在UV/Fe(Ⅲ)工艺中对Ni(Ⅱ)-EDTA的去除至关重要,适当升温有助于提高置换率,进而提升去除率。
2025, 47(1):221-228. DOI: 10.11835/j.issn.2096-6717.2023.083
摘要:紫外消毒技术因具有无须投加化学药剂、消毒广谱性、产生副产物少等优势越来越受重视,但石英套管结垢引起的消毒效果难以保障,成为限制紫外消毒技术发展的瓶颈。在污水厂紫外线消毒渠中搭建中试试验装置,利用超声波抑制石英套管结垢,结果表明,超声波能通过延长结垢诱导期来抑制垢的生成;以相对紫外线强度为考察对象,通过单因素试验确定超声波功率、清洗周期、超声时间合适的范围分别在500~1 000 W、0.5~1.0 d、20~40 min;对于使用时间为0、0.5、1、3、5 a的石英套管,超声波均有很好的抑垢效果。为了进一步优化参数,采用 Box-Behnken设计法和响应面分析方法对主要因素加以优化,得到了响应面回归模型和最优解。结果表明,超声波技术抑垢清垢的优化工艺参数为超声波功率P=965 W,清洗周期T=0.5 d,超声时间t=34 min,预测相对紫外线强度最大值为1.01。通过统计学检验,模型具有良好的拟合性,在优化工艺条件下得到的相对紫外线强度预测值与试验值接近,误差为1.00%。
您是本站第 4754718 访问者 
通信地址:重庆市沙坪坝区沙正街174号,重庆大学A区 邮编:400044
电话:023-65111322;023-65111863 E-mail:xuebao@cqu.edu.cn
版权所有:土木与环境工程学报(中英文) ® 2026 版权所有