1b. 华北理工大学教育部现代冶金技术重点实验室, 河北 唐山 063009;
2. 河北钢铁集团, 石家庄 050000
1b. Ministry of Education Key Laboratory of Modern Metallurgy Technology, North China University of Science and Technology, Tangshan 063009, Hebei, P. R. China;
2. Hebei Iron & Steel Group, Shijiazhuang 050000, P. R. China
目前,中国钢铁行业面临着环保和能源压力越来越大、上游资源缺乏保障等问题,而且自2009年后,中国钢铁行业进入微利甚至局部亏损的时代,因此,节能降耗成了钢铁行业关注的话题[1-4]。烧结作为高炉原料供应工序能耗较大,降低烧结工序能耗,能够降低钢铁生产的综合能耗、节约生产成本。外矿以其较高的性价比在国内钢铁企业被广泛使用,根据国外富矿粉性质,增大富矿粉使用量能进一步节约能源,降低烧结成本,提高企业竞争力。
由于不同外矿的性能差异较大,因此,在使用新外矿之前需要针对性地研究其配矿方案,以稳定烧结矿质量。笔者在某钢铁公司全外矿烧结原料条件下,对配加高比例富矿粉进行烧结优化实验研究。以烧结利用系数、烧结矿转鼓指数、低温还原粉化性能和还原性为主要考察指标,并考虑到熔滴性能总特性S值、烧结料中TiO2含量、碱负荷以及烧结料中南非精矿粉使用量对富矿粉烧结实验的影响,最终通过加权灰色关联度法确定出最佳烧结配矿方案,为富矿粉烧结生产提供参考指导。
1 实验材料采用某钢铁公司全外矿富矿粉为烧结原料,分别为南非富矿粉、巴西卡粉、南非精矿粉1和南非精矿粉2,其化学成分见表 1。
| 表 1 铁矿粉的化学成分/% Table 1 Chemical composition of iron ores/% |
通过对2种富矿粉进行筛分称量得出的粒度组成如表 2所示,同时对精矿粉利用库尔特LS-230型激光粒度分析仪(贝克曼库尔特商贸有限公司)进行了粒度分析,其粒度组成如表 3所示。利用蔡司偏光显微镜(Axioskop40Pol,上海蔡康光学仪器有限公司)对4种烧结矿的矿相结构进行观测,其结果如表 4所示。同时运用TSJ-3型微型烧结机(北京科技大学研制)对4种矿粉的烧结基础特性进行检测,其结果如表 5所示。
| 表 2 试样富矿粉粒度组成/% Table 2 Particle size distribution of rich mineral fines/% |
| 表 3 精矿粉的粒度组成 Table 3 Particle size distribution of concentrate mineral fines |
| 表 4 烧结矿物组成及体积百分含量/% Table 4 Mineral composition and volume percentage of sinter/% |
| 表 5 铁矿粉基础特性 Table 5 Basic characteristics of iron ores |
烧结一般要求铁矿粉的同化温度在1 275~1 315 ℃比较合适,由表 4可知,4种矿粉中同化温度相对较好的为巴西卡粉,其同化温度为1 270 ℃,在配矿过程中应将同化性能较好的矿粉与较差的矿种搭配使用,从而提高铁矿粉烧结过程中的液相量,改善烧结矿的质量;南非精矿粉1、南非精矿粉2的液相流动性指数为0,液相流动能力很差,而南非富矿粉、巴西卡粉液相流动性指数较好分别为1.42和0.24,因此,南非精矿粉可与南非富矿粉、巴西卡粉配合使用,改善富矿粉烧结过程中的液相流动能力;巴西卡粉的黏结相强度最高为4 257 N,在使用南非精矿粉时适当配加巴西卡粉是比较合理的选择;巴西卡粉金属相组成中赤铁矿含量最多,最高可达25%;另外烧结矿的优质黏结相为铁酸钙,铁酸钙越多烧结矿质量越好,南非富矿粉、巴西卡粉黏结相组成较理想,最高都可达45%;而且南非富矿粉、巴西卡粉粒度大于5 mm的占30%~45%,大粒度的矿偏多,烧结过程中液相量少,大粒度矿爆裂现象严重,会导致烧结矿强度下降,大量使用时会影响烧结矿产量和质量。
通常要求烧结混匀矿的同化性、液相流动性在适宜区间,而单种铁矿粉的同化性、液相流动性很难满足这一需求,故需要依据不同铁矿粉的同化性、液相流动性差异,通过互补配矿方式予以解决 。因此,对南非富矿粉、巴西卡粉与南非精矿粉1和南非精矿粉2进行烧结配矿优化研究具有重要意义,为降低烧结能耗提供理论依据。
2 实验方案及设备 2.1 实验方案为了提高烧结矿性能,针对配加高比例富矿粉进行烧结优化实验研究,以碱度1.9,燃料配比5.0%,混合料水分控制在6.2%左右,对4种铁矿粉进行烧结配矿。以生产现场给定的最高烧结矿碱金属、TiO2含量为标准,经计算得到7种配矿方案即1#~7#。烧结配矿具体方案如表 6所示。
| 表 6 烧结配矿方案/% Table 6 Ore blending schemes of sinter/% |
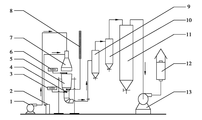
烧结杯内径为210 mm,各次实验用料按实验设计方案配料,然后加入ϕ600 mm×1 200 mm的小型圆筒混料机内进行混匀造球、补水,混匀造球的时间控制为7 min。烧结杯底层放置2.0 kg、10~16 mm的成品烧结矿作为铺底料,烧结料层厚度控制为600 mm,烧结负压控制为1 200 Pa。采用石油液化气进行烧结点火,烧结点火温度控制为1 150 ℃,烧结点火时间为2.0 min,烧结点火负压控制为8 000 Pa,将烧结废气温度开始下降时定为烧结终点。烧结实验装置如图 1所示。
|
图 1 烧结实验设备示意图 Figure 1 Schematic diagram of sintering device 1—助燃风机;2—液化石油气罐;3—废气温度显示仪;4—热电偶;5—烧结杯;6—点火温度显示仪;7—点火器;8—负压计;9—一级旋风除尘器;10—二级旋风除尘器;11—泡沫除尘器;12—消声器;13—抽风机 |
烧结矿的转鼓强度根据(YB/T5166—2005)烧结矿转鼓强度检测方法进行;低温还原粉化实验根据《铁矿石低温粉化实验静态还原后使用冷转鼓的方法》(GB/T13242—1991)进行;还原性采用国家标准(GB/T13241—1991)进行测定。
3 实验结果与分析 3.1 配矿方案与烧结利用系数的关系配矿方案与利用系数的关系如图 2所示,烧结成品率及垂直烧结速度见表 7。烧结利用系数与烧结成品率及垂直烧结速度有关,从图 2中1#、2#、3#的对比可以发现,随着南非精矿粉2配比的减少,烧结利用系数基本趋于降低,这主要是由于南非精矿粉2的粒度基本均小于0.15 mm,该粒级作为黏附细粒使得南非精矿粉2的成球性得到改善。随着南非精矿粉2配比降低,混合矿粉的成球性和烧结矿强度下降,成品率也随之下降,同时使料层透气性恶化和垂直烧结速度下降,从而导致烧结利用系数降低。从3#、4#、5#的对比发现,随着南非富矿粉配比提高,烧结利用系数显著减小。这主要是由于南非富矿粉的粒度过大,烧结过程中易崩裂,使烧结矿成品率及垂直烧结速度降低,进而严重影响烧结利用系数。从5#、6#、7#的对比发现随着南非精矿粉1的增加,烧结利用系数呈下降趋势。这主要是由于南非精矿粉1颗粒粒径多数处于0.15~1 mm,处于该粒径范围的颗粒既不能成为制粒小球的核心,也不能构成黏附层,最终成为混合料中不能成球的粉末,成球性能极差。7种配矿方案对比发现,1#配矿的利用系数最佳,其次为6#,两者差别不大。
|
图 2 配矿方案与利用系数的关系 Figure 2 Utilization coefficient of different ore blending schemes |
| 表 7 烧结矿成品率及垂直烧结速度 Table 7 Yield and vertical sintering speed of sinter |
图 3为配矿方案与烧结矿转鼓指数的关系。由图 3可知,烧结矿的转鼓指数相差较小,基本在62%左右。说明不同的配矿方案对转鼓指数影响不大。造成这一现象的原因主要有3方面:从粒度的角度考虑,南非富矿粉、南非精矿粉1的增加均会使烧结矿强度下降;其次,南非精矿粉中的MgO抑制了β-2CaO·SiO2向γ-2CaO·SiO2转变,可以减轻或防止烧结矿粉化;另一方面,烧结矿的转鼓指数主要与铁矿粉烧结基础特性中黏结相强度和连晶强度有关。转鼓指数是随着铁矿粉黏结相强度和连晶强度的增大而升高,原因是烧结矿的固结主要是依靠黏结相对周围核状矿石的黏结完成,高强度的黏结相会增大黏结相对周围核状矿石的固结作用,进而提高烧结矿的转鼓指数。烧结过程由于物料偏析不能产生足够液相时,铁矿粉通过单元或多元系的固相扩散形成固溶体产生连接,即铁矿粉的连晶对烧结矿固结又起到了主要作用。综合三方面作用烧结矿的强度无明显变化[14]。
|
图 3 配矿方案与烧结矿转鼓指数的关系 Figure 3 Tumbler index of different ore blending schemes |
配矿方案下的烧结矿低温粉化性能如图 4所示。对比方案1#、2#、3#发现随着南非精矿粉2粉的减少,烧结矿的低温还原粉化性总体呈现出降低趋势;对比3#、4#、5#发现随南非富矿粉配比增加,烧结矿的低温还原粉化性能得到改善;5#、6#、7#的对比则发现随着南非精矿粉1的增加,烧结矿低温还原粉化性显著降低。整体来看2#配矿方案的低温还原粉化性更好,6#次之。南非精矿粉2的成球性要优于南非精矿粉1,这导致南非精矿粉2含量的降低影响了烧结矿的低温还原粉化性能。另一方面,MgO含量也是影响烧结矿低温还原粉化性能的一个因素,MgO具有稳定烧结矿低温还原粉化性的作用,南非精矿粉1的MgO含量要高于南非精矿粉2,这一因素导致了在降低南非精矿粉2配比的过程中,其低温还原粉化性指数提高。南非富矿粉和巴西卡粉矿物组成相差不大,而南非富矿粉大粒径颗粒所占比例比巴西卡粉的小,烧结过程中要生成相对更多的液相,且大颗粒爆裂现象更少,因此,南非矿的增加使得烧结矿低温还原粉化性得到改善。南非精矿粉1的成球性能极差,其配比的增加恶化了料层的透气性,抑制了液相的生成与发展,优质黏结相铁酸钙生成减少,烧结矿强度降低。
|
图 4 配矿方案与烧结矿低温还原粉化性的关系 Figure 4 RDI of different ore blending schemes |
配矿方案与烧结矿还原性能的关系如图 5所示。由图 5可知,所有配矿方案的烧结矿还原性能较差。不同配矿条件下,烧结矿还原性在64.80%~70.06%之间变化,配矿方案6#的还原性能最高。从方案1#、2#、3#的对比可以发现随着南非精矿粉2配比的减少,烧结矿还原性能降低;3#、4#、5#的对比说明随着南非富矿粉配比的增加烧结矿还原性能降低,5#、6#、7#则说明随着南非精矿粉1配比的增加而降低。影响烧结矿还原性的因素主要有矿粉的液相流动指数、气孔率、矿物组成及结构等。烧结矿物组成中赤铁矿和铁酸钙有利于增强烧结矿的还原性,从表 4中可以发现南非精矿粉1、南非富矿粉、南非精矿粉2的赤铁矿含量均相对较少,南非精矿粉2中的赤铁矿含量要多于南非精矿粉1,黏结相中的铁酸钙含量表现出了同样的规律,另外铁矿粉液相流动能力越强,烧结过程中生成的低熔点物质增多,烧结矿易形成薄壁多孔结构,气孔率升高,还原性气体与反应界面的接触面积增大[15],因此,在适当减少南非精矿粉2、巴西卡粉配比的同时增加南非富矿粉和南非精矿粉1时,烧结矿的还原性降低。
|
图 5 配矿方案与烧结矿还原性能的关系 Figure 5 RI of different ore blending schemes |
熔滴性能总特性S值是Ts与Td间曲线的积分面积,是一个综合性指标,与Ts、Td和ΔPmax有关,一般认为总特性值越小越好。由表 8可知,总特性值(S/kPa·℃)由低到高的顺序为3#、7#、2#、1#、4#、6#、5#配矿方案。5#配矿方案S值最高,为1 497 kPa·℃,3#配矿方案最低,为930 kPa·℃。因此,参考S值,3#配矿方案的软熔滴落性最好。
| 表 8 不同配矿方案的熔滴实验结果 Table 8 Melt and drop test results of different ore blending schemes |
由于不同配矿方案的各项指标差异明显,因此,需要综合考虑各项指标,根据选取烧结利用系数、转鼓强度、RI、RDI+3.15、熔滴性能总特性S值、烧结料中TiO2含量、碱负荷、烧结料中南非精矿粉1使用量作为选择配矿方案依据如表 9所示。
| 表 9 配矿烧结实验主要参数 Table 9 Main parameters of different ore blending schemes |
利用加权灰色关联度分析法[16-17]对所采用的参数进行处理,该分析法是一种多因素统计分析法,根据各影响因素的样本数据以及影响因素所占权重,计算出各影响因素的关联度。该方法思路清晰,对数据要求较低,在许多领域得到了广泛的应用[18-19]。根据某钢铁公司要求的实际生产情况,对烧结参数和烧结矿性能评价指标赋予权重,所选权重如表 10所示。利用该分析法得出7种方案的关联度,并利用得出的关联度评价各个方案的优劣,最终确定最优方案。计算各个方案的关联度结果,如表 11所示。
| 表 10 优化计算所选权重 Table 10 Weight of optimization calculation |
| 表 11 各方案的关联度 Table 11 Correlation of different schemes |
表 9可知,6#方案的关联度最高,配矿方案最好;1#方案次之;2#、3#方案相差很小;4#方案较好;5#方案较差;最差配矿方案为7#。
4 结论1) 通过对4种矿粉的基础分析,同化温度相对较好的为巴西卡粉,其同化温度为1 270 ℃;南非富矿粉、巴西卡粉液相流动性指数较好,分别为1.42和0.24;巴西卡粉的黏结相强度最高为4 257 N;巴西卡粉金属相组成中赤铁矿含量最多,最高可达25%;南非富矿粉、巴西卡粉黏结相组成较理想,优质黏结相铁酸钙含量最高都可达45%,因此,应将4种矿粉配合使用。
2) 通过对不同烧结配矿方案的烧黏性能比较,1#方案的利用系数最高,为2.72 t/(m2·h),6#次之,为2.66 t/(m2·h)。6#方案的还原性最优,为70.06%,7#方案的最差,为64.8%。2#方案的低温还原粉化性能最好,6#次之。5#配矿方案的转鼓指数最佳,为62.67%,2#方案的最差,为61.91%,各方案的差别很小。3#配矿方案的软熔滴落性最好,熔滴性能总特性S值为930 kPa·℃,5#最差为1 497 kPa·℃。
3) 在富矿粉烧结实验中,通过对7种优化配矿方案的综合分析得出:最优配矿方案为6#,其中巴西卡粉、南非富矿粉、南非精矿粉1配比为15 : 70 : 15。富矿粉烧结实验方案6#在保证烧结性能的基础上,能够降低烧结能耗和烧结过程成本。
| [1] |
刘振江.
遵循经济规律重在强身固本—在中国钢铁规划论坛上的致辞[J]. 中国钢铁业, 2015(4): 5–7.
LIU Zhenjiang. Follow the economic rules emphasize on consolidation-speech at china iron and steel planning forum[J]. China Iron and Steel Industry, 2015(4): 5–7. (in Chinese) |
| [2] |
李新创. 中国钢铁转型升级之路[M]. 北京: 冶金工业出版社, 2015.
LI Xinchuang. The road of steel transformation and upgrading of China[M]. Beijing: Metallurgical Industry Press, 2015. (in Chinese) |
| [3] |
张寿荣, 于仲洁.
中国炼铁技术60年的发展[J]. 钢铁, 2014(7): 8–14.
ZHANG Shourong, YU Zhongjie. Development of ironmaking technology in the past 60 years[J]. Iron and Steel, 2014(7): 8–14. (in Chinese) |
| [4] |
李维国.
中国炼铁技术的发展和当前值得探讨的技术问题[J]. 宝钢技术, 2014(2): 1–17.
LI Weiguo. The technology developments and the current technical issues worth discussing of Chinese iron-making[J]. Baosteel Technology, 2014(2): 1–17. (in Chinese) |
| [5] |
阎丽娟, 吴胜利, 尤艺, 等.
各种铁矿粉的同化性及其互补配矿方法[J]. 北京科技大学学报, 2010, 32(3): 298–305.
YAN Lijuan, WU Shengli, YOU Yi, et al. Assimilation of iron ores and ore matching method based on complementary assimilation[J]. Chinese Journal of Engineering, 2010, 32(3): 298–305. (in Chinese) |
| [6] |
吴胜利, 裴元东. 烧结过程中铁矿粉的液相流动性及其互补配矿方法的研究[C]//2008年全国炼铁生产技术会议暨炼铁年会. 中国宁波, 2008: 631-635. WU Shengli, PEI Yuandong. Studies on liquid phase mobility of iron ore and its complementary ore blending during sintering[C]//National Ironmaking Production Technology Conference 2008 and Annual Meeting of Ironmaking. Ningbo, China: 2008631-635. (in Chinese) |
| [7] |
阎丽娟, 吴胜利, 尤艺, 等.
各种铁矿粉的液相流动性及其互补配矿方法的研究[J]. 烧结球团, 2013, 38(6): 1–5.
YAN Lihuan, WU Shengli, YOU Yi, et al. Study on liquid phase fluidity of iron ores and its complementary ore proportioning[J]. Sintering and Pelletizing, 2013, 38(6): 1–5. (in Chinese) |
| [8] |
吴胜利, 戴宇明, DauterOliveira, 等.
基于铁矿粉高温特性互补的烧结优化配矿[J]. 北京科技大学学报, 2010, 32(6): 719–724.
WU Shengli, DAI Yuming, Dauter O, et al. Optimization of ore blending during sintering based on complementation of high temperature properties[J]. Journal of University of Science and Technology Beijing, 2010, 32(6): 719–724. (in Chinese) |
| [9] |
吴胜利, 杜建新, 王军, 等. 烧结混匀矿的同化及液相流动能力的基础实验研究[C]//2004年全国炼铁生产技术暨炼铁年会论文集. 中国无锡, 2004: 165-169. WU Shengli, DU Jianxin, WANG Jun, et al. Sintering mixed ore assimilation and liquid flow ability of the basic experimental study[C]//2004 National Ironmaking Production Technology and Ironmaking Annual Meeting. China Wuxi, 2004: 165-169. (in Chinese) |
| [10] | Loo C E. A perspective of goethitic ore sintering fundamentals[J]. ISIJ International, 2005, 45(4): 436. DOI:10.2355/isijinternational.45.436 |
| [11] | Loo C E Leung. Factors influencing the bonding phase structure of iron ore sinters[J]. ISIJ International, 2003, 43(9): 1393. DOI:10.2355/isijinternational.43.1393 |
| [12] | Goldring D C, Fray T A T. Characterisation of iron ores for production of high quality sinter[J]. Ironmaking and Steelmaking, 1989, 16(2): 83. |
| [13] | YuanHao Y U, Feng G S, DongXue S U. Measures of decreasing blast furnace fuel consumption and improving sinter performance in guofeng[J]. Journal of Iron and Steel Research (English Version), 2008, 15(5): 9–12. DOI:10.1016/S1006-706X(08)60240-X |
| [14] |
伍成波, 尹国亮, 程小利.
改善低硅烧结矿低温还原粉化性能的研究[J]. 钢铁, 2013, 45(4): 16–19.
WU Chengbo, YIN Guoliang, CHENG Xaioli. Research on improving the low temperature reduction degradation of low silicon sinter[J]. Iron and Steel, 2013, 45(4): 16–19. (in Chinese) |
| [15] |
吕大刚, 王力, 张鹏, 等.
结构方案设计模糊多属性决策的灰色关联度方法[J]. 哈尔滨工业大学学报, 2007, 39(6): 841–844.
LU Dagang, WANG Li, ZHANG Peng, et al. Grey relation degree approach to fuzzymultiple attributedecision-making for structural scheme design[J]. Journal of Harbin Institute of Technology, 2007, 39(6): 841–844. (in Chinese) |
| [16] |
黄友澎. 多传感器多目标航迹相关与数据合成若干关键技术研究[D]. 哈尔滨: 哈尔滨工程大学, 2009. HUANG Youpeng. Research on several key techniques of multi-sensor multi-target traek correlation and data combina-tion[D]. Harbin: Harbin Engineering University, 2009. (in Chinese) |
| [17] |
宋伟, 曹镇东, 彭小宝.
基于灰色关联度的区域自主创新能力模糊评价[J]. 北京理工大学学报, 2010, 12(3): 66–69.
SONG Wei, CAO Zhendong, PENG Xiaobao. Fuzzy evaluation of regional capability of innovation based on grey relation grade[J]. Transactions of Beijing Institute of Technology, 2010, 12(3): 66–69. (in Chinese) |
| [18] |
刘文颖, 门德月, 梁纪峰, 等.
基于灰色关联度与LSSVM组合的月度负荷预测[J]. 电网技术, 2012, 36(8): 228–232.
LIU Wenying, MEN Deyue, LIANG Jifeng, et al. Monthly load forecasting based on grey relational degree and least squares support vector machine[J]. Power System Technology, 2012, 36(8): 228–232. (in Chinese) |
2018, Vol. 41


