2. 天津大学 建筑工程学院, 天津 300350;
3. 北京城建设计发展集团股份有限公司, 北京 100032
2. School of Civil Engineering, Tianjin University, Tianjin 300350, P. R. China;
3. Beijing Urban Construction Design & Development Group Co., Beijing 100032, P. R. China
碎石桩复合地基是指将桩管挤入软弱地层中成孔后,再将碎石投入桩管内,通过击实或振冲的方法形成密实碎石桩,并与桩周土体一起承担上部荷载的基础形式,如图 1(a)所示。桩体无黏结强度、无抗拉与抗弯能力,有较低的抗压和抗剪强度[1]。当前针对无埋深时碎石桩的破坏模式进行了一系列研究。Hughes和Withers[2-3]研究表明,碎石桩单桩在上部荷载的作用下,其破坏模式为鼓胀破坏,且单桩桩身的鼓胀位置在距桩端2~4倍桩径处。Bae[4]进行室内端承桩单桩破坏模式的模型实验,发现单桩鼓胀位置随桩径改变而发生变化,鼓胀位置发生在1.6~2.8倍桩径之间。对于群桩复合地基,因桩体相互作用的影响而破坏模式复杂。Madhav[5]研究发现,散体桩除鼓胀破坏模式外,还发生剪切破坏。Wood进行了圆形基础试验,结果表明,碎石桩群桩复合地基中心桩的鼓胀破坏位置不发生在桩顶,边桩由于发生向外水平流动,上部发生屈曲变形。此外,随着荷载的增大,桩体与周围土体产生了贯通的剪切带,从而发生失稳[6]。Aboshi等[7]在研究大桩径散体桩复合地基中发现散体桩除了发生上述2种破坏模式,还会发生向下的刺入破坏。
|
图 1 复合地基示意图 Fig. 1 Sketch of composite grounds |
对于含有地下室的多、高层建筑,其复合地基基础需要埋置一定的深度,如图 1(b)所示。众多学者已对无埋深条件下碎石桩复合地基桩体破坏模式进行了深入研究[2-7],而对于有埋深情况下的碎石桩复合地基破坏模式研究较少。Zhou等[8-9]对有埋深的散体桩复合地基破坏模式及承载能力进行了研究,发现随着基础埋深的增加,碎石桩复合地基的破坏模式会由最初的浅基础破坏转变成为实体基础破坏模式,并且极限承载系数也会随着破坏模式的转变而发生明显的变化。然而,Zhou等仅研究了摩擦型群桩复合地基的承载力系数和破坏模式,并没有涉及桩端进入持力层时埋深对桩体破坏模式的影响。因此,文中将首先针对刚性基础下饱和黏土中碎石桩复合地基建立有限差分数值模型。其次,对具有埋深的刚性基础下单桩,以及群桩复合地基不同位置下桩体的破坏模式进行研究。在此基础上,考虑群桩桩端是否进入持力层,对比分析埋置深度对不同持力类型的群桩复合地基桩体破坏模式的影响。
1 计算模型 1.1 计算模型及参数采用基于二维有限差分法(Flac2D)分别对单桩和群桩复合地基进行模拟。采用轴对称模型对单桩复合地基进行模拟。将方形刚性基础等效成为圆形刚性基础,等效基础半径req利用公式(1)得出。其中,S方形刚性基础的底面积[10]。
| $ r_{\mathrm{eq}}=\sqrt{\mathrm{S} / \pi}。$ | (1) |
单桩截面如图 2所示,计算时分别取等效基础宽度等于桩径和等于2倍桩径。
|
图 2 单桩数值模型剖面图 Fig. 2 Cross section of single column numerical model |
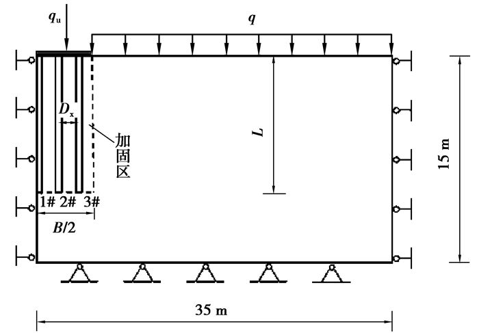
采用平面应变模型对条形基础下群桩复合地基进行模拟。复合地基的截面如图 3所示,根据桩所处的位置不同对桩体进行编号,1#为中间桩,2#、3#为边桩。研究表明,将碎石桩和土体视为理想弹塑性体,并服从Mohr-Coulomb屈服准则时,可以达到计算所需的精度要求[11]。同时,视材料性质均匀,模型侧向边界为对轴对称边界。底边边界同时限制竖向及水平方向位移,将桩体单元处局部加密网格以提高计算精度。
|
图 3 群桩数值模型剖面图 Fig. 3 Cross section of column groups numerical model |
数值计算中取碎石桩的内摩擦角φ=38°,对应剪胀角ψ=8°,泊松比ν=0.3,弹性模量E=45 MPa;饱和软黏土的不排水抗剪强度cu=30 kPa,泊松比υ=0.49。地基土弹性模量E=400cu。单桩模型中取桩径D=0.8 m,桩长L=10 m,等效后加固区宽度B=0.8、1.6 m,群桩模型中取桩中心距De=1.4 m,加固区宽度B=8 m,桩径D=0.48 m(对应置换率η=30%),桩长L=10 m。由于碎石桩与周围土体剪切面上的性质由成桩方式决定,在竖向荷载作用下,碎石桩与土体界面上一般不发生相对滑动,接触面处满足变形协调[12]。计算中通过控制刚性基础的竖向位移来进行加载,得出每一增量步长中所施加的变形量为2×10-6 m/时步。
1.3 模型验证为验证计算方法与计算模型的适用性,将采用Flac2D数值模型计算3种不同桩径下端承桩桩体破坏的位置与Bae进行的室内单桩模型试验结果进行对比。
这里基于Bae单桩模型试验[4, 13],取土体强度指标cu=12 kPa,土体重度γ=16.87 kN/m3,弹性模量E=400cu;桩体的内摩擦角φ=42°和对应剪胀角ψ=8°;桩长为30 cm,桩径D为3、5、8.8 cm时,有限差分数值解和试验分析的桩体径向位移Dx的分布规律,如图 4所示。由图可知,对桩径D为3、5、8.8 cm的桩体,破坏位置分别发生在离桩顶约(1.5~2.6)D、(1.6~2)D和(1.4~1.8)D处,即随着桩径增加,桩体破坏位置向下移动。该结果与Bae的室内模型试验得到的结论相同。
|
图 4 数值计算与试验对比 Fig. 4 Numerical calculation values compared with test value |
通过图 4的对比验证可看出,采用基于有限差分的Flac2D计算结果与前人的解答吻合较好,说明采用文中的计算模型研究有埋置深度基础下碎石桩复合地基桩体破坏模式的结果可靠。
2 埋置深度对桩体破坏位置的影响利用二维有限差分法,分别在无埋深、埋深为3 m和埋深为5 m 3种不同工况下,针对饱和软黏土中碎石桩单桩复合地基及群桩复合地基桩体破坏模式的变化开展研究。忽略基础两侧埋深范围内土体的抗剪强度,将埋置深度等效为作用在基础外围的超载q[14]。取桩体重度γc=16 kN/m3,取饱和软黏土的不排水重度γs=20 kN/m3。
2.1 单桩复合地基在进行单桩分析时,分别取等效基础宽度B为0.8、1.6 m,如图 2所示。研究不同基础宽度下端承桩复合地基达到极限状态时桩体破坏模式的影响,如图 5所示。
|
图 5 不同基础宽度下埋深对桩体破坏模式的影响 Fig. 5 Influence of width and embedded depth on bulging failure modes |
当等效基础宽度req=0.8 m时,桩周中无超载(q=0),桩体的破坏位置在距桩顶的1~1.5倍桩径处,随着超载的增加,桩体最大径向位移减小,桩体鼓胀位置下移,当埋深为3 m和5m (q=60、100 kPa)时,桩体的鼓胀位置分别发生在距桩顶1.2~1.6倍和1.3~1.7倍的桩径处。而当等效基础宽度req=1.6 m时,3种不同工况下桩体的破坏位置发生在距桩顶1.5~2倍桩径处。
与前人研究结果相同,单桩在荷载作用下将发生鼓胀破坏。随等效基础宽度增加,桩周竖向应力增加,加固区内土体的围压不断增加,桩体径向位移减小,鼓胀破坏位置向下移动。基础埋深增加时,基础两侧埋置深度范围土体可增加基础底面以下土体中的竖向应力和水平应力,其中,水平应力可对碎石桩提供显著的侧向约束,并提高竖向承载力[15]。图 5中,当碎石桩鼓胀破坏发生在水平应力较低的桩顶附近时,随着基础埋深的增加,加固区外土体的围压增加,水平方向应力的增加使桩体径向位移减小,竖向应力增加使桩体鼓胀中心部分下移,碎石桩的承载能力提高。当桩体鼓胀位置发生在较深处时,外部土体竖向应力的增加对破坏模式影响较小,因此,鼓胀位置不发生明显移动。
2.2 群桩复合地基为了研究碎石桩群桩复合地基桩体的变形模式,选取置换率为30%,桩身长度等于10 m的群桩复合地基来进行说明。此外,考虑到桩端是否进入到持力层,将对端承型与摩擦型[16]2种复合地基模型进行分析。
2.2.1 端承型群桩复合地基端承型群桩复合地基计算模型,如图 3所示,当桩长L与H相同时,桩端已经嵌入到持力层中,即为端承型群桩复合地基。基于上文所述的3种不同基础埋深,分析群桩中不同位置桩体破坏模式。
图 6为置换率为30%时,端承群桩复合地基破坏位置相对于桩身长度的分布。显然,1#、2#和3#桩分别在距桩顶8倍、6倍和4倍桩径处发生破坏。随基础两侧超载的增加,加固区桩体最大径向位移减小,鼓胀和剪切破坏的位置相对于无埋深时向下移动。基础埋深对边桩2#和3#桩体破坏模式的改变较1#更加明显。群桩桩体的破坏模式由桩体所在位置决定。中心桩发生鼓胀破坏,鼓胀位置较深,径向位移很小;边桩发生剪切破坏,在桩身中上段产生屈曲变形。增加基础埋深会抑制加固区外土体向外的塑性流动,从而增强土体的围压。此外,基础埋深对桩体破坏影响与桩体相对于基础的位置有关。由于中间桩所受到的水平向与竖向应力由加固区内土体与桩体提供,因此,埋深的改变不会影响破坏模式的变化。然而,基础埋深的增加会提高边缘桩体的侧向约束,减小边桩最大径向位移,使破坏面位置沿桩身向下移动。
|
图 6 超载对不同位置桩体破坏模式的影响 Fig. 6 Influence of overburden stress on failure modes of different places |
图 3中当桩长L小于H时,桩端没有插入持力层,为摩擦型群桩复合地基。与端承型群桩复合地基不同,摩擦型群桩复合地基随着两侧埋深的增加,基础的破坏模式会由浅基础破坏模式转变成为实体基础破坏模式,桩体的破坏模式改变较复杂。
图 7为3种不同埋深工况下,桩体剪切应变速率图。随着基础两侧埋深的增加,摩擦型群桩复合地基的破坏模式由最初的浅基础破坏模式向实体基础破坏模式转变,这与Zhou等[17]的研究相吻合。
|
图 7 摩擦型群桩复合地基破坏模式 Fig. 7 failure modes of friction column groups |
图 8为置换率为30%的摩擦型群桩复合地基与端承桩群桩复合地基在不同的基础埋深下,桩体破坏位置沿桩身的分布。当超载等于0时,摩擦桩复合地基各个位置桩体破坏模式与端承桩相同。桩身的径向位移要小于端承桩。当埋深等于3 m时,基础破坏模式转变为实体基础破坏模式,摩擦桩桩端的径向位移增加,桩身位移相比于端承桩明显减小。当埋深等于5 m时,基础破坏模式完全为实体基础破坏模式,桩身径向位移相比于端承桩减小60%。
|
图 8 不同超载下端承桩与摩擦桩桩体破坏模式对比 Fig. 8 Comparison of the failure modes of end bearing columns and friction columns under different overburden stress |
将上述情况进行对比分析后发现,由于摩擦型复合地基桩端未插入持力层,桩体同时发生水平方向的鼓胀(剪切)破坏和垂直向下的刺入破坏。其次,与端承型类似,摩擦型群桩复合地基的中心桩发生鼓胀破坏,边桩发生剪切破坏。另外,埋置深度的增加会使桩体破坏模式发生转变。当埋深为3 m时,摩擦桩桩体主要破坏模式由水平向的鼓胀(剪切)破坏,转变为向下的刺入破坏;当埋深为5 m时,基础破坏模式为实体基础破坏,桩体主要破坏模式为向下刺入破坏。
3 结论基于有限差分方法,对刚性基础下单桩和群桩碎石桩复合地基进行数值分析,研究了基础埋置深度与加固区宽度对端承单桩复合地基桩体破坏模式的影响,以及基础埋置深度对端承型群桩和摩擦型群桩的桩体破坏模式的影响。通过整合计算得到有限差分结果。
1) 刚性基础下单桩复合地基以鼓胀破坏为主,出现鼓胀破坏的位置主要发生在周围地基土约束较小的桩顶附近。随着基础宽度的增加,桩周土体的围压增大,桩体会在较深处发生鼓胀破坏。此外,增加基础埋深会增强基础外土体的围压,使桩体侧向约束增强,减小桩体鼓胀破坏时的径向位移,同时使桩体鼓胀破坏位置沿桩身向下移动。
2) 群桩复合地基桩体的破坏模式主要取决于基础下桩体所处位置。由于中心桩受到桩间土及周围桩体的相互作用,桩身深处发生鼓胀破坏,埋深对中心桩破坏模式影响很小。靠近基础边缘的边桩发生剪切破坏,产生屈曲变形。基础埋深的改变对边桩影响较明显。此外,基础边缘的桩体随着基础埋深的增加,屈曲变形减小,破坏位置沿桩身向下移动。
3)摩擦型群桩复合地基桩体会发生水平向的鼓胀(剪切),垂直向下刺入2种不同的破坏模式。基础埋深的增加会使桩体的破坏模式发生转化。当基础无埋深时,桩体主要发生水平向的鼓胀(剪切)破坏,同时会发生向下的刺入破坏;当基础埋深大于3 m时,桩体主要发生向下的刺入破坏。
| [1] |
郑刚, 龚晓南, 谢永利, 等. 地基处理技术发展综述[J]. 土木工程学报, 2012, 45(2): 127-146. ZHENG Gang, GONG Xiaonan, XIE Yongli, et al. State-of-the-art techniques for ground improvement in China[J]. China Civil Engineering Journal, 2012, 45(2): 127-146. (in Chinese) |
| [2] |
Hughes J M O, Withers N J. Reinforcing of soft cohesive soils with stone columns[J]. International Journal of Rock Mechanics and Mining Sciences & Geomechanics Abstracts, 1974, 11(11). |
| [3] |
Hughes J M O, Withers N J, Greenwood D A. A field trial of the reinforcing effect of a stone column in soil[J]. Géotechnique, 1975, 25(1): 31-44. DOI:10.1680/geot.1975.25.1.31 |
| [4] |
Bae W S, Shin B W, An B C, et al. Behaviors of Foundation System Improved With Stone Columns[J]. 한국마린엔지니어링학회2012년도후기학술대회논문집, 2002.
|
| [5] |
Madhav M R, Vitkar P P. Strip footing on weak clay stabilized with a granular trench or pile[J]. Canadian Geotechnical Journal, 1978, 15(4): 605-609. DOI:10.1139/t78-066 |
| [6] |
Muir Wood D, Hu W, Nash D F T. Group effects in stone column foundations:model tests[J]. Géotechnique, 2000, 50(6): 689-698. DOI:10.1680/geot.2000.50.6.689 |
| [7] |
Aboshi H, Ichimoto E, Harada K, et al. The composer-A method to improve the characteristics of soft clays by inclusion of large diameter sand columns[C]//Proceedings of International Conference on Soil Reinforcement. Paris, ENPC-LCPC 1979: 211-216.
|
| [8] |
Zhou H Z, Diao Y, Zheng G, et al. Failure modes and bearing capacity of strip footings on soft ground reinforced by floating stone columns[J]. Acta Geotechnica, 2017, 12(5): 1089-1103. DOI:10.1007/s11440-017-0535-3 |
| [9] |
郑刚, 周海祚, 刁钰, 等. 饱和黏性土中散体桩复合地基极限承载力系数研究[J]. 岩土工程学报, 2015, 37(3): 385-399. ZHENG Gang, ZHOU Haizuo, DIAO Yu, et al. Bearing capacity factor for granular column-reinforced composite ground in saturated soft clay[J]. Chinese Journal of Geotechnical Engineering, 2015, 37(3): 385-399. (in Chinese) |
| [10] |
Grzyb-Faddoul A M. Numerical analysis of the reinforcement of existing foundations by the Soil Mixing technique[J]. Ph. D. dissertation, L'Institut National des Sciences Appliquées de Lyon.
|
| [11] |
邓楚键, 孔位学, 郑颖人, 等. 极限分析有限元法讲座Ⅲ:增量加载有限元法求解地基极限承载力[J]. 岩土力学, 2005, 26(3): 500-504. DENG Chujian, KONG Weixue, ZHENG Yingren, et al. Analysis of ultimate bearing capacity of foundations by elastoplastic FEM through step loading[J]. Rock and Soil Mechanics, 2005, 26(3): 500-504. (in Chinese) DOI:10.3969/j.issn.1000-7598.2005.03.033 |
| [12] |
魏芸, 闫澍旺. 碎石墩复合地基的承载机理及破坏过程[J]. 土木工程学报, 2011, 44(7): 111-118. WEI Yun, YAN Shuwang. Bearing mechanism and destruction process of stone column composite foundations[J]. China Civil Engineering Journal, 2011, 44(7): 111-118. (in Chinese) |
| [13] |
Park Y M, Shin E C, Ahn S R. Geotechnical properties of soft marine clay in Korea[C]//The Sixth International Offshore and Polar Engineering Conference. International Society of Offshore and Polar Engineers, 1996.
|
| [14] |
Berezantsev V C, Khristoforov V, Golubkov V. Load-bearing capacity and deformation of piled foundations[C]//International Conference on Soil Mechanics and Foundation Engineering, 1961.
|
| [15] |
盛崇文. 软土地基用碎石桩加固后的极限承载力计算[J]. 水利水运科学研究, 1980(2): 3-11. SHENG Chongwen. Calculation of ultimate bearing capacity of soft soil foundation with gravel piles[J]. Journal of Hydraulic Engineering, 1980(2): 3-11. (in Chinese) |
| [16] |
Ambily A P, Gandhi S R. Behavior of stone columns based on experimental and FEM analysis[J]. Journal of Geotechnical and Geoenvironmental Engineering, 2007, 133(4): 405-415. DOI:10.1061/(ASCE)1090-0241(2007)133:4(405) |
| [17] |
Zhou H Z, Zheng G, Yu X X, et al. Bearing capacity and failure mechanism of ground improved by deep mixed columns[J]. Journal of Zhejiang University-Science A, 2018, 19(4): 266-276. DOI:10.1631/jzus.A1700517 |
2019, Vol. 42


